**Standout Features:**
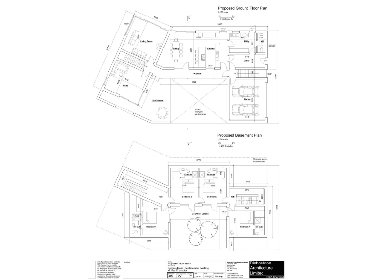
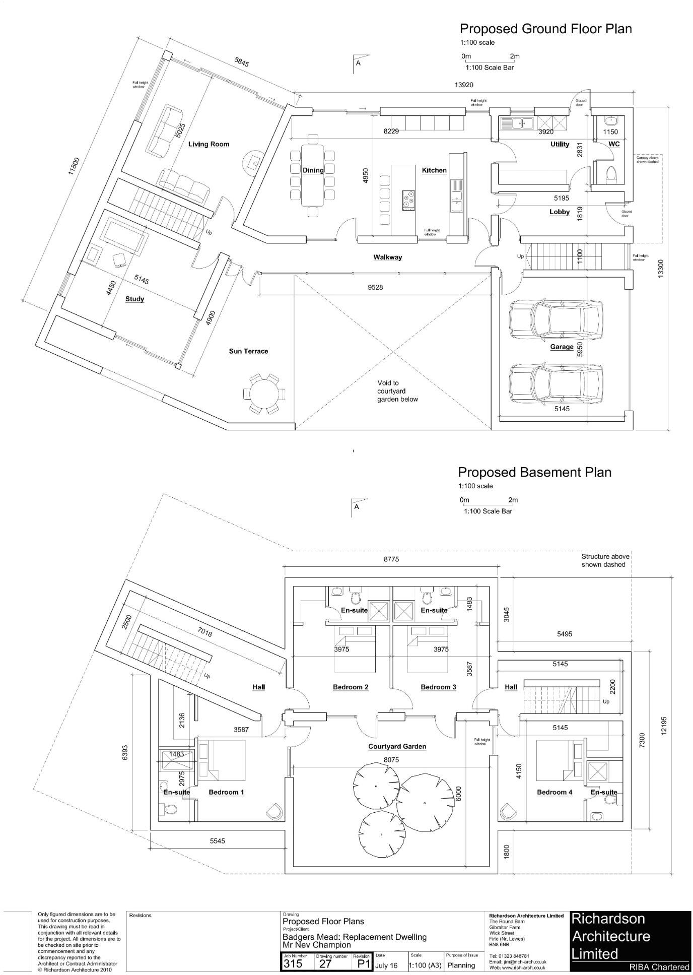
- Planning permission granted for a detached 4-bedroom dwelling (3,341 sq ft)
- Prime brownfield site totaling 0.46 acres, with an additional negotiable 2.15 acres
- Quiet, rural location in the Weald National Landscape
- Surrounded by mature trees and natural boundaries providing privacy
- Chain-free sale with freehold tenure
- Low crime area and ample outdoor space
**Summary:**
Discover an exceptional opportunity at Badgers Mead Farm, featuring a large plot of land with approved planning consent for a spacious four-bedroom home. Covering approximately 0.46 acres, this property comes with plans for a modern 3,341 sq ft dwelling, perfect for families seeking a tranquil retreat in a picturesque rural setting. Enjoy stunning views of the lush countryside, with additional land of 2.15 acres available for separate negotiation.
The peaceful environment offers a rare mix of seclusion and accessibility, making it an ideal location for creating your dream family home or investing in a development project. While the area does have average broadband speeds, the abundant natural beauty, combined with low crime rates and nearby schools rated as 'Good,' enhances the appeal for families and investors alike. Don't miss out on this unique opportunity to build a life in one of East Sussex's most desirable locations!
Plot for sale in Coldharbour Lane, Punnetts Town, Nr Heathfield, TN21 — £350,000 • 3 bed • 1 bath
Land for sale in Tylers Lane, TN22 — £499,950 • 3 bed • 1 bath
5 bedroom detached house for sale in Palehouse Common, Framfield, East Sussex, TN22 — £875,000 • 5 bed • 4 bath • 4628 ft²
Land for sale in Lower Dicker, Hailsham, BN27 — £750,000 • 1 bed • 1 bath
Land for sale in Hartfield, East Sussex, TN7 — £110,000 • 1 bed • 1 bath • 538 ft²
Plot for sale in Single Plot at Swife Lane, TN21 — £850,000 • 4 bed • 1 bath • 3628 ft²


































