**Standout Features:**
- Expansive plot size of circa 3.7 acres
- Approved plans for a stunning 3,628 sqft home, triple garage, and barn
- Breathtaking west-facing countryside views
- Solid architectural design by Richardson Architecture
- Opportunity for customization prior to build
- Chain-free and freehold tenure
**Summary:**
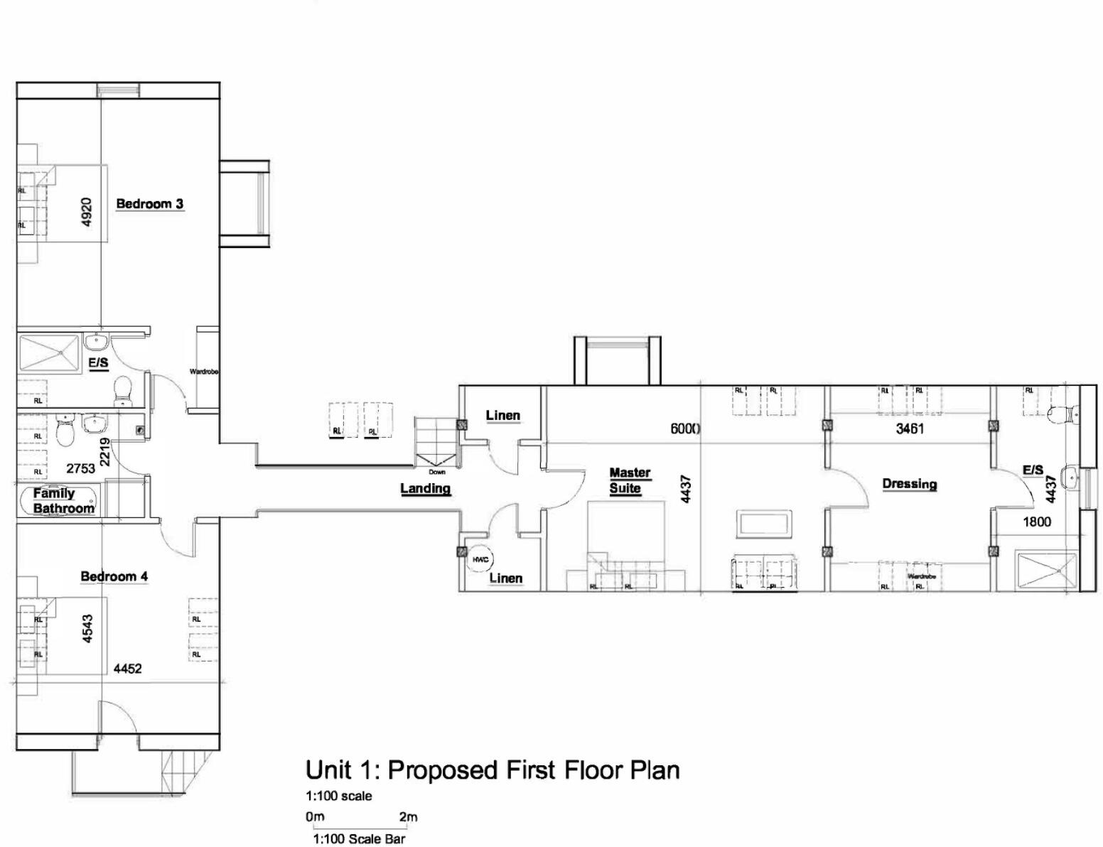
Seize the chance to build your dream home on this bespoke plot nestled in the picturesque countryside just outside Broad Oak, East Sussex. Spanning approximately 3.7 acres, this exceptional property comes with full planning permission for a contemporary 4-bedroom house, a triple garage, and a barn, all thoughtfully designed to blend with the natural landscape.
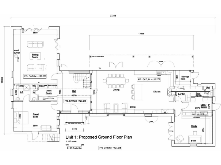
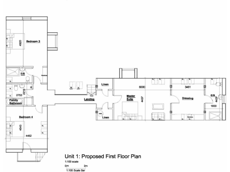
The approved plans showcase an inviting layout that includes generous living spaces, a spacious kitchen/dining area, a guest suite, and a luxurious primary suite with a dressing room and ensuite bathroom. You’ll enjoy the allure of a bright, energy-efficient home that harmonizes rustic charm with modern elegance through a mix of bricks, stone, and natural materials.
There's additional flexibility with planning for a 12x12 sqm agricultural steel barn, perfect for various uses. Although set in tranquil rural surroundings, the community offers access to local amenities, including charming villages, artisan shops, and recreational walking trails. Families will appreciate the proximity to reputable local schools.
With stunning views and an enviable location, this plot promises a lifestyle of comfort and serenity—ideal for those seeking to create a unique family home that embraces the beauty of a rural retreat. Act now to secure this rare opportunity before it’s gone!
Plot for sale in Single Plot at Swife Lane, TN21 — £500,000 • 3 bed • 1 bath • 2272 ft²
Plot for sale in Coldharbour Lane, Punnetts Town, Nr Heathfield, TN21 — £350,000 • 3 bed • 1 bath
5 bedroom detached house for sale in Palehouse Common, Framfield, East Sussex, TN22 — £875,000 • 5 bed • 4 bath • 4628 ft²
Plot for sale in Whatlington Road, Battle, TN33 — £400,000 • 1 bed • 1 bath • 2680 ft²
4 bedroom detached house for sale in The Meadows, Framfield Road, TN22 — £495,000 • 4 bed • 2 bath
4 bedroom detached house for sale in Windmill Hill, Brenchley, Tonbridge, Kent, TN12 — £700,000 • 4 bed • 1 bath • 3450 ft²


































