Spacious rural holding with modern barn, ten acres and close Lincoln access.
Approximately 10 acres of arable land with flexible acreage options
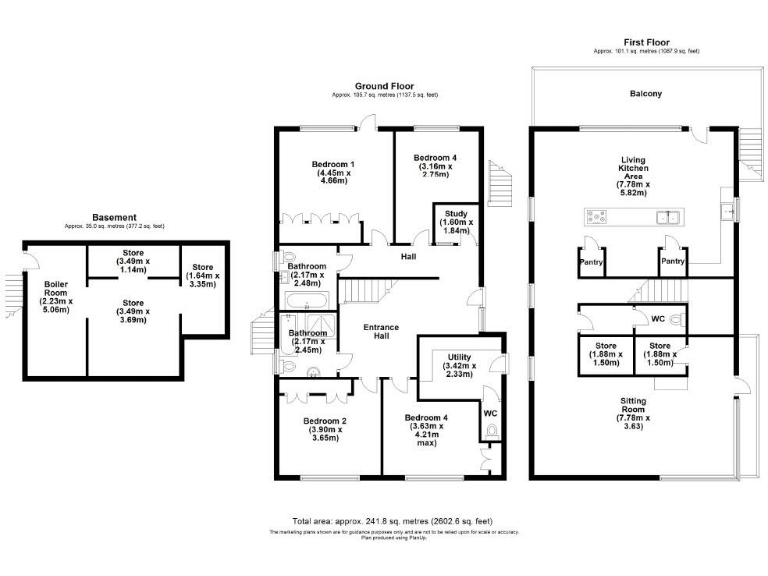
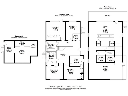
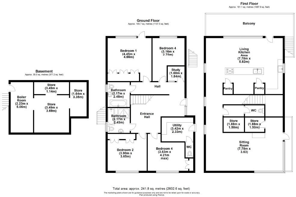
Contemporary 4-bed family home, c.2,602 sq ft with reversed living layout
Two-storey oak-framed barn plus large agricultural outbuildings
Energy-efficient features: ground-source heat pump, underfloor heating
Private no-through-road setting with long-distance views and privacy
Medium flood risk — house built on piled foundations with raised floor
EPC rating D; may affect mortgage/insurance and energy costs
Very slow broadband and average mobile signal — affects remote working
Set within about 10 acres on Branston Fen, this contemporary four-bedroom farmhouse combines modern design with practical rural amenities. The reversed-plan living area on the first floor maximises the far-reaching countryside and Lincoln Cathedral views, while timber construction, oak finishes and high ceilings give a warm, high-quality feel. The property includes a two-storey oak-framed barn and two substantial agricultural outbuildings, offering clear scope for a rural business, studio or conversion subject to planning.
The house was built in 2007 to a low-carbon brief and benefits from underfloor heating served by a ground-source heat pump, natural ventilation and solar shading. Practical features include double glazing, garaging within the oak barn, a greenhouse, vegetable beds and a biodiversity-supporting pond. The setting is private, on a no-through road with very low local crime and good road links to Lincoln and the A15/A46.
Buyers should note a few material considerations. The EPC is rated D and the property sits in a medium flood-risk area; the house is on piled foundations with a raised floor but flood risk will be a factor for mortgage and insurance. Broadband speeds are very slow and mobile signal is average — important for home working. The holding is offered as a whole or in two lots, and the outbuildings and barn will need planning consent for any residential or commercial change of use.
This is a rare opportunity for a family seeking space and privacy close to Lincoln, or for an investor or rural entrepreneur looking for land and adaptable buildings. The combination of substantial arable land, modern eco-features and flexible outbuildings makes this a versatile property, provided buyers account for the logistic and regulatory constraints of a rural holding.
4 bedroom detached house for sale in Branston Fen, Bardney, Lincoln, LN3 — £1,520,000 • 4 bed • 2 bath • 2602 ft²
Farm for sale in Branston Fen, Bardney, Lincoln, LN3 — £725,000 • 1 bed • 1 bath • 2358 ft²
4 bedroom farm house for sale in 4.75 Acres - Snarford Road, Wickenby, Lincoln, LN3 — £650,000 • 4 bed • 2 bath • 2490 ft²
Equestrian facility for sale in Coldstead Farm, Newball, Lincoln, Lincolnshire, LN3 — £1,150,000 • 4 bed • 2 bath • 11870 ft²
4 bedroom barn conversion for sale in Lineside, Amber Hill, Boston, PE20 — £695,000 • 4 bed • 4 bath • 2414 ft²
Farm land for sale in Lot 6 - Around 13.02 Acres Bardney Road, Branston Booths, Lincoln, Lincolnshire, LN4 1JD, LN4 — £130,000 • 1 bed • 1 bath














































