Tailor finishes now for a high-spec, energy-efficient countryside family home.
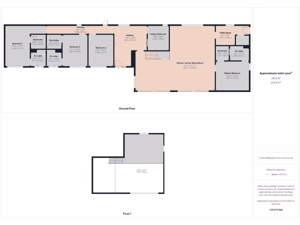
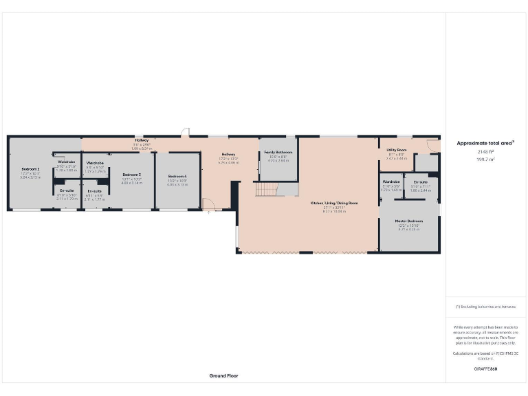
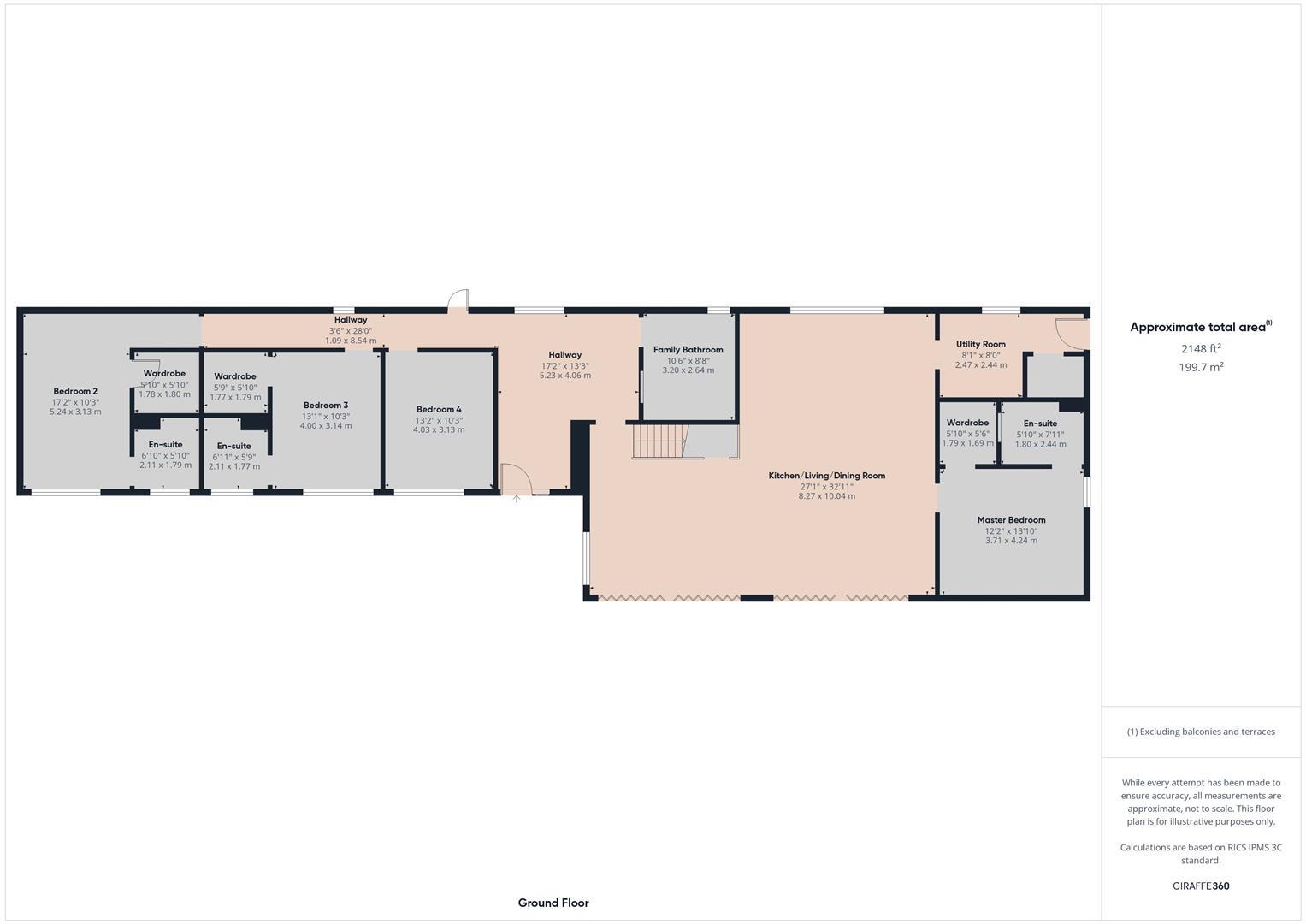
- New build barn-style home completed 2025, approx. 2,414 sq ft
- High-spec eco-systems: air source heat pump, heat recovery, smart underfloor heating
- Large landscaped plot with private driveway, ample off-road parking and garage
- Generous open-plan kitchen/living/dining with floor-to-ceiling glazing
- Four double bedrooms; three additional en-suites plus family bathroom
- High flood-risk location may affect insurance and access
- Slow fixed broadband speeds despite excellent mobile signal
- Remote hamlet setting; limited local services, longer travel times
A striking, newly built four-bedroom barn in the Lincolnshire countryside, finished in contemporary cladding with large glazing and high ceilings. The home offers expansive open-plan living across generous volumes (approx. 2,414 sq ft) and a flexible loft/snug, ideal for family life and entertaining. High-spec eco technology — Vaillant air source heat pump, whole-house heat recovery, underfloor heating with smart controls — keeps running costs lower and future-proofs the property.
Early purchasers can personalise kitchen and bathroom finishes before completion in 2025, a rare opportunity to tailor fittings to exact tastes. The plot is very large and landscaped, with private driveway, ample off-road parking and an integral garage, all set to enjoy long, unobstructed countryside views.
Buyers should note material practicalities: the site is in a high flood-risk area and is a hamlet/isolated dwelling, which may affect insurance and travel. Broadband speeds are reported slow despite excellent mobile signal, and the wider area scores higher on deprivation indices — factors to consider for remote working and service access. The property is offered freehold at £695,000.
3 bedroom detached house for sale in Aunsby, Sleaford, Lincolnshire, NG34 — £375,000 • 3 bed • 3 bath • 1560 ft²
5 bedroom detached house for sale in Highgate, Helpringham, Sleaford, NG34 — £489,950 • 5 bed • 2 bath • 2261 ft²
4 bedroom barn conversion for sale in Timberland, Lincoln, LN4 — £650,000 • 4 bed • 3 bath • 2655 ft²
3 bedroom barn conversion for sale in The Long Barn, Timberland, Lincoln, LN4 — £550,000 • 3 bed • 2 bath • 1248 ft²
2 bedroom barn conversion for sale in Whaplode St. Catherines, PE12 — £675,000 • 2 bed • 2 bath • 1474 ft²
4 bedroom barn conversion for sale in Stotons Gate, Holbeach, Spalding, PE12 — £890,000 • 4 bed • 3 bath • 3000 ft²






























































































































































































































