Contemporary four-bedroom farmhouse with 93 acres and versatile outbuildings near Lincoln.
Approximately 93.57 acres of productive Grade 2 arable land
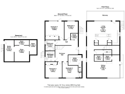
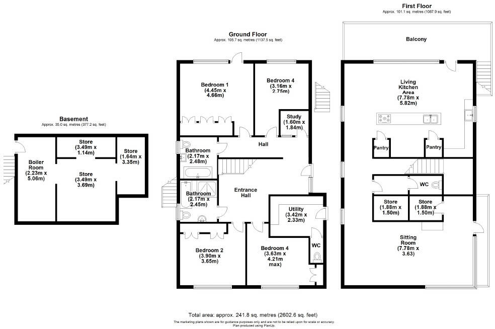
White Home Farm is a rare modern amenity farm about 8.5 miles east of Lincoln, set within approximately 93 acres of productive arable land. The contemporary four-bedroom farmhouse (circa 2007) sits with panoramic countryside views and features a reversed living layout, large glazed areas, two balconies, underfloor heating and a natural ventilation system. An oak-framed barn with garaging and two large agricultural outbuildings add practical workspace and scope for alternative uses, subject to planning.
This property will suit a family wanting long-term rural living close to Lincoln or a purchaser seeking an agricultural holding with environmental potential. The land is largely Grade 2 peaty soils, well managed for cereals, roots and potatoes, and includes a young coppice woodland and a biodiversity-promoting pond. The barn offers adaptable space that has previously been used as workshops and a studio, and could be repurposed with the right consents.
Buyers should note material considerations: the EPC is D, broadband speeds are very slow, and the site has a medium flood risk (the house is built on piled foundations with a raised ground floor to mitigate localised flooding). Some conversion or commercial uses of outbuildings will require planning permission. Overall costs for maintaining extensive grounds, farm buildings and arable management should be factored into the purchase decision.
4 bedroom detached house for sale in Branston Fen, Bardney, Lincoln, LN3 — £795,000 • 4 bed • 2 bath • 2602 ft²
Farm for sale in Branston Fen, Bardney, Lincoln, LN3 — £725,000 • 1 bed • 1 bath • 2358 ft²
Detached house for sale in White House Farm, Low Lane, Friskney, Boston, Lincolnshire, PE22 — £11,000,000 • 1 bed • 1 bath • 980 ft²
4 bedroom farm house for sale in 4.75 Acres - Snarford Road, Wickenby, Lincoln, LN3 — £685,000 • 4 bed • 2 bath • 2490 ft²
Farm land for sale in Lot 3 - Arable Farmland, Totalling 88.84 Hectares (219.55 Acres), Whisby, Lincoln, Lincolnshire, LN6 9BT, LN6 — £2,100,000 • 1 bed • 1 bath
Farm land for sale in Lot 6 - Around 13.02 Acres Bardney Road, Branston Booths, Lincoln, Lincolnshire, LN4 1JD, LN4 — £130,000 • 1 bed • 1 bath


















































