Substantial plot, period charm and versatile barns for rural life or small enterprise.
4.75 acres with five large barns and various outbuildings
Sympathetic restoration retaining beams, bay windows and character
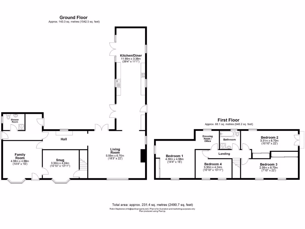
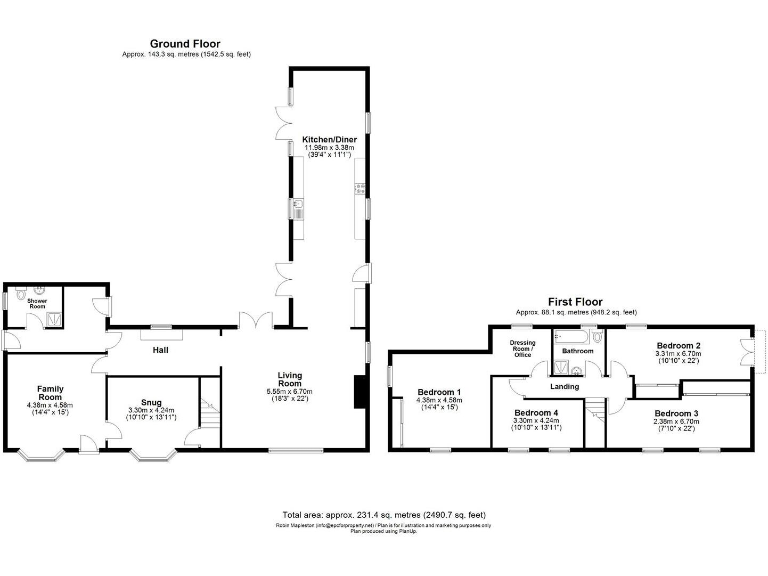
Extended open-plan kitchen/diner and three reception rooms
Four bedrooms; main bedroom with dressing area
Air source heat pump, anthracite boiler and multi-fuel burner (ornamental)
Private water treatment plant; sewage not mains-connected
Very slow broadband speeds despite excellent mobile signal
Stable and some outbuildings require renovation or repair
Set in about 4.75 acres with far-reaching Lincolnshire views, Bridge Farm House is a sympathetically restored farmhouse that blends period character with practical modern upgrades. The house offers generous living space across multiple reception rooms, an extended kitchen/diner, four bedrooms and two bathrooms — suitable for family living, small-scale agriculture or equestrian use. A selection of five large barns and outbuildings provide immediate scope for storage, workshop use or conversion, subject to permissions.
The owners have retained traditional features — exposed beams, bay windows and a multi-fuel burner in the main living room — while adding contemporary comforts including an air source heat pump, uPVC double glazing and a re-fitted kitchen. The property is detached, freehold and occupies a substantial plot, giving privacy and useful outdoor areas including orchard, greenhouse, lawns and a rear patio with panoramic views.
Buyers should note some practical considerations: sewage is handled by a private water treatment plant, broadband speeds are very slow, and one burner in the snug is sold as ornamental and may require work or certification (Hetas) to use. Several outbuildings and the stable will need renovation before reuse. Heating is provided by a boiler using anthracite fuel alongside the air source heat pump, which may influence running costs and fuel supply planning.
Location is rural but not isolated: Wickenby hamlet is nearby, Wragby (shops, events) is under six miles, Market Rasen around seven miles and Lincoln about eleven miles. The house sits in a low-flood-risk area and is in the William Farr School catchment — attractive for families seeking countryside living with reasonable access to local schools and transport links.
4 bedroom detached house for sale in Snarford Road, Wickenby, Lincoln, LN3 — £685,000 • 4 bed • 2 bath • 2400 ft²
Equestrian facility for sale in Market Rasen Road, Dunholme, LN2 — £525,000 • 4 bed • 3 bath • 2367 ft²
4 bedroom farm house for sale in Old Glebe Farmhouse (Barn One), Horncastle Lane, Lincoln, Lincolnshire, LN1 2SZ, LN1 — £620,000 • 4 bed • 3 bath • 2551 ft²
5 bedroom detached house for sale in Church Street, Middle Rasen, LN8 — £495,000 • 5 bed • 2 bath • 3693 ft²
3 bedroom cottage for sale in North Willingham, Market Rasen, LN8 — £300,000 • 3 bed • 1 bath • 1335 ft²
4 bedroom detached house for sale in Hall Farmhouse, Hall Drive, Canwick, Lincoln, Lincolnshire, LN4 2RG, LN4 — £850,000 • 4 bed • 2 bath • 2397 ft²






























































































































