RG2 9PN - 1 bed arborfield industrial development in Eversley Road, R…

View on Property Piper

Warehouse for sale in Boundoak Industrial Estate, Arborfield Cross, Arborfield, Reading, RG2 9PN, RG2

Summary - THE COPSE, EVERSLEY ROAD, READING, ARBORFIELD CROSS RG2 9PN

1 bed 1 bath Warehouse

Large planning-permitted industrial site near Reading Science Park, ideal for developers and investors.
2.43-acre freehold development plot with vacant possession available
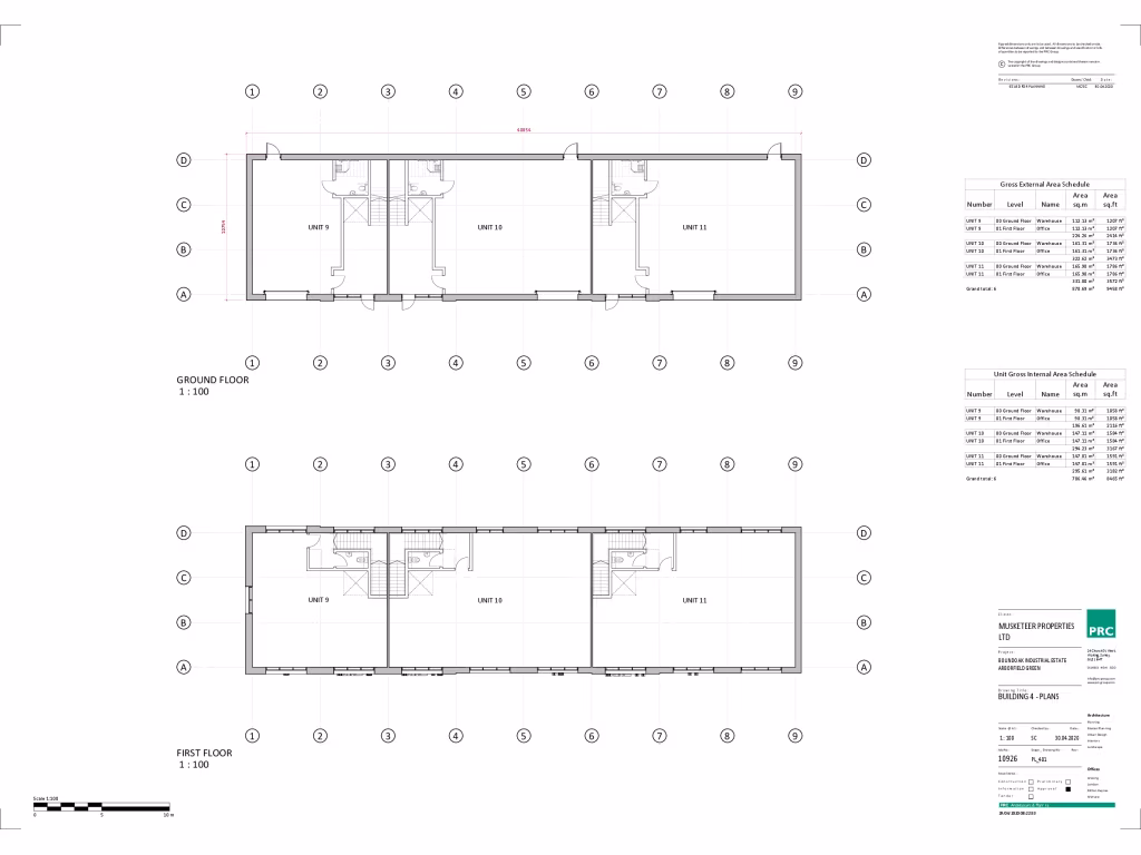
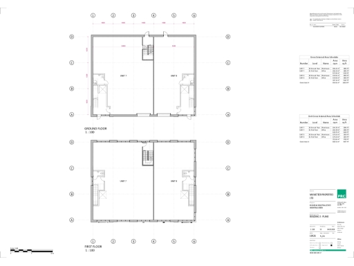
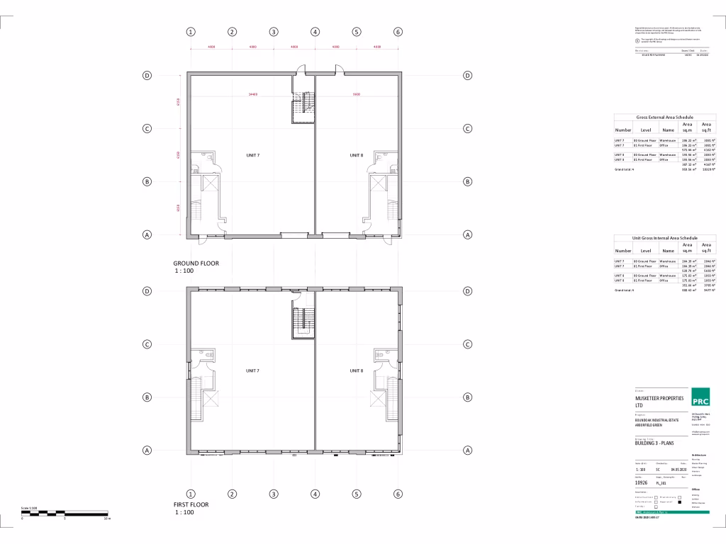
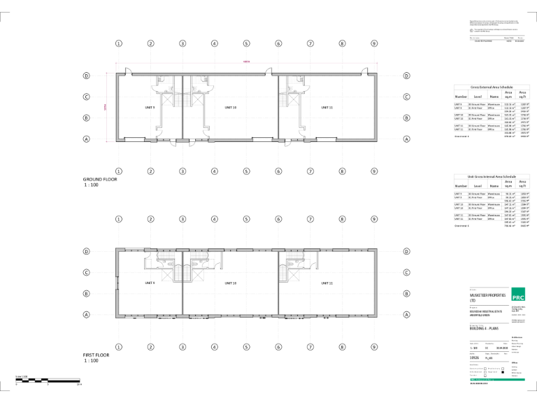
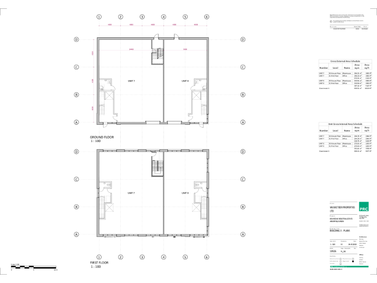
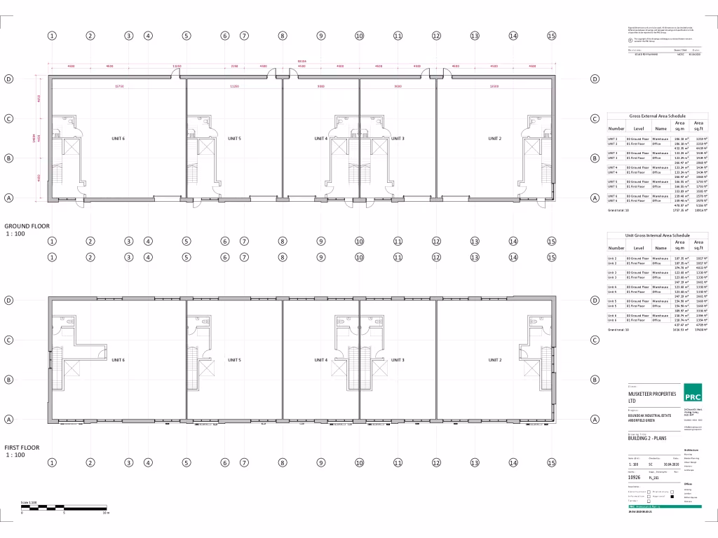
Rare freehold development site of 2.43 acres with planning permission for 11 two-storey business/industrial units (total GEA 44,992 sq ft). The site sits in Boundoak Industrial Estate close to new road infrastructure, Shinfield Studios and Reading Science Park, offering immediate access to key road links and local industry.

Power capacity is already significant (69 kVA with upgrade potential to 500 kVA), and the plot includes circa 1.5 acres suitable for short-term open storage. Unit 1 (6,290 sq ft) is available on a pre-let or turnkey basis, and the existing footprint includes 19,105 sq ft of buildings, enabling phased delivery or refurbishment options.

Practical considerations: the sale is subject to VAT, broadband speeds in the area are reported slow, and Unit 1 being pre-let may limit immediate vacant floor area. The opportunity best suits developers or occupiers seeking a strategically positioned industrial/technology park site with strong road connectivity and scalable power infrastructure.

In short, this is a large, well-located brownfield development plot with planning in place and utility capacity to support industrial, laboratory, or high-office-content uses, balanced by transactional VAT implications and some site-specific service constraints.

Property Details

Brochure Descriptions

Image Descriptions

Floorplan Description

Rooms

Textual Property Features

Target Audience

AI Tags

Detected Visual Features

Nearby Schools

Nearest Bars And Restaurants

,,,,}

Nearest General Shops

,,}

Nearest Grocery shops

,,}

Nearest Supermarkets

,,}

Nearest Religious buildings

,,}

Nearest Medical buildings

,,,}

Nearest Airports

}

Nearest Leisure Facilities

,,,,}

Nearest Tourist attractions

,,}

Nearest Train stations

,,,,}

Nearest Bus stations and stops

,,,,}

Nearest Hotels

,,}

Tags

Local Market Stats

AirBnB Data

Similar Properties

Meta

High Res Images

Compatible Images

Low res Images

Thumbnails

Raw Images

High Res Floorplan Images

Compatible Floorplan Images

Low res Floorplan Images

FloorplanImages Thumbnail

Raw Floorplan Images