Compact two-bed home with high ceilings and open-plan living.
Central Liverpool city-centre location, L1 postcode
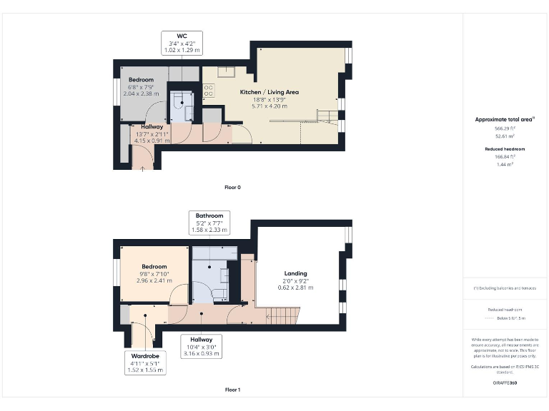
This compact two-bedroom duplex on Sir Thomas Street offers an efficient city-centre home with characterful high ceilings and tall windows that flood the living space with light. The open-plan living room and integrated kitchen make good use of the 567 sq ft footprint, and two bathrooms add practical convenience for busy households or sharers.
Chain-free and with 105 years remaining on the lease, the apartment is straightforward to purchase for a first-time buyer or investor seeking central Liverpool accommodation. The property’s modest size and smart finishes reduce immediate maintenance needs and present simple scope for cosmetic improvements to increase value.
Buyers should note a number of material factors: heating is by electric storage heaters, the building appears to have solid brick walls with no cavity insulation (as built), and broadband speeds in the area are reported as very slow. The immediate area is a busy, cosmopolitan student neighbourhood with a very high crime score and local deprivation indicators, which will influence both day-to-day living and long-term rental demand.
Overall this duplex suits a buyer wanting an affordable, walkable city-centre base or an investor targeting short-term lets or city-rental demand. Its positives (central location, high ceilings, two bathrooms) are balanced by energy and connectivity limitations and local safety and amenity considerations that deserve careful weighing at viewing.
2 bedroom apartment for sale in Old Hall Street, Liverpool, Merseyside, L3 — £180,000 • 2 bed • 2 bath • 753 ft²
1 bedroom apartment for sale in Falkner Street, Liverpool, Merseyside, L8 — £140,000 • 1 bed • 1 bath • 487 ft²
1 bedroom apartment for sale in George Street, Liverpool, Merseyside, L3 — £140,000 • 1 bed • 1 bath • 528 ft²
3 bedroom apartment for sale in Henry Street, Liverpool, Merseyside, L1 — £200,000 • 3 bed • 1 bath • 1066 ft²
2 bedroom apartment for sale in Rumford Place, Liverpool, Merseyside, L3 — £200,000 • 2 bed • 2 bath • 1217 ft²
2 bedroom duplex for sale in Bereys Building, Liverpool, L3 — £160,000 • 2 bed • 1 bath • 926 ft²






















































