Bright 1-bed duplex with long lease and low council tax—great for first-time buyers.
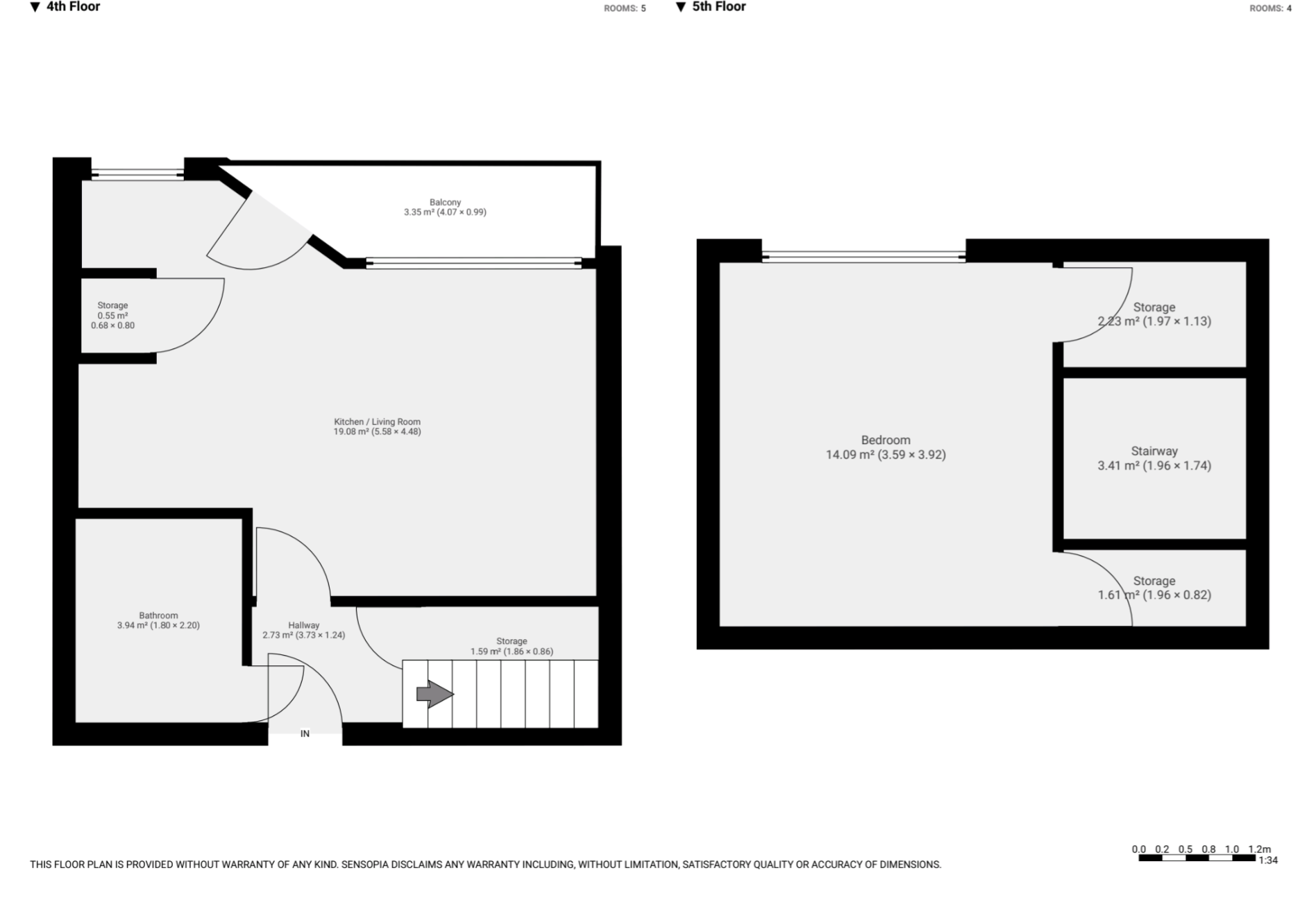
One-bedroom duplex layout across two levels
Set across two levels, this one-bedroom duplex offers a bright, well laid-out 487 sq ft home in a lively part of Liverpool. Large windows and a neutral interior create an airy feel while built-in storage and a contemporary kitchen make day-to-day life easy. The long lease (245 years) and low council-tax band add practical value for buyers starting out or investors seeking a straightforward let.
The apartment sits in a modern block close to cafes, shops and strong transport links, with excellent mobile signal and fast broadband—ideal for commuters, students or remote workers. Communal gardens provide a bit of outside space in the heart of the neighbourhood, and the property’s detached block and tucked-away position help reduce street noise.
Buyers should note a few material points: the home uses electric room heaters (electricity tariff unspecified), which may mean higher running costs and potential heating upgrades. The surrounding area is classed as deprived with average crime levels, and some nearby schools have lower Ofsted ratings—factors to weigh for families. The property is leasehold, but the remaining term is long.
Overall, this duplex is a practical, modern one-bedroom with good connectivity and rental potential. It suits first-time buyers wanting a compact, low-maintenance city base or investors seeking a tenant-friendly apartment, provided you allow for possible heating improvements and the local area profile.
1 bedroom apartment for sale in Falkner Street, Liverpool, Merseyside, L8 — £160,000 • 1 bed • 1 bath • 632 ft²
1 bedroom apartment for sale in George Street, Liverpool, Merseyside, L3 — £140,000 • 1 bed • 1 bath • 528 ft²
1 bedroom duplex for sale in Henry Street, Liverpool, L1 — £140,000 • 1 bed • 1 bath • 649 ft²
3 bedroom apartment for sale in Henry Street, Liverpool, Merseyside, L1 — £210,000 • 3 bed • 1 bath • 1066 ft²
2 bedroom apartment for sale in Old Hall Street, Liverpool, Merseyside, L3 — £190,000 • 2 bed • 2 bath • 753 ft²
2 bedroom apartment for sale in Church Road North, Liverpool, Merseyside, L15 — £220,000 • 2 bed • 2 bath • 922 ft²






























































