**Standout Features:**
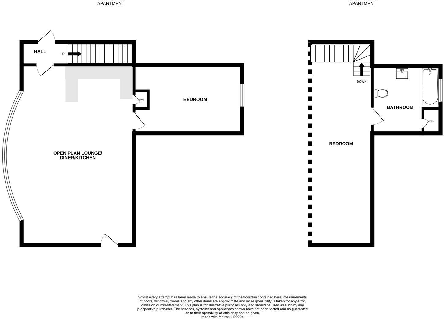
- Unique two-bedroom duplex in the Grade II Listed Bereys Building
- Spacious, open-plan living area with high ceilings and large sash windows
- Prime location in Liverpool's sought-after Commercial District, just a 2-minute walk to Moorfields Station
- Chain-free sale for quick transactions
- Communal courtyard for residents
**Concerns:**
- Some maintenance costs with an average service charge of £2,171
- High crime rate in the area, which may concern some buyers
This charming two-bedroom duplex apartment, nestled within the historic Bereys Building, captures the essence of urban living in Liverpool's thriving Commercial District. Boasting an inviting open-plan living space flooded with natural light from stylish sash windows, the property features a well-designed layout with the master bedroom and bathroom located on the upper floor for added privacy. With high ceilings and contemporary finishes, this home exudes comfort and charisma. The communal courtyard provides a serene escape in the bustling city.
Ideal for investors or young professionals, this property offers not only a unique living experience but also the potential for future customization. Priced at £160,000 and chain-free, this opportunity is rare and may not last long in this desirable area. Don’t miss your chance to claim a piece of Liverpool's vibrant lifestyle today!
2 bedroom apartment for sale in Bereys Building, 33 George Street, Liverpool, L3 — £190,000 • 2 bed • 1 bath • 765 ft²
1 bedroom apartment for sale in George Street, Liverpool, Merseyside, L3 — £140,000 • 1 bed • 1 bath • 528 ft²
2 bedroom apartment for sale in The Albany, Liverpool, L3 — £150,000 • 2 bed • 2 bath • 690 ft²
2 bedroom apartment for sale in Old Hall Street, Liverpool, Merseyside, L3 — £190,000 • 2 bed • 2 bath • 753 ft²
2 bedroom apartment for sale in Rumford Place, Liverpool, Merseyside, L3 — £200,000 • 2 bed • 2 bath • 1217 ft²
2 bedroom duplex for sale in Sir Thomas Street, Liverpool, L1 — £120,000 • 2 bed • 2 bath • 567 ft²














































