Spacious three-bedroom unit with parking and strong rental potential close to Liverpool ONE.
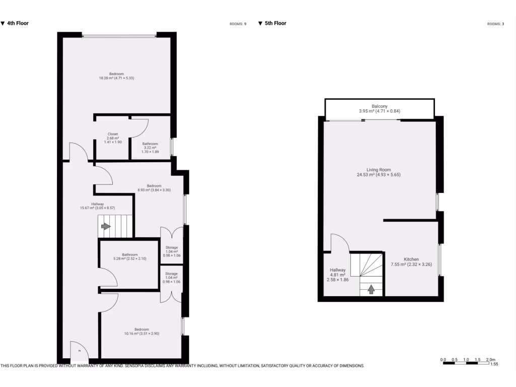
- Duplex three-bedroom layout across two floors, spacious 1,066 sq ft
- Private newly decked balcony with cityscape views
- Secure allocated off-street parking included
- Leasehold with 103 years remaining
- Electric storage heaters; no gas central heating
- Single main bathroom (limited for sharers)
- Located in a busy student neighbourhood; potential noise
- Very high local crime rate may affect insurance and lettings
This well‑proportioned three‑bedroom duplex in the heart of Liverpool city centre offers clear rental and resale appeal. Spread across two floors, the apartment provides an open-plan living area with large windows and a private balcony, plus secure allocated off‑street parking — a scarce asset in L1.
Located steps from Liverpool ONE and strong transport links, the property sits in a busy, multicultural student neighbourhood that supports consistent letting demand. The building’s contemporary construction (1983–1990 era) and double glazing help keep maintenance straightforward; total internal area is approximately 1,066 sq ft, giving flexible layouts for tenants or sharers.
Investors should note material facts plainly: the flat is leasehold with 103 years remaining and heated by electric storage heaters (no gas). There is a single main bathroom, and the wider area records very high crime levels and typical city‑centre noise, reflecting its student and nightlife character. These factors can affect lettings and insurance costs and may require targeted tenant vetting or security measures.
Overall, this duplex suits buy‑to‑let portfolios or buyers seeking central city living with strong footfall and tenant demand. Its parking, central position, and sizeable living space are genuine strengths; pricing positions it as a practical investment with some management considerations due to location and heating type.
3 bedroom flat for sale in Royal Quay, City Centre, Liverpool, L3 — £260,000 • 3 bed • 2 bath • 992 ft²
2 bedroom apartment for sale in Old Hall Street, Liverpool, Merseyside, L3 — £180,000 • 2 bed • 2 bath • 753 ft²
3 bedroom apartment for sale in Royal Quay, Liverpool., L3 — £220,000 • 3 bed • 2 bath • 910 ft²
2 bedroom flat for sale in Wood Street, Liverpool, Merseyside, L1 — £160,000 • 2 bed • 2 bath • 711 ft²
3 bedroom apartment for sale in Colquitt Street, Liverpool, L1 — £650,000 • 3 bed • 3 bath • 1529 ft²
1 bedroom apartment for sale in Falkner Street, Liverpool, Merseyside, L8 — £140,000 • 1 bed • 1 bath • 487 ft²


























































