Budget-friendly one-bedroom near stations and park, ideal for first-time buyers.
Modern kitchen and bathroom, ready to occupy
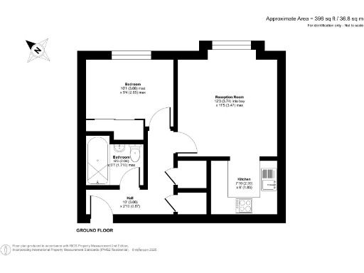
Compact ground-floor flat — total area about 35 sqm
Allocated off-street parking space included
Share of freehold; chain-free sale
Communal garden and pleasant external landscaping
Electric heating via room heaters — no gas central heating
Located near Sydenham and Lower Sydenham stations
Area records higher crime and local deprivation levels
This compact ground-floor flat offers a straightforward move-in option for a first-time buyer seeking a low-maintenance London starter home. At about 35 sqm the layout is modest but well presented, with a modern kitchen and bathroom and a built-in wardrobe in the main bedroom. The property is chain free and comes with a share of the freehold, making the purchase process simpler.
Practical features include an allocated parking space and a communal garden, useful extras in this SE26 location. Transport links are strong for the price point, with Sydenham and Lower Sydenham stations within walking distance, plus nearby retail at Bell Green and green space at Mayow Park.
Important drawbacks are factual: the flat is small (approx. 35 sqm), is electric-heated via room heaters rather than central heating, and sits in an area with higher crime statistics and relative deprivation. Broadband speeds are average. The property is leasehold (share of freehold noted), so check lease terms and service charges before committing.
This is a practical, budget-friendly purchase for someone prioritising location, low upkeep and a quick move; it will suit a buyer prepared for a compact living space or an investor seeking a lettable, easy-to-manage unit.
1 bedroom flat for sale in Tarragon Grove, Sydenham, London, SE26 — £250,000 • 1 bed • 1 bath • 452 ft²
1 bedroom flat for sale in Tarragon Grove, London, SE26 — £250,000 • 1 bed • 1 bath • 516 ft²
2 bedroom flat for sale in Porthcawe Road, London, SE26 — £235,000 • 2 bed • 1 bath • 507 ft²
2 bedroom flat for sale in Sydenham Road, Sydenham, London, SE26 — £360,000 • 2 bed • 1 bath • 700 ft²
2 bedroom flat for sale in Venner Road, London, SE26 — £400,000 • 2 bed • 1 bath • 616 ft²
2 bedroom flat for sale in Cricketers Walk, Sydenham, London, SE26 — £350,000 • 2 bed • 1 bath • 549 ft²






















































