Exceptional rear garden and commuter convenience for growing families.
- Over 150 ft rear garden ideal for family life and landscaping
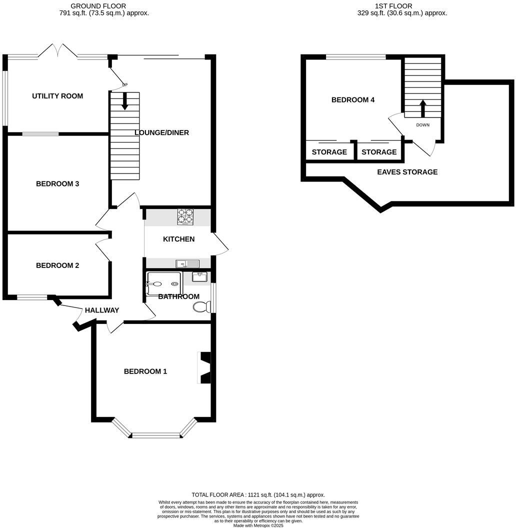
- Four bedrooms including large first-floor room with eaves storage
- Bright lounge/diner with garden aspect and separate kitchen
- Utility room with direct garden access and off-street driveway parking
- Modest internal footprint (approx 849 sq ft) and only one bathroom
- Freehold tenure, fast broadband and moderate council tax
- Minutes to Benfleet station (c2c) and High Road amenities
- Local crime levels above average; condition likely requires updating
This four-bedroom semi-detached chalet offers genuine family potential in a sought-after Benfleet spot, a short walk from the station, High Road amenities and several well-regarded schools. The standout asset is the very deep rear garden (advertised at over 150 ft), providing rare outdoor space for children, pets, entertaining or future landscaping and extension (subject to consents).
Internally the layout works for flexible family life: three ground-floor bedrooms, a bright lounge/diner with garden aspect, separate kitchen and a handy utility with outside access. The first-floor bedroom benefits from built-in cupboards and extensive eaves storage, useful for seasonal items. Off-street driveway parking adds practical convenience for daily commuting.
Buyers should note the property’s modest internal footprint (around 849 sq ft) and single family bathroom, which may feel tight for larger households without refurbishment or reconfiguration. Crime levels in the area are above average; prospective purchasers may want to check neighbourhood safety data. Overall condition and finish are not specified, so some updating is likely required to maximise value.
For families seeking outdoor space and commuter convenience, this chalet bungalow presents strong potential to customise and add value. The freehold tenure, fast local broadband and moderate council tax are additional practical benefits; viewings are recommended to appreciate the garden and layout first-hand.
4 bedroom semi-detached bungalow for sale in Elm View Road, Benfleet, SS7 — £425,000 • 4 bed • 2 bath • 803 ft²
5 bedroom semi-detached house for sale in New Park Road, Benfleet, SS7 — £425,000 • 5 bed • 2 bath • 1132 ft²
4 bedroom chalet for sale in St. Clements Road, Benfleet, SS7 — £525,000 • 4 bed • 1 bath • 1324 ft²
4 bedroom semi-detached house for sale in Perry Road, Benfleet, SS7 — £425,000 • 4 bed • 2 bath • 1062 ft²
4 bedroom detached bungalow for sale in Benfleet Road, Benfleet, SS7 — £1,350,000 • 4 bed • 3 bath • 2693 ft²
3 bedroom detached bungalow for sale in Hope Road, Benfleet, SS7 — £500,000 • 3 bed • 1 bath • 737 ft²






































































