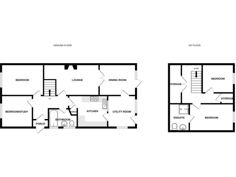
Flexible four-bed layout with a large rear garden and garage, ideal for families.
- Four bedrooms with first-floor master and en-suite
- Two ground-floor rooms; one suitable as a study/home office
- Spacious lounge and separate dining room for family living
- Modern fitted kitchen with adjoining utility room
- Approx 100ft attractive rear garden; scope to landscape or extend
- Detached single garage plus block‑paved driveway parking
- Overall internal size modest (~803 sq ft); some rooms compact
- Slow broadband reported; average mobile signal
This chalet-style semi-detached bungalow offers flexible family living across two levels, with four bedrooms including a first-floor master and en-suite. The layout suits multigenerational households or those needing ground-floor accommodation and a home office: two bedrooms are on the ground floor, one easily used as a study.
Inside you'll find a generous lounge leading to a separate dining room, a modern fitted kitchen with adjoining utility, and a practical family bathroom on the ground floor. The property benefits from a block-paved driveway, single detached garage and a large, approximately 100ft rear garden ideal for children, entertaining or future landscaping and extension potential (subject to consents).
Located in a very low-crime, very affluent area of Benfleet with strong commuter links to London and the M25, the home is freehold and well placed for local schools and bus routes. Note the overall internal footprint is modest (total ~803 sq ft) and some rooms are compact; broadband speeds are reported slow and mobile signal is average. Those needing high-speed connectivity should investigate provider options.
4 bedroom bungalow for sale in Hope Road, Benfleet, SS7 — £425,000 • 4 bed • 1 bath • 849 ft²
4 bedroom chalet for sale in St. Clements Road, Benfleet, SS7 — £525,000 • 4 bed • 1 bath • 1324 ft²
4 bedroom detached house for sale in The Spinnakers, Benfleet, SS7 5, SS7 — £600,000 • 4 bed • 2 bath • 1364 ft²
4 bedroom detached house for sale in London Road, Benfleet, SS7 — £550,000 • 4 bed • 1 bath • 1249 ft²
4 bedroom detached bungalow for sale in Benfleet Road, Benfleet, SS7 — £1,350,000 • 4 bed • 3 bath • 2693 ft²
4 bedroom semi-detached house for sale in Kimberley Road, Benfleet, SS7 — £450,000 • 4 bed • 1 bath • 1373 ft²






























































































