**Standout Features:**
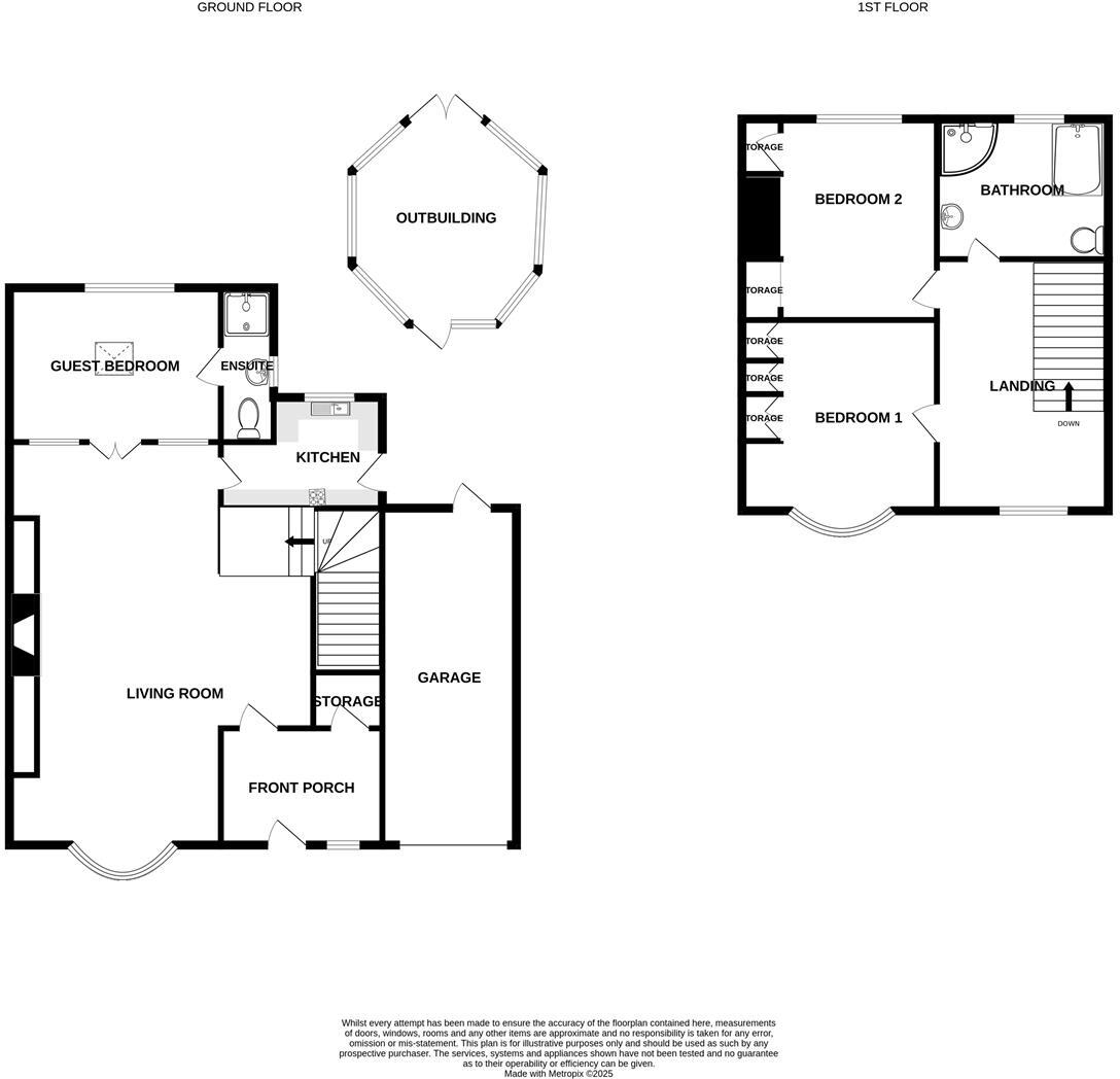
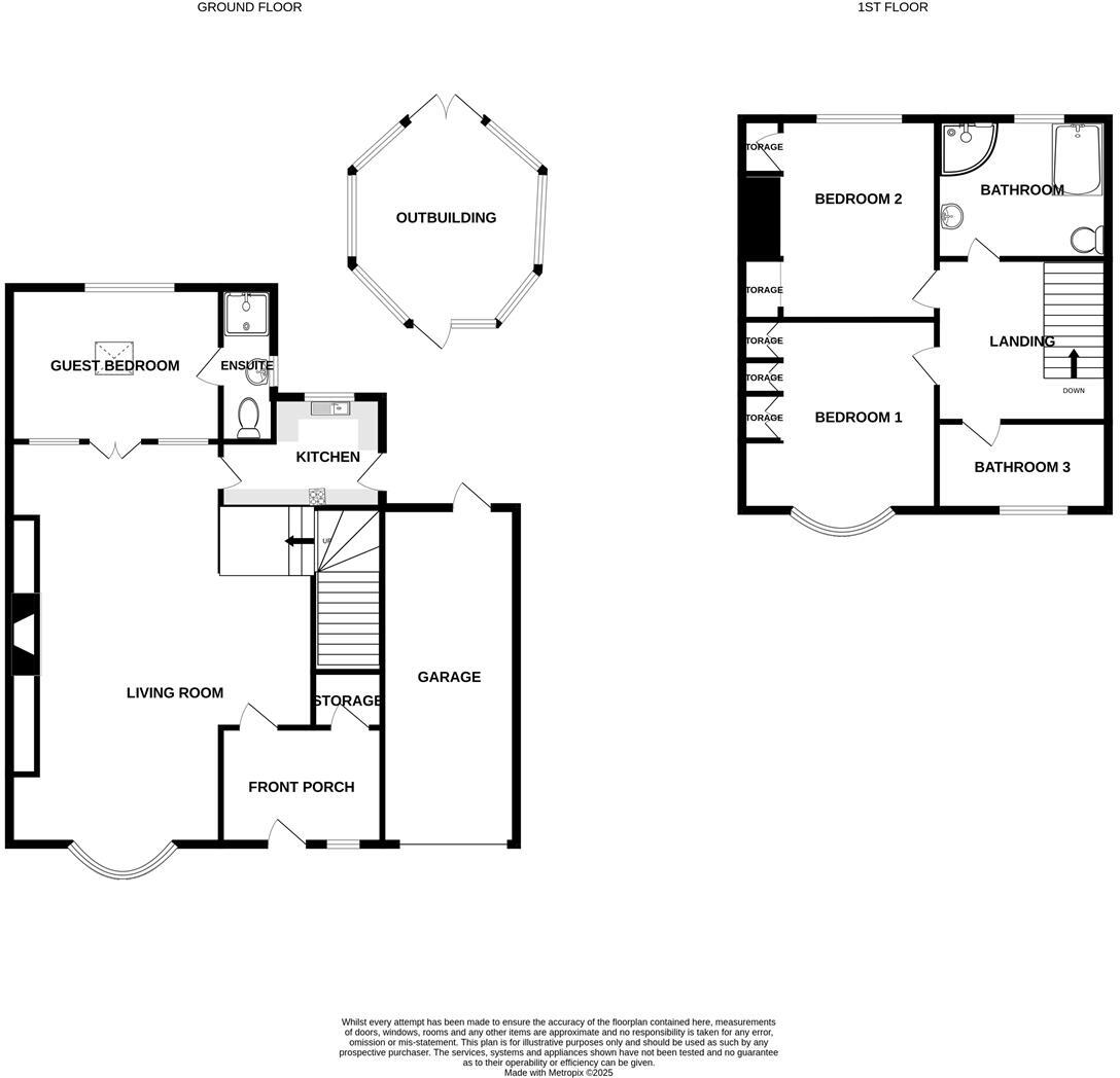
- Four bedrooms (currently configured as three)
- Ground floor en-suite bedroom
- Characterful 1930s architecture with modern updates
- Approximately 75 ft landscaped rear garden
- Parking for multiple vehicles plus a garage
- Versatile outbuilding that can serve multiple purposes
- Excellent transport links and local amenities nearby
**Potential Concerns:**
- Original bedroom wall removed; can be restored with additional plans
- Average broadband speed may affect remote work requirements
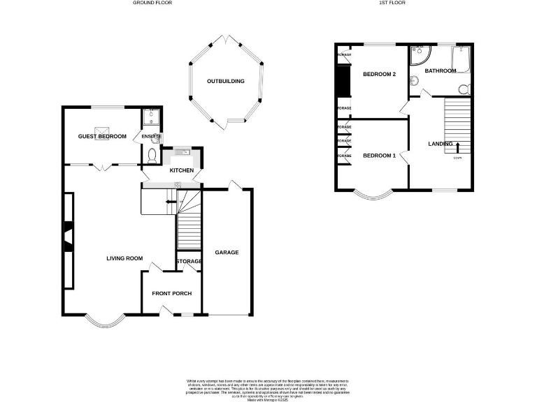
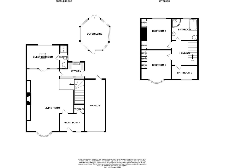
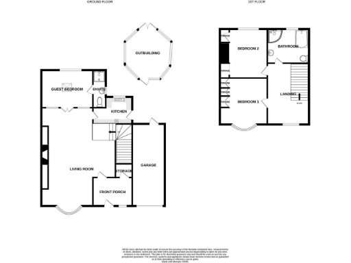
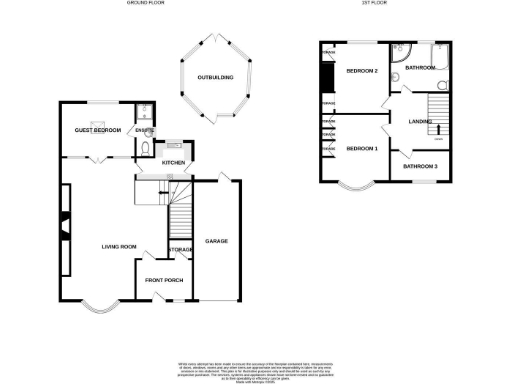
Nestled on a highly desirable tree-lined road in South Benfleet, this charming semi-detached home blends character and convenience, making it ideal for families or professionals. With its expansive driveway and attached garage, parking is never a concern. The well-lit ground floor boasts a spacious living room with a feature bay window, a cozy kitchen that flows into the rear garden, and a flexible guest bedroom with an en-suite, perfect for multigenerational living.
The upstairs offers two generously sized rooms with ample storage, accompanied by a modern family bathroom. The unique feature of this home is the detached outbuilding in the garden, presenting endless possibilities for a home office, gym, or creative space. The beautifully landscaped garden enhances your outdoor experience, making it perfect for relaxation or entertaining.
This property combines a superb location near shops, restaurants, and top-rated schools with the potential for future modifications—a rare find that won't last long on the market! Don't miss your chance to make this versatile family home your own; envision the possibilities today!































































































