PE24 5BW - 1 bed four building plots in Hunters Meadow, PE24 5BW

View on Property Piper

Land for sale in Plots 9-12 Sunshine Avenue, Burgh le Marsh, Skegness, Lincolnshire, PE24 5BW, PE24

Summary - 9 Wildshed Lane, Burgh Le Marsh, Skegness PE24 5BW

1 bed 1 bath Land

Four large ready-to-build plots with full planning permission near Skegness — guide prices from £115,000..
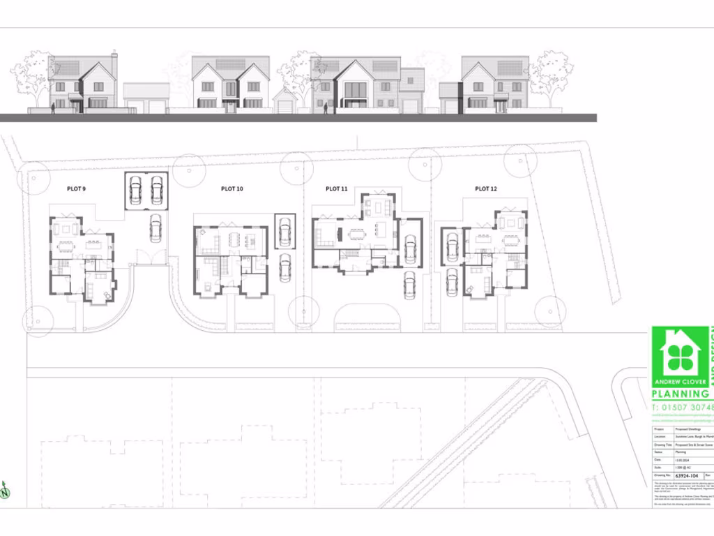
Full planning permission for four 4-bedroom detached houses (ref S/023/00834/24).|Plot sizes range from c.2,152 to c.3,034 sq ft — very large individual plots.|Mix of garages: detached double, detached single, attached single garages.|Guide price from £115,000 per plot; additional plot negotiable separately.|Rural town-fringe setting; 300m from local primary school and village amenities.|Tenure unknown; purchasers must verify services and connections.|Slow broadband and average mobile signal may affect remote working.|No flood risk; local crime levels very low
Full planning permission has been granted for four detached family houses on Sunshine Avenue, Burgh le Marsh (planning ref S/023/00834/24). The consent covers four modern 4-bedroom detached homes with a mix of detached and attached single or double garages, served off a new private driveway. Plot sizes range from approximately 2,152 sq ft to 3,034 sq ft, offering notably large individual plots and private garden space.

This site suits small-volume developers, local builders or investors wanting ready-to-build plots in a semi-rural setting close to Skegness. The location is about 300m from St Peter & St Paul C of E Primary School and close to local shops and amenities in Burgh le Marsh. The surrounding area is mainly agricultural and low-density housing, giving good privacy and countryside outlooks.

Buyers should note material points before viewing: tenure is listed as unknown and buyers must confirm services and connections (mains water, drainage, gas, electricity) prior to purchase. Broadband speeds are reported as slow and mobile signal as average, which may affect purchasers prioritising high-speed connectivity. There is no flood risk recorded, and local crime levels are very low.

Guide pricing starts from £115,000 per plot. An additional plot (plot 6) may be available separately. Full planning documents, layouts and technical details are available from East Lindsey District Council and should be reviewed to confirm design, access and any conditions prior to exchange.

Property Details

Brochure Descriptions

Image Descriptions

Textual Property Features

Target Audience

AI Tags

Detected Visual Features

Nearby Schools

Nearest Bars And Restaurants

,,,,}

Nearest General Shops

,,}

Nearest Grocery shops

,,}

Nearest Supermarkets

,,}

Nearest Religious buildings

,,}

Nearest Medical buildings

,,,}

Nearest Leisure Facilities

,,,,}

Nearest Tourist attractions

,,}

Nearest Train stations

,,,,}

Nearest Bus stations and stops

,,,,}

Nearest Hotels

,,}

Tags

Local Market Stats

AirBnB Data

Similar Properties

Meta

High Res Images

Compatible Images

Low res Images

Thumbnails

Raw Images