**Standout Features:**
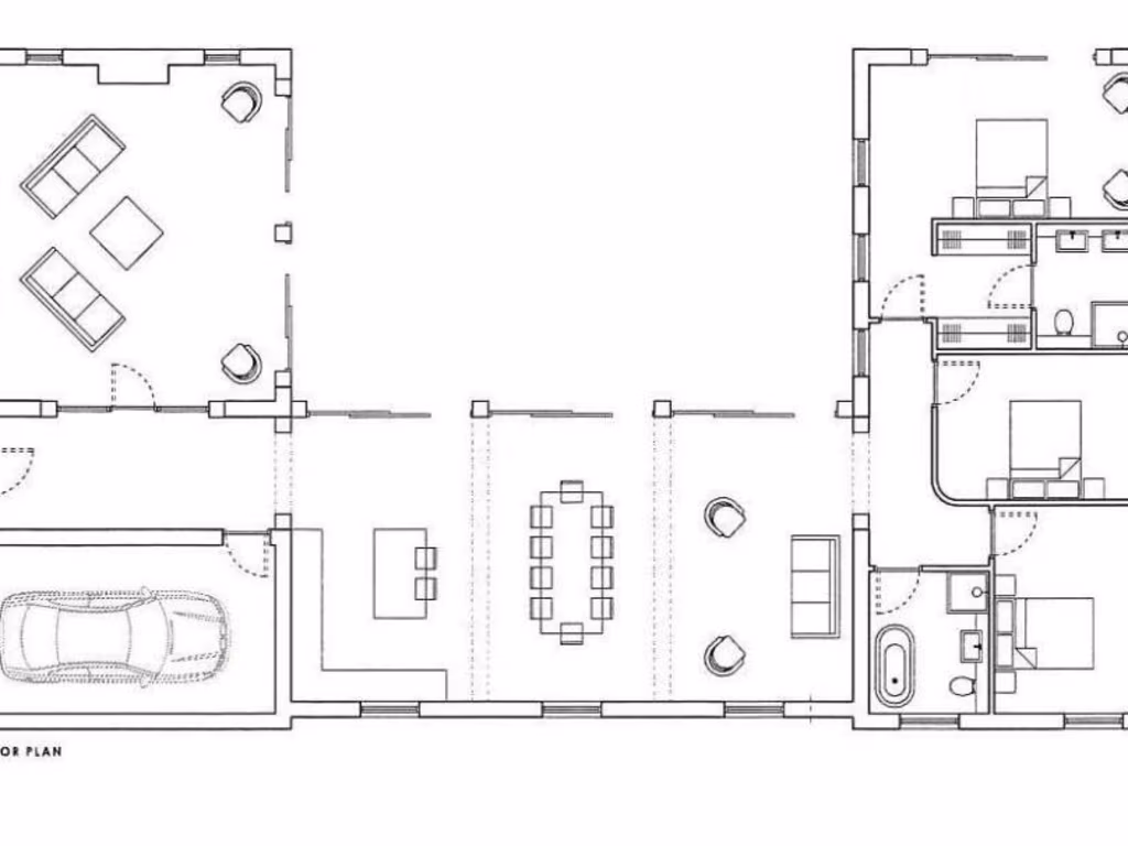
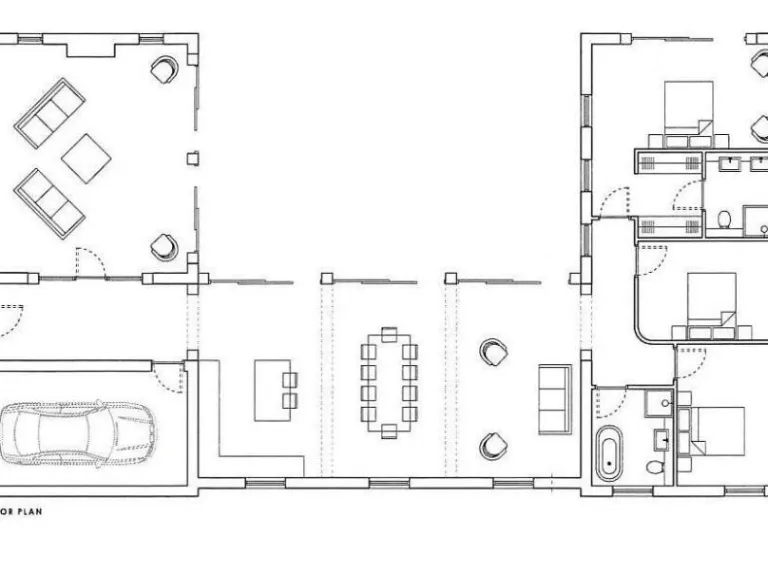
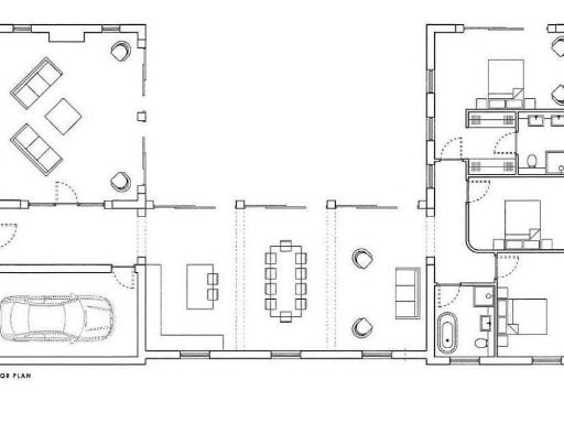
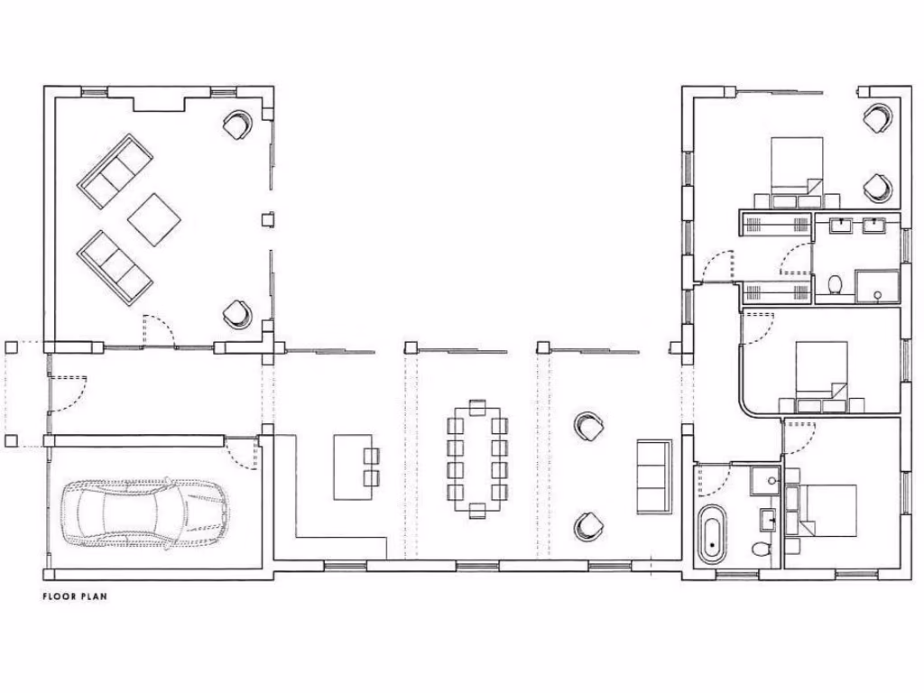
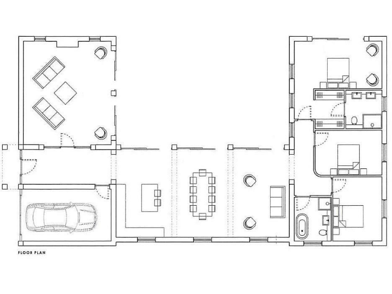
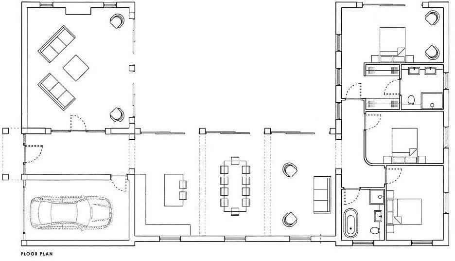
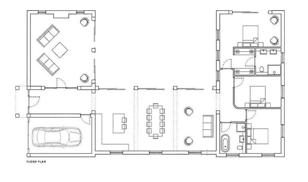
- Individual building plot with **full planning permission granted** for a **3-bedroom detached bungalow**
- **Over a third of an acre** in size, providing a generous outdoor space
- Situated in a **private location** with gated access, close to the town center of Burgh Le Marsh
- **Established gardens** enriched with trees and shrubs within a **conservation area**
- **Low crime rate** in a tranquil small-town setting
- Ideal opportunity for self-build enthusiasts looking to create their dream home
**Property Summary:**
Discover an exceptional building plot on High Street in Burgh Le Marsh, perfect for those seeking a tranquil yet accessible rural lifestyle. This spacious plot extends over one-third of an acre and comes with full planning permission (granted on 15/09/2023) for a stylish 3-bedroom detached bungalow with a garage. Nestled in a private enclave with gated access, you'll enjoy a peaceful retreat while being just a short stroll from the town center's amenities.
The landscape is adorned with established gardens featuring mature trees and shrubs, ideal for planning your perfect outdoor oasis. Additional conveniences include easy access to mains services for water and electricity, and a pre-agreed drainage installation route. Whether you envision a modern family haven or a cozy retirement haven, this plot offers endless potential to shape a home that meets your desires.
Don’t miss out on this rare self-build opportunity in a sought-after market town; secure your slice of peaceful living just five miles from bustling Skegness. Act fast, as properties like this seldom remain on the market for long!
Plot for sale in Ingoldmells Road, Burgh-le-Marsh, Skegness, PE24 — £95,000 • 1 bed • 1 bath
Plot for sale in Station Road, Burgh Le Marsh, Skegness, PE24 — £145,000 • 1 bed • 1 bath • 380 ft²
Plot for sale in The Common, Burgh Le Marsh, Skegness, PE24 — £86,000 • 1 bed • 1 bath
Plot for sale in The Common, Burgh Le Marsh, Skegness, PE24 — £92,000 • 1 bed • 1 bath
Land for sale in Plots 9-12 Sunshine Avenue, Burgh le Marsh, Skegness, Lincolnshire, PE24 5BW, PE24 — £115,000 • 1 bed • 1 bath
Land for sale in Plot 1, Marsh Road, Orby, Skegness , PE24 — £75,000 • 1 bed • 1 bath • 712 ft²


















































