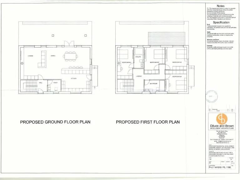
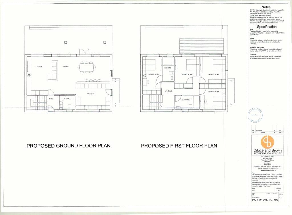
Full permission for a four-bedroom home in a peaceful town-edge setting.
Full planning permission for a 4-bedroom detached house (Plot 6)
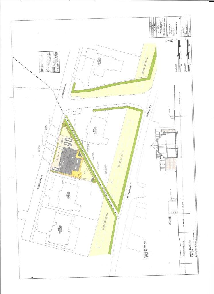
Very large individual plot with space for garden and outdoor living
Includes provision for a garage; proposed modern two-storey design
No flood risk; low local crime and rural fringe location
Close to primary and secondary schools; community amenities nearby
Tenure unknown — prospective buyers should verify ownership details
Slow broadband speeds; average mobile signal in the area
Located within a new development — expect neighbouring construction activity
This is an individual building plot (Plot 6) with full planning permission for a four-bedroom detached house, offered at a guide price of £95,000. The plot is very large, set on the fringe of Burgh le Marsh within a new residential development that balances privacy with a small-community feel. The site includes provision for a garden and a garage, and there is no flooding risk noted.
The location suits families and small developers: several primary and one secondary school rated Good are within reach, and local amenities in Skegness are accessible. Crime levels are very low and the surrounding area is rural with scenic views, reflecting its classification among older farming communities and remoter communities.
Buyers should note a few practical points: tenure is not specified and broadband speeds in the area are slow. Mobile signal is average. The plot sits beside existing and proposed homes, so purchasers should expect some neighbouring development and related construction activity while remaining part of a new community.
For those looking to build a contemporary four-bedroom home, this plot delivers permitted design and a sizeable private garden. It presents clear development potential for a family residence or a small-scale investor seeking a permitted build in a low-crime, rural-edge setting.
Land for sale in Plots 9-12 Sunshine Avenue, Burgh le Marsh, Skegness, Lincolnshire, PE24 5BW, PE24 — £115,000 • 1 bed • 1 bath • 3034 ft²
Plot for sale in The Common, Burgh Le Marsh, Skegness, PE24 — £86,000 • 1 bed • 1 bath
6 bedroom detached house for sale in Station Road, Burgh le Marsh, Skegness, PE24 — £475,000 • 6 bed • 2 bath • 2689 ft²
Plot for sale in The Common, Burgh Le Marsh, Skegness, PE24 — £92,000 • 1 bed • 1 bath
Plot for sale in Station Road, Burgh Le Marsh, Skegness, PE24 — £145,000 • 1 bed • 1 bath • 380 ft²
Plot for sale in Ingoldmells Road, Burgh-le-Marsh, Skegness, PE24 — £95,000 • 1 bed • 1 bath


































