Compact period house near High Street and fast rail links, ideal for first-time buyers.
Three bedrooms in compact Victorian mid-terrace layout
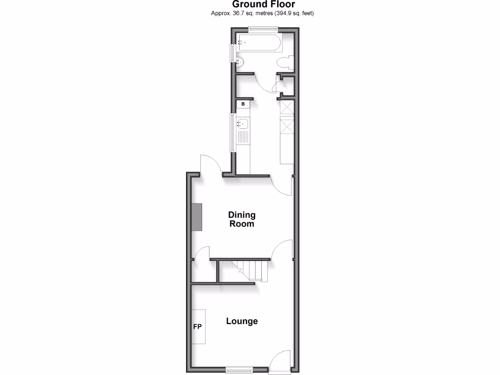
This small three-bedroom Victorian mid-terrace sits a short walk from Rochester’s historic High Street and the high-speed station, making it a practical base for commuting or exploring local amenities. The house is freehold, has a rear garden, and retains period character in a compact, traditional layout — appealing to first-time buyers seeking an affordable entry into the area.
The property needs updating: the kitchen and some internal finishes are dated and in poor condition, and the solid brick walls likely lack modern insulation. Buyers should expect renovation works to improve comfort and energy performance; the layout’s straightforward rooms, modest footprint and rear garden offer practical refurbishment potential.
Please note the sale is by Modern Auction and carries specific costs and timescales. A non-refundable reservation fee (4.5% of the purchase price, minimum applies), buyer pack fees and an undisclosed reserve price apply. Allow time for the 56-day completion window and confirm all auction terms before bidding.
Nearby schooling includes several Ofsted ‘Good’ and one ‘Outstanding’ secondary, useful for families. Broadband and mobile signal are strong and there is no flood risk recorded. The property suits a first-time buyer or investor willing to carry out targeted improvements to add value.
3 bedroom end of terrace house for sale in Grove Road, Strood, Rochester, Kent, ME2 — £180,000 • 3 bed • 1 bath • 606 ft²
3 bedroom terraced house for sale in Foord Street, Rochester, Kent, ME1 — £270,000 • 3 bed • 1 bath • 851 ft²
3 bedroom terraced house for sale in Castle Avenue, Rochester, Kent, ME1 — £280,000 • 3 bed • 1 bath • 905 ft²
3 bedroom terraced house for sale in Cecil Road, Rochester, Kent, ME1 — £280,000 • 3 bed • 1 bath • 840 ft²
3 bedroom end of terrace house for sale in Weller Avenue, ROCHESTER, Kent, ME1 — £250,000 • 3 bed • 1 bath • 925 ft²
3 bedroom terraced house for sale in Darnley Road, Rochester, Kent, ME2 — £225,000 • 3 bed • 1 bath • 687 ft²






















































