Affordable period home with strong refurbishment potential in central Rochester near transport and schools.
- Victorian mid-terrace, circa pre-1900 construction
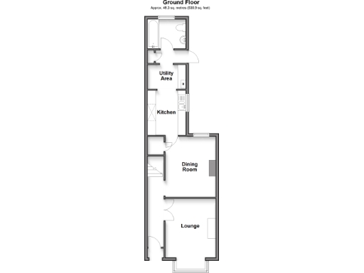
- Three bedrooms, separate lounge and dining room
- Chain-free freehold; approximately 905 sq ft
- Small rear garden; limited outdoor space
- Solid brick walls; likely no modern cavity insulation
- Double glazing fitted before 2002 may need upgrading
- Single bathroom; scope for modernisation and refurbishment
- Close to High Street, high-speed station and good schools
This Victorian mid-terrace offers a traditional layout with separate lounge and dining rooms, making it suitable for first-time buyers or buy-to-let investors. Its location puts the historic Rochester High Street, local amenities and the high-speed train station within easy reach, while fast broadband supports home working.
The house is chain-free and freehold, with three bedrooms and one bathroom across about 905 sq ft. Room proportions are practical for families or sharers, and a small rear garden provides outdoor space. Nearby schools include several Good-rated options and an Outstanding grammar school.
The property is older construction with solid brick walls likely without modern cavity insulation, and double glazing fitted before 2002. The home will benefit from updating and insulation improvements to modernise comfort and running costs. The plot is small and there is a single bathroom, which may influence families seeking more outside space or additional facilities.
Overall this is a centrally located period home offering clear scope for refurbishment and value-add, suited to buyers wanting a reasonably priced entry into Rochester or landlords targeting strong rental demand close to transport and schools.
3 bedroom terraced house for sale in Cecil Road, Rochester, Kent, ME1 — £280,000 • 3 bed • 1 bath • 840 ft²
3 bedroom terraced house for sale in Cecil Road, Rochester, Kent, ME1 — £260,000 • 3 bed • 1 bath • 679 ft²
3 bedroom terraced house for sale in Cecil Road, Rochester, Kent, ME1 — £185,500 • 3 bed • 1 bath • 840 ft²
3 bedroom terraced house for sale in Rochester Avenue, ROCHESTER, Kent, ME1 — £295,000 • 3 bed • 2 bath • 923 ft²
3 bedroom terraced house for sale in Castle Avenue, Rochester, ME1 — £250,000 • 3 bed • 1 bath • 1006 ft²
2 bedroom terraced house for sale in Ross Street, Rochester, ME1 2DF, ME1 — £280,000 • 2 bed • 1 bath • 721 ft²










































