Ideal starter home close to Rochester High Street and fast rail links.
- Freehold Victorian mid-terrace with three bedrooms
- High-speed station to London in approximately 40 minutes
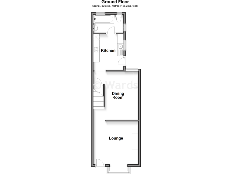
- Separate lounge and dining rooms; traditional linear layout
- Double glazing fitted post-2002; mains gas central heating
- Small rear garden; modest overall footprint (851 sq ft)
- Built before 1900 with solid brick walls, likely no wall insulation
- Located in a very deprived area with high local crime levels
- Requires some modernisation and potential energy-efficiency upgrades
This Victorian mid-terrace offers a practical, low-cost entry into Rochester living for a first-time buyer. The property is freehold, double-glazed, gas-heated with a traditional layout: separate lounge and dining rooms, three bedrooms and a compact kitchen. Commuters benefit from a high-speed rail link to London in around 40 minutes and the historic High Street is a short walk away.
The house is an honest starter home rather than a turnkey finish. It dates from before 1900 with solid brick walls and likely little wall insulation, so buyers should expect some updating and potential energy-efficiency improvements. Room sizes are modest but usable; a small rear garden provides outdoor space for plants or storage.
Practical positives include cheap council tax, mains gas central heating, and recent double glazing. Material downsides to note: the area records high crime levels and sits in a very deprived ward, the plot is small, and the property may benefit from modernisation and routine maintenance. Interested buyers should verify services, consents and exact condition as fixtures and fittings are not guaranteed.
For someone seeking an affordable first home close to good schools, rail links and city amenities, this house represents clear potential. It will suit buyers willing to invest a little time and budget to modernise and improve energy performance, unlocking both comfort and longer-term value.
3 bedroom terraced house for sale in Cecil Road, Rochester, Kent, ME1 — £280,000 • 3 bed • 1 bath • 840 ft²
3 bedroom terraced house for sale in Cecil Road, Rochester, Kent, ME1 — £185,500 • 3 bed • 1 bath • 840 ft²
3 bedroom terraced house for sale in Borstal Street, Rochester, Kent, ME1 — £325,000 • 3 bed • 1 bath • 931 ft²
3 bedroom terraced house for sale in Cecil Road, Rochester, Kent, ME1 — £260,000 • 3 bed • 1 bath • 679 ft²
3 bedroom terraced house for sale in Castle Avenue, Rochester, ME1 — £250,000 • 3 bed • 1 bath • 1006 ft²
3 bedroom terraced house for sale in Cecil Road, Rochester, Kent, ME1 — £172,000 • 3 bed • 1 bath • 679 ft²










































