Chain-free three-bed near High Street and fast rail links for commuters.
- Chain free three-bedroom mid-terrace, ideal first-time buy or investment
- Recently refurbished: new boiler and new flooring throughout
- Walking distance to Rochester High Street and high-speed rail station
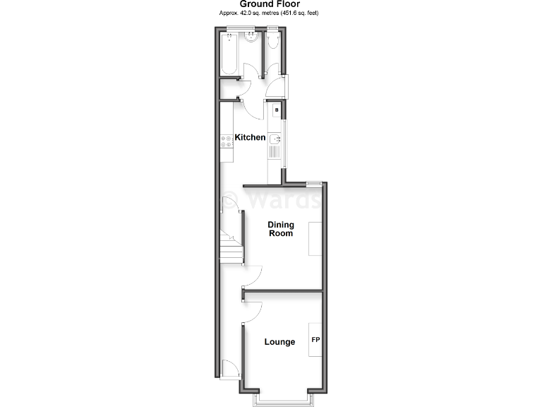
- One bathroom plus separate toilet; modest room sizes across 840 sq ft
- Small rear garden; plot size limited for large outdoor use
- Solid-brick 1930s–40s build; likely no wall insulation (assumed)
- Area has above-average crime rates; check local safety measures
- Fast broadband, excellent mobile signal and low council tax
This mid-terrace, three-bedroom home is a practical first purchase or buy-to-let close to Rochester’s historic High Street. Recently refurbished with a new boiler and new flooring, the property is chain free and ready to occupy. It benefits from fast broadband and excellent mobile signal, and the high-speed station is within walking distance for easy commuting.
Period features such as a bay window and a Victorian fireplace add character, while room proportions are sensible throughout — living areas plus a separate dining room and a small rear garden. The house is solid-brick construction from the 1930s–40s and comes with double glazing (install date unknown) and gas central heating via a radiator system.
Buyers should note practical limitations: the plot is small, there is one bathroom plus a separate toilet, and the property sits in an area with above-average crime rates. The walls are assumed to be uninsulated solid brick, so further insulation work could be needed to improve efficiency. Room sizes are modest; total area is about 840 sq ft.
Nearby schooling is strong, including two grammar schools rated highly. Local amenities are varied — shops, cafes, pubs and transport links are all close by — making the location particularly suitable for commuters, young families and investors seeking a low-entry, lettable property. Legal verification of tenure, services and measurements is recommended.
3 bedroom terraced house for sale in Castle Avenue, Rochester, Kent, ME1 — £280,000 • 3 bed • 1 bath • 905 ft²
3 bedroom terraced house for sale in Cecil Road, Rochester, Kent, ME1 — £260,000 • 3 bed • 1 bath • 679 ft²
3 bedroom terraced house for sale in Cecil Road, Rochester, Kent, ME1 — £185,500 • 3 bed • 1 bath • 840 ft²
3 bedroom terraced house for sale in Foord Street, Rochester, Kent, ME1 — £270,000 • 3 bed • 1 bath • 851 ft²
3 bedroom terraced house for sale in Cecil Road, Rochester, Kent, ME1 — £172,000 • 3 bed • 1 bath • 679 ft²
3 bedroom terraced house for sale in Pickwick Crescent, Rochester, Kent, ME1 — £280,000 • 3 bed • 1 bath • 819 ft²






















































