Ready‑consented site for two four‑bed homes near hospital and town centre.
- Planning consent for two 4‑bedroom executive houses (ref 24/01549/F)
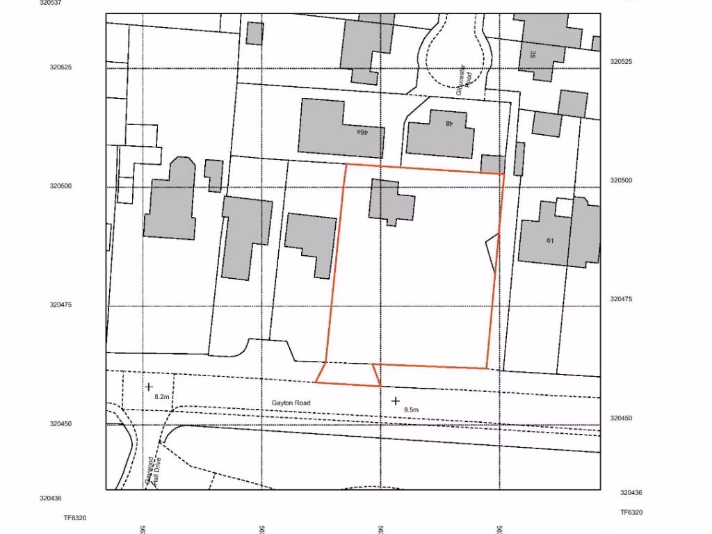
- Mature freehold plot of approximately 0.35 acres (very large)
- Private driveway, attached single garages and garden for each home
- Mains utilities connected; no flood risk; fast broadband and excellent mobile
- Site requires demolition of existing dwelling before construction
- Subject to Community Infrastructure Levy (CIL) charge
- EPC C recorded for existing property; purchasers to verify energy specs
- Close to QE Hospital and King’s Lynn town centre (under one mile)
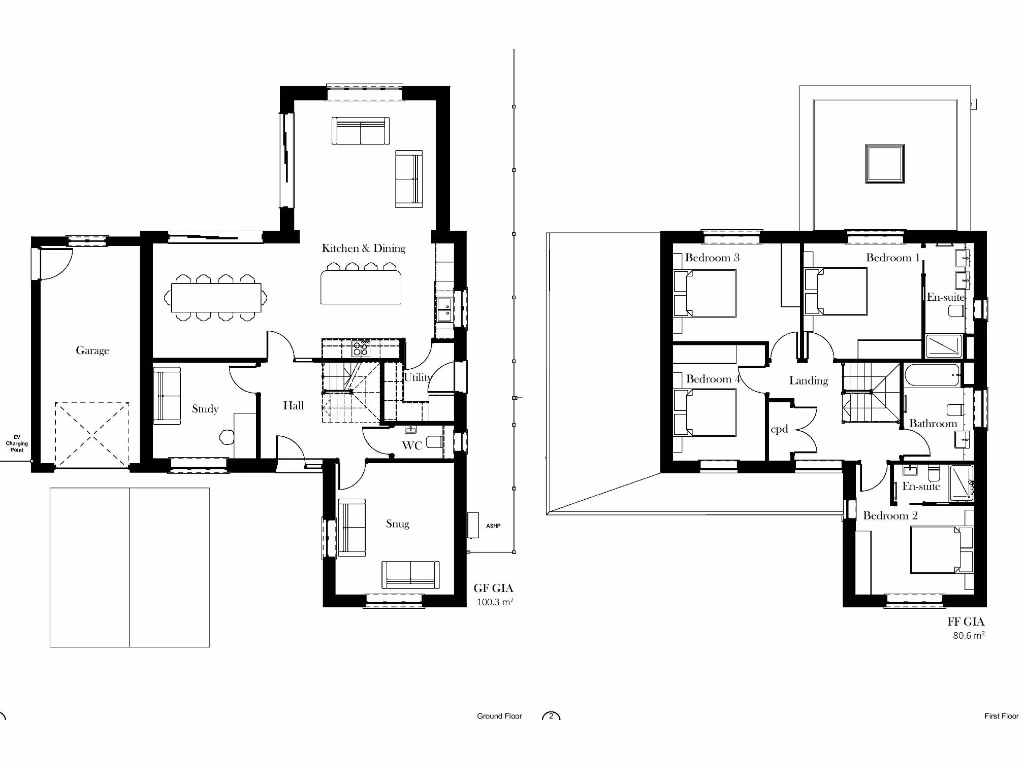
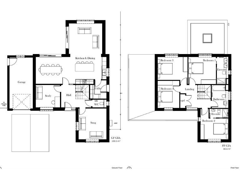
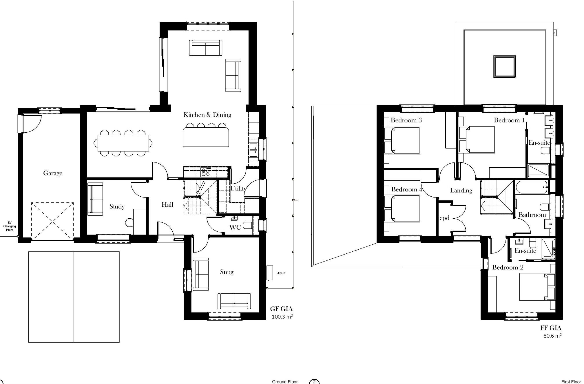
A rare development parcel on Gayton Road with planning consent to replace the existing dwelling with two four‑bedroom executive houses. The mature 0.35 acre plot is freehold, has its own private driveway and benefits from mains utility connections already on site. The consent (ref: 24/01549/F) proposes two contemporary, two‑storey family homes each with an attached single garage and flexible living space.
This site offers immediate scope for a small build project close to King’s Lynn town centre and the QE Hospital (under a mile). The proposed layouts include open‑plan kitchen/living space, a separate snug, study and utility on the ground floor, with four bedrooms upstairs (two en‑suite) and a family bathroom — attractive for owner‑occupiers or resale to families seeking larger homes.
Practical matters to note: the consent requires demolition of the existing dwelling and the site is subject to a Community Infrastructure Levy (CIL) charge. Purchasers should independently verify services, build costs and any further planning conditions on the KL & WN planning portal. The site has no flooding risk, fast broadband and excellent mobile signal, supporting modern family living and sales appeal.
This is best suited to a developer, small housebuilder or an investor looking to deliver two high‑spec family houses in a sought‑after, affluent area. If you value proximity to hospital, local schools and town amenities combined with a ready planning consent, this plot offers a clear, deliverable opportunity — subject to standard due diligence and CIL requirements.
 Land for sale in London Road, King's Lynn, PE30 — £140,000 • 1 bed • 1 bath
 Land for sale in London Road, King's Lynn, PE30 — £140,000 • 1 bed • 1 bath Plot for sale in Building Plot for Three Houses in West Lynn, PE34 — £325,000 • 1 bed • 1 bath • 1027 ft²
 Plot for sale in Building Plot for Three Houses in West Lynn, PE34 — £325,000 • 1 bed • 1 bath • 1027 ft² 4 bedroom detached house for sale in Gayton Road, King's Lynn, PE30 — £550,000 • 4 bed • 2 bath • 1360 ft²
 4 bedroom detached house for sale in Gayton Road, King's Lynn, PE30 — £550,000 • 4 bed • 2 bath • 1360 ft² 3 bedroom detached house for sale in Field Road, King's Lynn, PE30 — £450,000 • 3 bed • 1 bath • 1584 ft²
 3 bedroom detached house for sale in Field Road, King's Lynn, PE30 — £450,000 • 3 bed • 1 bath • 1584 ft² 4 bedroom detached house for sale in Gayton Road, King's Lynn, PE30 — £585,000 • 4 bed • 3 bath • 2127 ft²
 4 bedroom detached house for sale in Gayton Road, King's Lynn, PE30 — £585,000 • 4 bed • 3 bath • 2127 ft² Plot for sale in Howards Way, Gayton, PE32 — £165,000 • 1 bed • 1 bath
 Plot for sale in Howards Way, Gayton, PE32 — £165,000 • 1 bed • 1 bath






























