Historic rural site with wide conversion potential near Frome and Warminster.
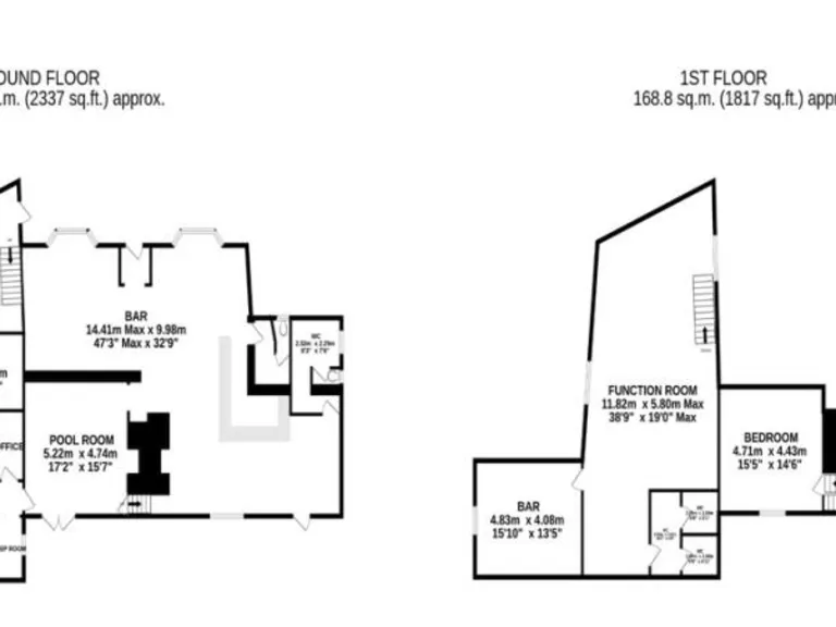
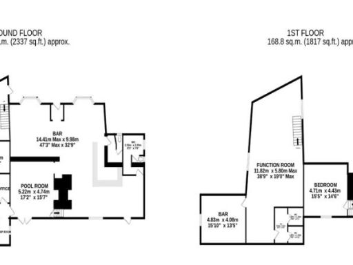
• Substantial former pub with large footprint and multiple public rooms
• Site extends to approximately 0.38 acres with formal lawns and parking
• Separate first-floor function room/skittle alley with bar and toilets
• Scope for residential conversion, continued pub use or alternative commercial uses
• Property requires full refurbishment and improvement throughout
• Private drainage; LPG heating plus oil boiler — budget for services works
• Sold freehold, VAT elected and subject to an existing overage clause
• Rateable value noted at £4,000 (2023 List); check business rates relief
Set on about 0.38 acres, The Cross Keys Inn is a substantial former village public house with significant redevelopment potential. The stone-built building includes two bar areas, a games room, commercial kitchen, beer cellar, stores, and a separately accessed first-floor function room — offering immediate scope for continued hospitality use or conversion to residential or mixed-use, subject to necessary consents.
Externally there is tarmac parking to the side, off-street parking to the front and formal lawns to the rear, giving usable outdoor space for dining, events or additional development. The site benefits from a rural hamlet setting between Frome and Warminster with low crime, good local road links and no flood risk.
The property requires renovation and refurbishment throughout; buyers should factor in private drainage, existing LPG heating with an oil-fired boiler, and partial cavity wall insulation. It is sold freehold, currently elected for VAT and subject to an existing overage clause — these are material considerations for budgeting and future use.
This is best suited to a purchaser who can manage planning and building works — an investor or developer seeking a countryside conversion, an experienced operator wanting to revive a community pub, or someone planning residential redevelopment (subject to consents). Interested parties should carry out their own enquiries on planning, business rates relief and services before committing.
Leisure facility for sale in Cross Keys Inn, Lyes Green, Corsley, Warminster, BA12 7PB, BA12 — £325,000 • 1 bed • 1 bath • 4154 ft²
Pub for sale in The Woolpack, High Street, Sutton Veny, Nr Warminster, Wiltchire, BA12 — £315,000 • 3 bed • 1 bath • 2433 ft²
Pub for sale in Red Lion, Woolverton, Bath, BA2 7QS, BA2 — £545,000 • 1 bed • 1 bath • 5141 ft²
3 bedroom character property for sale in Castle Street, Frome, BA11 — £650,000 • 3 bed • 1 bath • 5500 ft²
Pub for sale in W-420652 - Angel, 3 Church Street, Westbury BA13 3BY, BA13 — £325,000 • 1 bed • 1 bath • 5198 ft²
Pub for sale in W-420539 - Apple Tree Inn, Shoscombe, Bath BA2 8LS, BA2 — £475,000 • 1 bed • 1 bath • 2590 ft²






























