**Standout Features:**
- Fully equipped, traditional detached village pub with residential accommodation
- Open plan bar and dining area for 40+ guests
- Well-appointed commercial kitchen with extensive equipment
- Spacious owner's quarters with three double bedrooms
- Private garden and patio terrace for outdoor dining (30+ guests)
- Forecourt parking available
- Closed since December 2022, with potential for re-establishment or alternative uses (STPP)
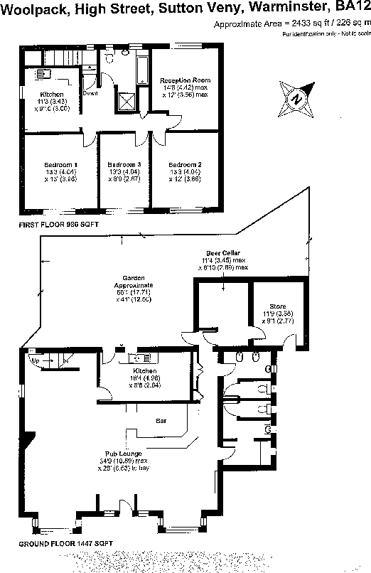
This charming, detached pub nestled in the heart of the picturesque Wiltshire village of Sutton Veny presents a unique opportunity for both business-minded enthusiasts and families. Once a vibrant community hub, The Woolpack has been maintained in excellent condition, ready for immediate trading or conversion for alternative purposes. The inviting open plan main bar and dining area can comfortably seat over 40 patrons, highlighted by a rustic cottage-style design with charming exposed brick and cozy fireplaces, perfect for creating a warm atmosphere.
The property features a well-equipped commercial kitchen, allowing for a seamless transition back to trading, while the expansive owner's accommodation provides three double bedrooms, a comfortable sitting room, and a kitchen/dining area, offering a lovely balance of work and home life. The outdoor spaces—including a private garden and an inviting terrace with seating for 30+ customers—add significant appeal for al fresco dining, making it an ideal setting for social gatherings.
Situated on a prominent high street position, the pub is within proximity to essential amenities and highly regarded schools, making it as appealing for families as it is for potential investors. With a low crime rate and a vibrant community atmosphere, this property is not just a business opportunity but a potential family haven in a coveted village, so act quickly to explore the possibilities this charming building offers.
Pub for sale in Red Lion, Woolverton, Bath, BA2 7QS, BA2 — £575,000 • 1 bed • 1 bath • 5141 ft²
Leisure facility for sale in Cross Keys Inn, Lyes Green, Corsley, Warminster, BA12 7PB, BA12 — £325,000 • 1 bed • 1 bath • 4154 ft²
3 bedroom character property for sale in Castle Street, Frome, BA11 — £650,000 • 3 bed • 1 bath • 5500 ft²
Plot for sale in Cross Keys Inn, Lyes Green, Corsley, Warminster, BA12 — £425,000 • 1 bed • 1 bath • 1357 ft²
Pub for sale in The Royal Oak, Hawkeridge, Nr Westbury, Wiltshire BA13 4LA, BA13 — £3,000 • 4 bed • 1 bath • 2833 ft²
Pub for sale in W-420652 - Angel, 3 Church Street, Westbury BA13 3BY, BA13 — £325,000 • 1 bed • 1 bath • 5198 ft²


















































