Large stone barn with planning consent, dramatic Dales views and renewable installations included in plans..
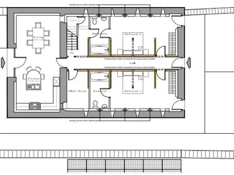
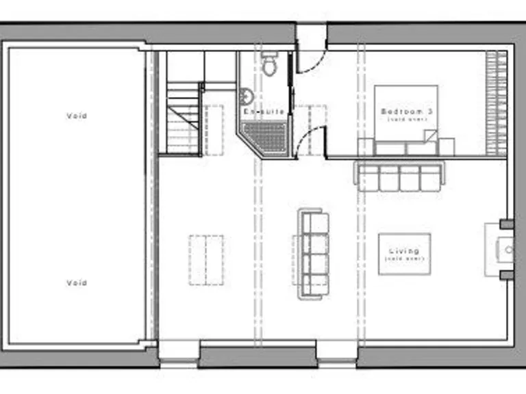
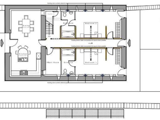
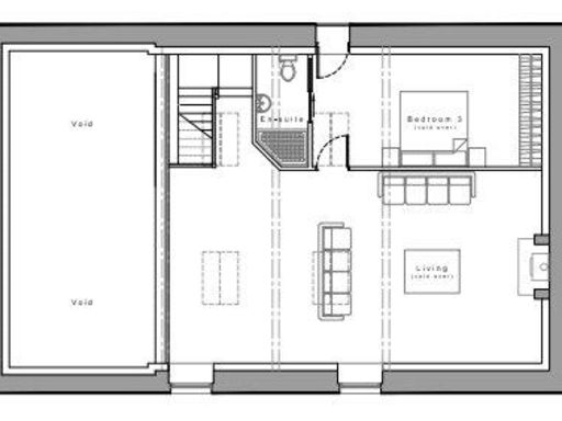
Planning permission for 3-bedroom conversion (Ref C/61/10A)
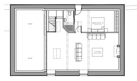
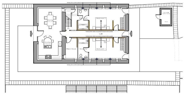
A rare planning-permitted conversion opportunity in the Yorkshire Dales, this substantial stone barn offers more than 2,600 sq ft of internal floor area and dramatic, uninterrupted countryside views. Permission (C/61/10A) is granted to convert to a 3-bedroom dwelling with supporting infrastructure: two parking spaces, cattle grid, borehole and pumphouse, ground-mounted solar, package sewage treatment plant and ground source heat pump. The barn sits in a prominent, exposed hilltop position with excellent privacy and the option to buy additional nine acres separately.
The building is structurally robust and dates from 1861; the roof was replaced in the 1990s. Interiors retain original timber framing and cattle-pen features that could be incorporated into a characterful conversion. The immediate curtilage is modest (approx. 0.24 acres) set within much larger grazing land. Access is directly from a single-track country lane — please refrain from blocking the lane during visits and do not enter the building for safety reasons.
Notable constraints: the planning consent carries a local occupancy or short-term holiday-let restriction, limiting some owner-occupier uses and rental models. Broadband speeds are very slow and mobile signal is average, which may affect remote working. Purchasers should verify all details with Yorkshire Dales National Park Authority and allow for conversion costs and ecological or building-regulation requirements when budgeting.
For an investor or buyer seeking a high-profile countryside conversion, this barn combines strong visual impact and multiple environmental features already approved on plan. The site is suited to a carefully sourced conversion or holiday-let project (subject to the occupancy restriction), with scope to capitalise on views towards Pendle Hill, Skipton and Ilkley and proximity to Malham Cove and Settle amenities.
Detached house for sale in Tranlands, Accraplatts, Kirkby Malham, Skipton, BD23 — £400,000 • 1 bed • 1 bath • 2570 ft²
4 bedroom barn conversion for sale in Barn conversion for sale – Ghyll Syke Barn, Bell Busk, Skipton, BD23 4DU, BD23 — £295,000 • 4 bed • 1 bath • 2337 ft²
Barn conversion for sale in Barn conversions for sale – Cowside Barns, Henside Lane, Langcliffe, Settle, BD24 9PZ, BD24 — £245,000 • 1 bed • 1 bath • 1721 ft²
4 bedroom barn conversion for sale in Long Preston, Skipton, North Yorkshire, BD23 — £225,000 • 4 bed • 3 bath • 2090 ft²
2 bedroom barn conversion for sale in Barn Conversion for Sale – High Haw Garth Barn, Buckden, Skipton, BD23 5JA, BD23 — £200,000 • 2 bed • 1 bath • 1065 ft²
Barn for sale in Studfold, Horton-in-Ribblesdale, BD24 — £100,000 • 2 bed • 1 bath










































































