**Standout Features:**
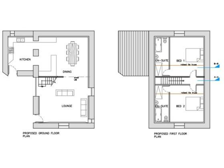
- Stunning stone barn with planning permission for conversion into a 2-bed detached dwelling.
- Set in the stunning Yorkshire Dales National Park, surrounded by breathtaking countryside.
- Low crime area and excellent mobile signal, making it a peaceful retreat.
- Additional land and pasture available for purchase or rent.
This charming stone barn, nestled in the picturesque setting of Studfold, Horton-in-Ribblesdale, presents a rare opportunity for those seeking a rural escape or a renovation project. With detailed planning permission in place for conversion into a spacious 2-bedroom dwelling, this property is ready for your vision. Located along a private road near the tranquil River Ribble, the barn boasts breathtaking views of the renowned 3 Peaks and the natural beauty of the Yorkshire Dales.
The surrounding area is known for its peaceful ambiance and outdoor lifestyle, perfect for nature enthusiasts and families alike. Nearby schools, including the highly rated Austwick Church of England VA Primary School, make it an attractive location for those with children. The property's rural location offers security and tranquility, with local amenities within easy reach. While the barn requires renovation, its rustic appeal and solid stone structure provide a strong foundation for creating a magnificent home or investment opportunity. Don't miss out on this exclusive chance to embrace countryside living—this gem won't last long on the market!
2 bedroom barn conversion for sale in Barn Conversion for Sale – High Haw Garth Barn, Buckden, Skipton, BD23 5JA, BD23 — £200,000 • 2 bed • 1 bath • 1065 ft²
Barn conversion for sale in Barn conversions for sale – Cowside Barns, Henside Lane, Langcliffe, Settle, BD24 9PZ, BD24 — £245,000 • 1 bed • 1 bath • 1721 ft²
Barn for sale in Fleet Barn, Austwick LA2 — £320,000 • 4 bed • 1 bath
2 bedroom barn conversion for sale in Town Head Barn, Buckden, Skipton, BD23 5JA, BD23 — £299,950 • 2 bed • 2 bath • 1163 ft²
4 bedroom barn conversion for sale in Long Preston, Skipton, North Yorkshire, BD23 — £225,000 • 4 bed • 3 bath • 2090 ft²
Barn conversion for sale in The Barn, Accraplatts, Kirkby Malham, Skipton, BD23 — £200,000 • 1 bed • 1 bath • 2632 ft²






























































