AL9 6JJ - 3 bed barn conversion with land in Woodfield Lane, AL9 6JJ

View on Property Piper

3 bedroom detached house for sale in Woodfield Lane, Hatfield, AL9

Summary - Woodfield Lane, Hatfield, AL9 AL9 6JJ

3 bed 1 bath Detached

Secluded 4.4‑acre plot with prior approval for a bespoke three‑bed conversion — high potential, needs full refurbishment..
Approximately 4.4 acres of private, secluded land (STV)
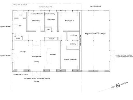
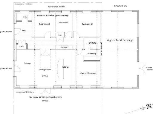
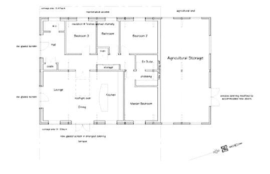
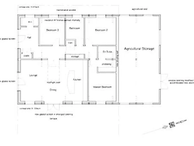
Prior approval granted for 3‑bed barn conversion (147.15 sq m)
Existing agricultural barn with multiple outbuildings for storage
Huge plot suitable for equestrian, leisure or further development
Barn and outbuildings require repair and conversion work
Broadband speeds reported slow; confirm utilities and connections
Only one bathroom indicated; internal layout requires completion
Access via private road; check maintenance and access responsibilities
Set within approximately 4.4 acres of Essendon countryside, this detached site includes an agricultural barn, multiple outbuildings and prior approval to convert part of the barn into a three‑bedroom dwelling (Welwyn Hatfield Borough Council Ref 6/2024/1570/PN10). The approved change of use covers 147.15 sq m of the barn footprint, allowing creation of a bespoke 3‑bed home while leaving the remainder in storage/agricultural use.

The plot is secluded and reached via a private road, offering privacy and extensive outdoor space suitable for equestrian, leisure or small‑scale agriculture. The site is in a very low crime area and close to several well‑rated primary and secondary schools, including Essendon CofE Primary and Chancellor’s School, plus nearby independent options.

Practical considerations: the barn and outbuildings require repair and conversion work — the approval is for prior approval only and the property currently lacks residential fittings. Broadband is reported as slow and there is only one bathroom indicated in data; services and utility connections should be confirmed. The surrounding area is classified as affluent communities but local area deprivation metrics are mixed, so prospective buyers should assess local service provision and running costs.

This opportunity suits developers or owner‑occupiers seeking a large private plot to create a bespoke rural home, or investors targeting conversion and redevelopment value. The combination of formal prior approval, huge grounds and countryside seclusion offers significant potential, but expect refurbishment, building works and infrastructure investment before occupation.

Property Details

Image Descriptions

Textual Property Features

Target Audience

AI Tags

Detected Visual Features

Nearby Schools

Nearest Bars And Restaurants

,,,,}

Nearest General Shops

,,}

Nearest Grocery shops

,,}

Nearest Supermarkets

,,}

Nearest Religious buildings

,,}

Nearest Medical buildings

,,,}

Nearest Airports

,,}

Nearest Leisure Facilities

,,,,}

Nearest Tourist attractions

,,}

Nearest Train stations

,,,,}

Nearest Bus stations and stops

,,,,}

Nearest Hotels

,,}

Tags

Local Market Stats

Similar Properties

Meta

High Res Images

Compatible Images

Low res Images

Thumbnails

Raw Images