1.6 acre site with consent for three single‑storey homes, close to Shenfield and A12 links.
- Approximately 1.6 acres (STLS) development plot
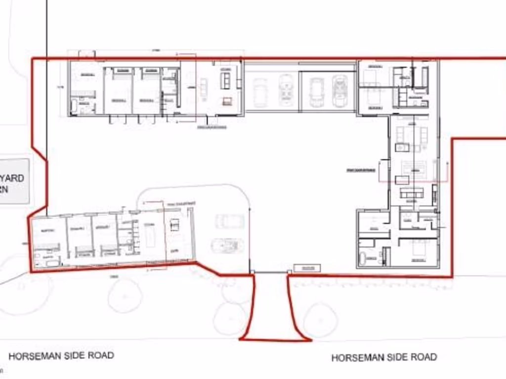
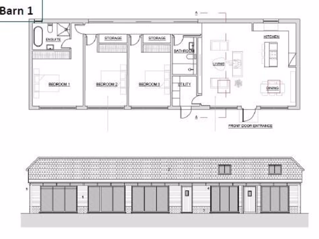
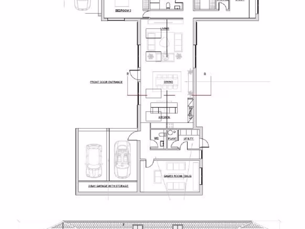
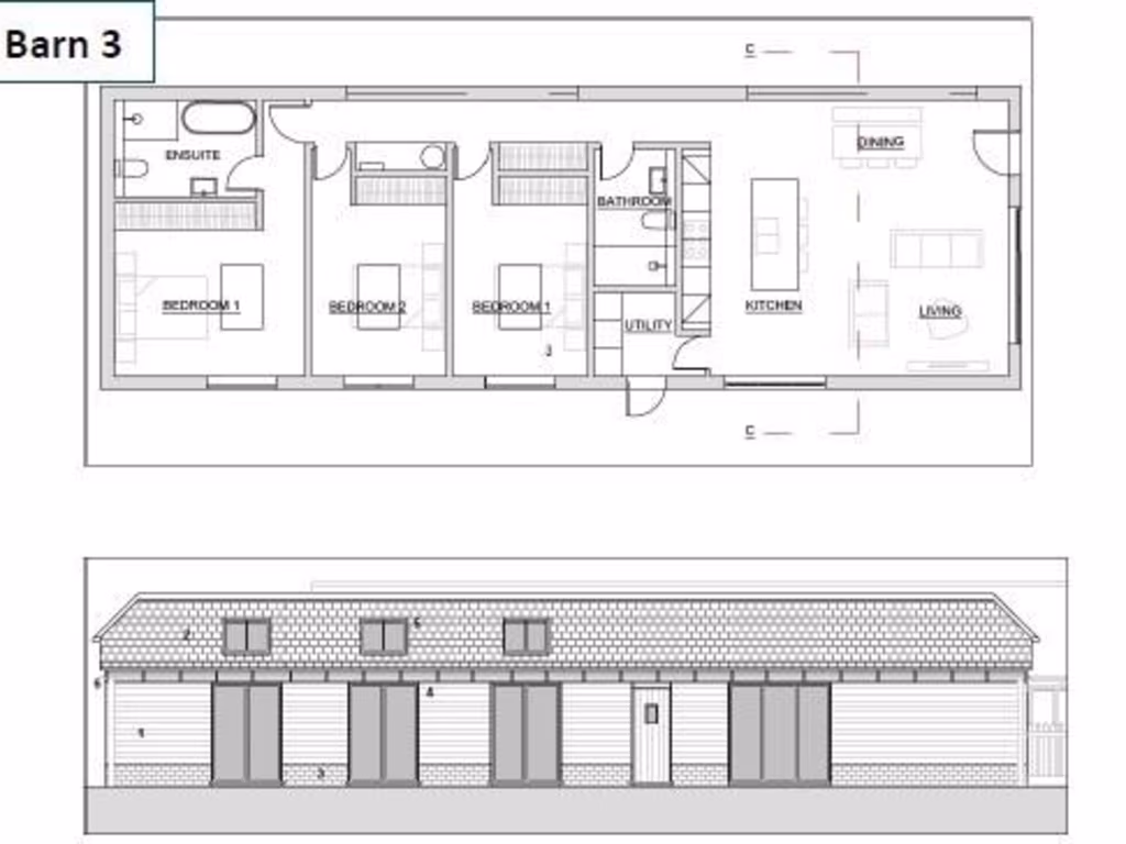
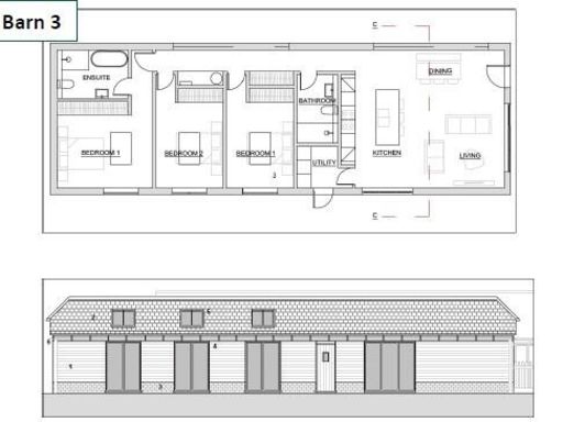
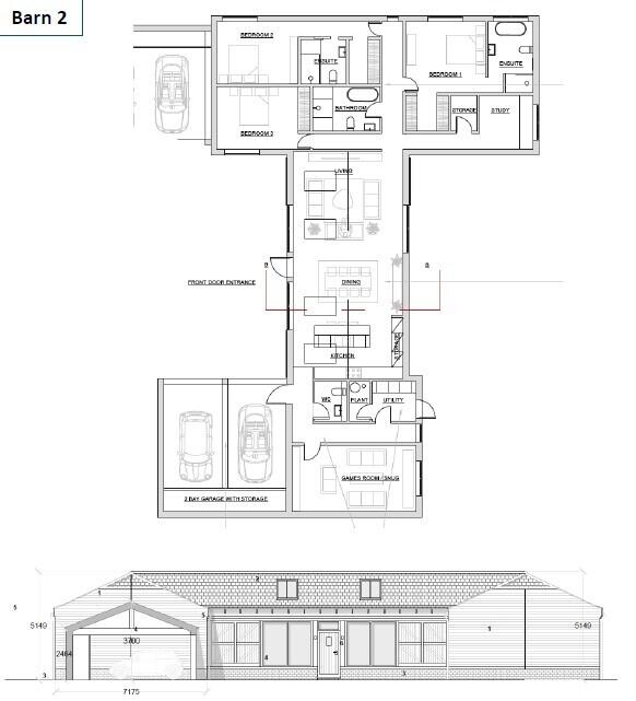
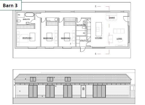
- Planning consent for three single‑storey, 3‑bed homes (ref 24/00250/FUL)
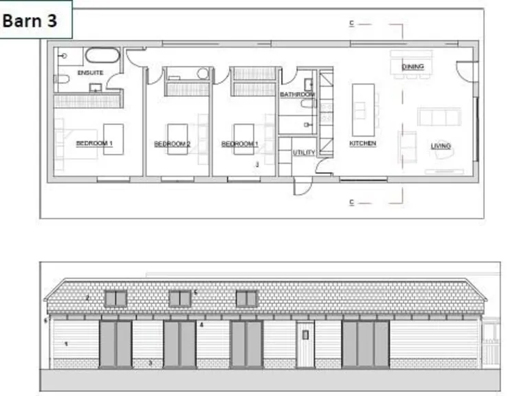
- Includes conversion of existing outbuilding plus two new dwellings
- Can be bought alongside a Grade II listed barn conversion
- Listed status likely adds statutory constraints and extra costs
- No flood risk; mobile signal excellent, broadband average
- Freehold tenure; guide price £850,000, sold unconditional
- Crime levels recorded above average for the area
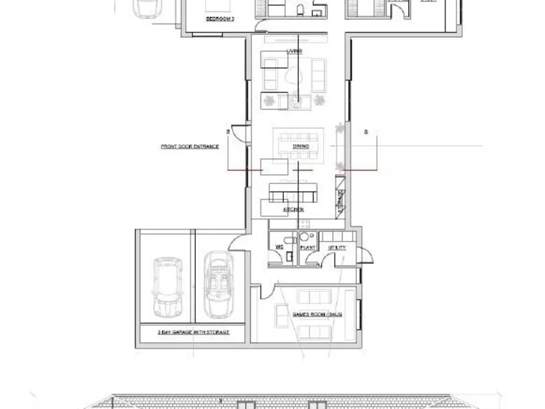
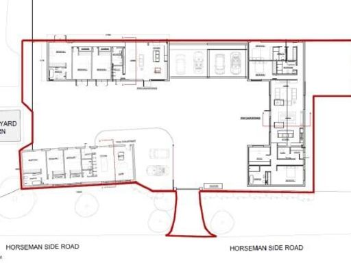
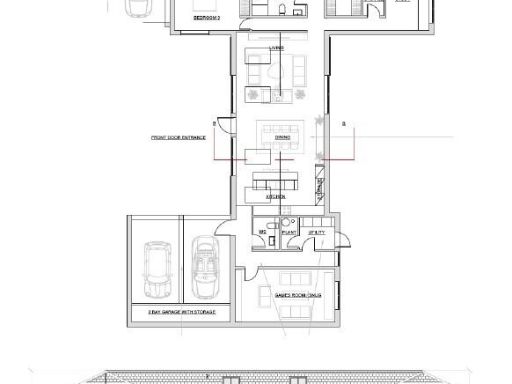
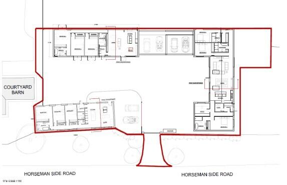
A rare development plot of approximately 1.6 acres (STLS) with planning consent to deliver three single‑storey, three‑bedroom homes (Planning ref: 24/00250/FUL). The consent covers conversion of an existing outbuilding to a 3‑bed dwelling, demolition of two pole barns and a stable block, and construction of two further single‑storey dwellings with associated access, parking and landscaping.
The site sits in attractive countryside north‑west of Brentwood within convenient commuting distance of Shenfield (Elizabeth Line) and the A12/M25. Local amenities include parks, golf clubs and a range of state and independent schools. Broadband speeds are average, mobile signal is excellent and flood risk is recorded as none.
Important practical points: the property includes a Grade II listed barn conversion which may cause constraints and additional statutory requirements for any works. Crime levels are recorded above average for the area. The site is offered freehold with a guide price of £850,000 and is sold unconditional; full planning documents are available via Brentwood Council (ref 24/00250/FUL).
This plot will suit a developer or private buyer seeking a countryside infill project with fast commuter access. Buyers should allow for listed‑building considerations, demolition works and enabling costs when assessing viability.
Plot for sale in Coxtie Green Road, Pilgrims Hatch, Brentwood, Essex, CM14 — £1,000,000 • 1 bed • 1 bath • 6634 ft²
Plot for sale in Tysea Hill, Stapleford Abbotts, RM4 — £350,000 • 1 bed • 1 bath • 1400 ft²
4 bedroom detached house for sale in Horseman Side, Brentwood, CM14 — £1,090,000 • 4 bed • 3 bath • 2878 ft²
Land for sale in School Lane, Great Leighs, CM3 — £450,000 • 1 bed • 1 bath
3 bedroom bungalow for sale in Cavendish Road, Hockley, SS5 — £650,000 • 3 bed • 1 bath • 2763 ft²
Land for sale in Ongar Road, Pilgrims Hatch, Brentwood, CM15 9SA, CM15 — £1,500,000 • 1 bed • 1 bath






























































