EN7 5HX - Plot for sale in Old Park Ride, Goffs Oak, Waltham Cross, E…

View on Property Piper

Plot for sale in Old Park Ride, Goffs Oak, Waltham Cross, EN7

Summary - Old Park Ride, Goffs Oak, Waltham Cross EN7 5HX

1 bed 1 bath Plot

**Standout Features:**
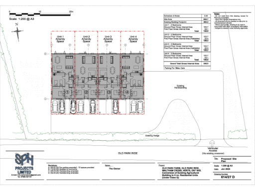
- Planning permission for four 3-bedroom barn conversion houses
- Gated, secure rural setting near Goffs Oak
- Scenic countryside views
- Large plot size of 5,000 square feet
- Excellent mobile signal and fast broadband
- Potential gross development value exceeding £3M

Discover a unique investment opportunity with this expansive 5,000 sq. ft. detached barn located in a tranquil, gated rural area just moments from Goffs Oak. Currently holding planning permission for the conversion into four stylish 3-bedroom terrace houses, this property promises significant potential with an estimated gross development value of over £3M. The modern agricultural-style building with its impressive high ceilings offers a fantastic canvas for restoration or development, set against picturesque countryside views that provide both privacy and allure.

While this property showcases tremendous promise, interested buyers should note that it requires a conversion, and although structurally sound, further assessments may be needed to determine specific renovation needs. This plot represents a rare chance to create desirable family homes in a comfortable, self-sufficient neighborhood, making it ideal for investors seeking renovation projects or families dreaming of a rural lifestyle. Don’t miss this exclusive offering—properties with such potential are a rarity on the market!

Property Details

Brochure Descriptions

Image Descriptions

Floorplan Description

Textual Property Features

Detected Visual Features

Nearby Schools

Nearest Bars And Restaurants

,,,,}

Nearest General Shops

,,}

Nearest Grocery shops

,,}

Nearest Supermarkets

,,}

Nearest Religious buildings

,,}

Nearest Medical buildings

,,,}

Nearest Airports

,,}

Nearest Leisure Facilities

,,,,}

Nearest Tourist attractions

,,}

Nearest Train stations

,,,,}

Nearest Bus stations and stops

,,,,}

Nearest Hotels

,,}

Tags

Local Market Stats

Meta

High Res Images

Compatible Images

Low res Images

Thumbnails

Raw Images

High Res Floorplan Images

Compatible Floorplan Images

Low res Floorplan Images

FloorplanImages Thumbnail

Raw Floorplan Images