Freehold rural plot with consent near Hay-on-Wye, ideal for developer buyers.
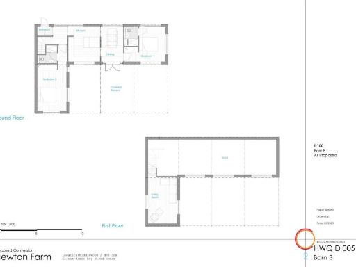
Freehold development plot with Class Q consent (Herefordshire 231152)
Large plot with panoramic Wye Valley and Merbach Hill views
Modern portal-frame barns ready for residential conversion
Garage and parking included on site
Services nearby: mains electricity, water, telephone; no mains gas
Sewerage by package treatment plant; buyer to confirm connections
Overage payable to Herefordshire Council; vendor will contribute
Remote location: no mobile signal and slow broadband
A rare freehold development plot in the Golden Valley with Class Q consent to convert modern portal-frame barns into a single residential dwelling. The site sits within a large parcel offering wide Wye Valley and Merbach Hill views, approximately five miles from Hay-on-Wye and close to essential village amenities and outstanding secondary schooling.
Planning permission under Herefordshire County Council (application no. 231152) provides a clear route to convert the barns subject to any reserved matters. The sale includes a garage and parking; nearby mains electricity, water and telephone are available, and sewerage will be by package treatment plant. The vendor is prepared to contribute towards the overage payment due to Herefordshire Council; full overage details available on request.
This opportunity will suit developers or investors seeking a rural conversion with immediate planning headroom. Buyers should note practical constraints: no mobile signal, slow broadband speeds, no mains gas and reliance on a package treatment plant for sewage. Access points shown on plans may vary and it is the buyer’s responsibility to confirm service availability and any reserved matters before commencement.
Land for sale in Middlewood, Dorstone, Hereford, HR3 — £100,000 • 1 bed • 1 bath
Land for sale in Middlewood, Dorstone, Hereford, HR3 — £300,000 • 1 bed • 1 bath
Barn conversion for sale in Middlewood, Dorstone, Hereford, HR3 — £100,000 • 1 bed • 1 bath
Land for sale in Hereford, Herefordshire, County, HR3 — £470,000 • 1 bed • 1 bath • 6835 ft²
Barn for sale in Olchon House Farm, Longtown, HR2 — £425,000 • 8 bed • 4 bath
4 bedroom barn conversion for sale in Brobury, Hereford tucked away but not isolated, HR3 — £825,000 • 4 bed • 3 bath • 2622 ft²






















