Consent for two four-bedroom homes on circa two acres with spectacular mountain views.
Planning granted for two detached four-bed homes (ref P251501/PA4)
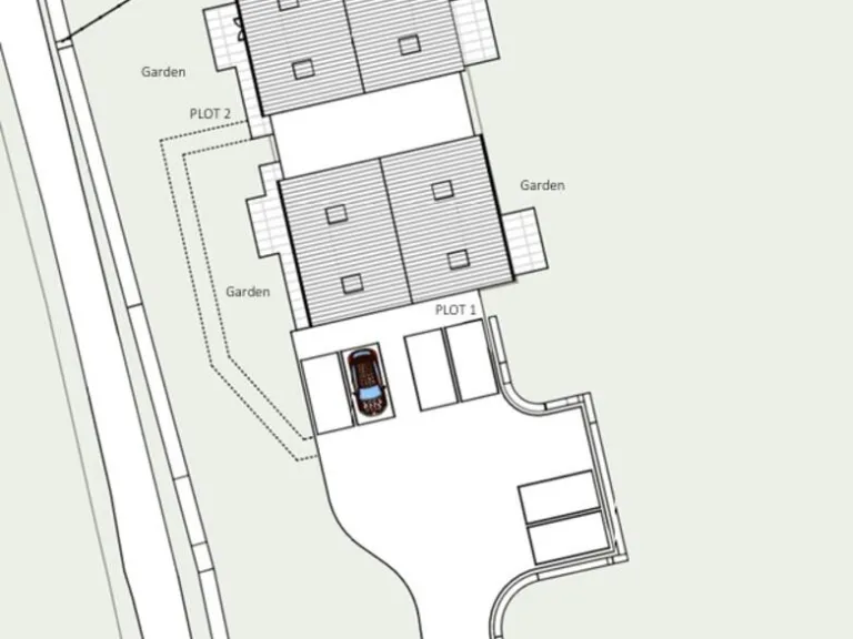
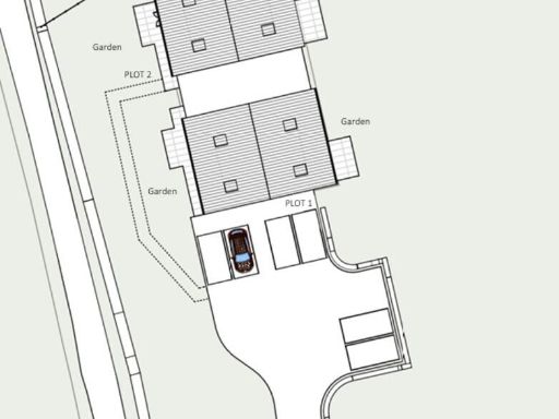
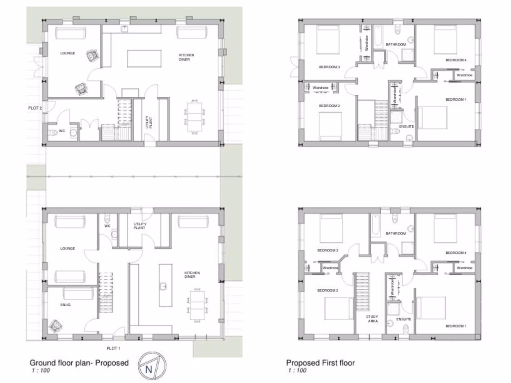
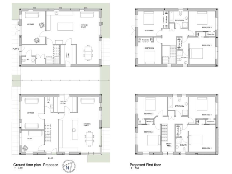
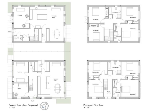
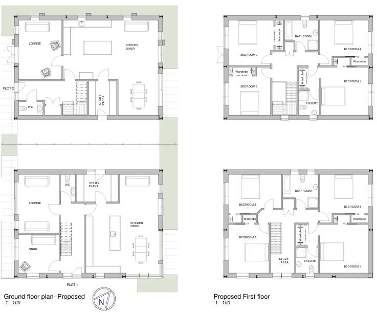
A substantial five-bay steel-frame barn in the Olchon Valley with planning permission (Herefordshire Council ref P251501/PA4, granted 7 July 2025) to create two detached four-bedroom homes. Each finished home would exceed 200 sqm over two storeys, offer two reception rooms, an open-plan dining kitchen, master en-suite, and a utility/plant room — set within circa two acres with outstanding Black Mountains views.
This is a rural opportunity for families or small-scale developers who want a countryside conversion with significant outdoor space. The site is tucked away near Longtown village amenities (primary school, shop, pub) yet within easy reach of Hereford, Abergavenny and Hay-on-Wye. Concrete hardstanding provides six off-street parking bays and the grounds slope down to the Olchon Brook, offering attractive natural surroundings.
Practical considerations: there is no mains gas or public drainage, so a septic tank/domestic treatment plant and an alternative heating solution (likely air source heat pump or LPG) are required. Broadband speeds are very slow and mobile signal is average — factors to consider if remote working is important. Planning is in place, but the barn is unconverted and will need full conversion works and services connections to complete the consented scheme.
Offered freehold at £425,000, this plot delivers conversion consent, roomy finished homes (eight bedrooms in total across the two dwellings), and a large, private plot. Buyers should budget for construction, drainage and services installation, and longer lead times typical of rural conversions.
Barn for sale in Longtown, HR2 — £175,000 • 4 bed • 2 bath • 1938 ft²
Plot for sale in Little Pen-Y-Lan Barns, Pontrilas, Hereford, Herefordshire, HR2 — £450,000 • 1 bed • 1 bath • 5800 ft²
Plot for sale in Kentchurch, Hereford, Herefordshire, HR2 — £230,000 • 1 bed • 1 bath • 3971 ft²
Plot for sale in Marstow, HR9 — £275,000 • 1 bed • 1 bath
Barn for sale in Longtown, HR2 — £225,000 • 4 bed • 2 bath • 1938 ft²
Plot for sale in Pontrilas, Herefordshire, HR2 — £450,000 • 1 bed • 1 bath • 5800 ft²






























