HA0 4JR - 4 bed spacious family corner in Wembley, HA0 4JR

View on Property Piper

4 bedroom semi-detached house for sale in Hillfield Avenue, Wembley, HA0

Summary - 14 HILLFIELD AVENUE, WEMBLEY HA0 4JR

4 bed 2 bath Semi-Detached

Freehold four-bedroom with large garden and garage in well-connected Wembley..
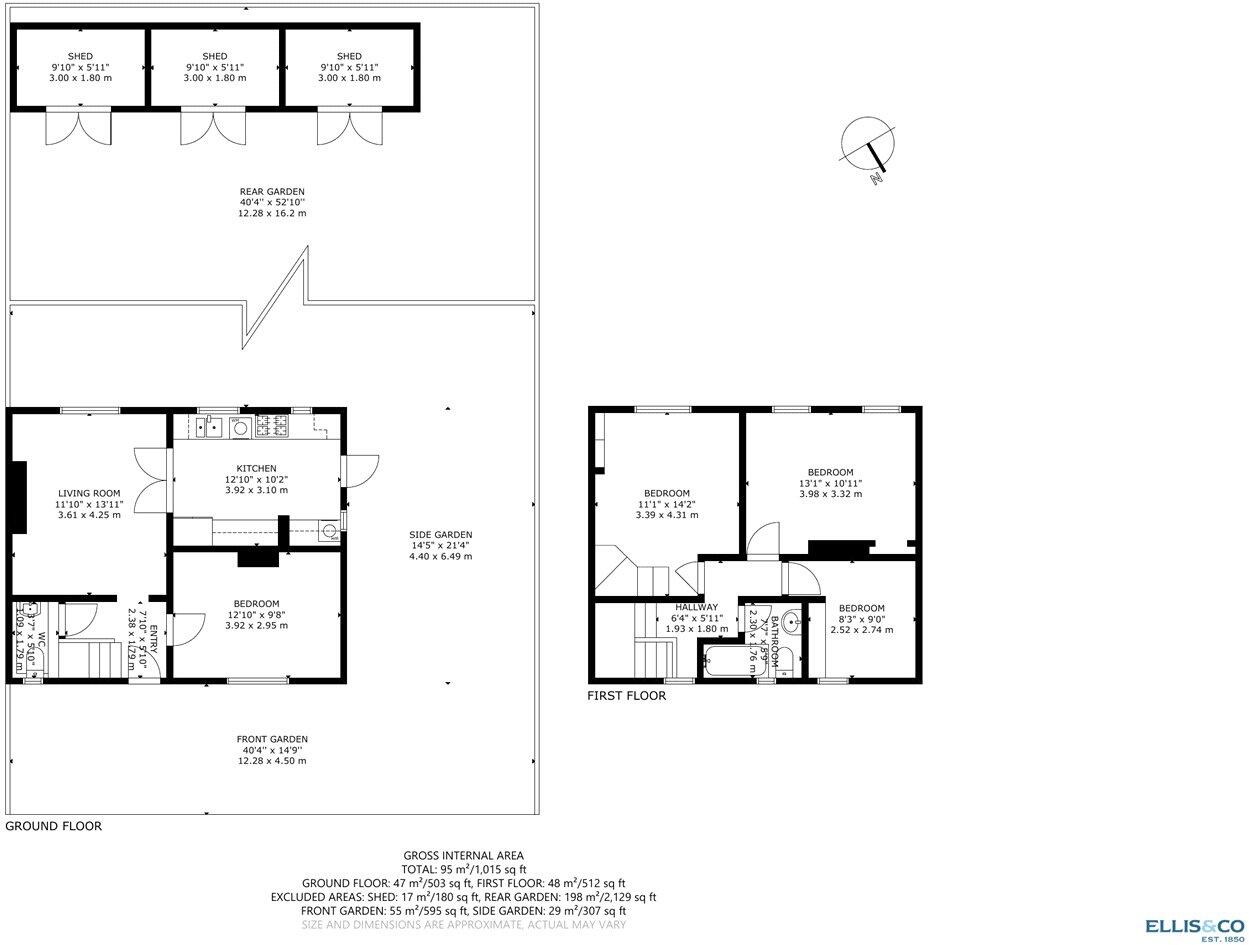
- Four bedrooms in a compact 1,015 sq ft layout
- Large rear garden with side space and corner-plot privacy
- Garage and off-street parking available
- Freehold tenure, mid-20th century construction
- Double glazing installed before 2002 (older units)
- Solid brick walls; likely no cavity insulation
- Two bathrooms plus separate W.C.; single reception room
- Fast broadband, excellent mobile signal, low local crime
This four-bedroom semi-detached corner house on Hillfield Avenue offers practical family living in a well-connected Wembley neighbourhood. At 1,015 sq ft the layout is traditional and straightforward, with a single reception room, two bathrooms and a large rear garden ideal for children and entertaining.

The property benefits from side space, a garage and double glazing (installed before 2002). It sits on a freehold plot constructed in the mid-20th century, with mains gas central heating and fast broadband — useful for home working. Local schools include several 'Good' and two 'Outstanding' secondaries, and public transport links and neighbourhood amenities are close by.

Buyers should note the house is compact for four bedrooms and was built with solid brick walls that likely lack cavity insulation. Double glazing is older and some updating or insulation work may be needed to improve energy efficiency. Council tax is moderate and the area shows low crime and average deprivation.

Overall this is a practical family home in a prime Wembley location with clear potential: the generous garden, corner plot and garage provide room to improve and adapt, while the property's age and construction suggest sensible investment in insulation and modernisation will add value.

Property Details

Image Descriptions

Floorplan Description

Rooms

Textual Property Features

Target Audience

AI Tags

Detected Visual Features

EPC Details

Nearby Schools

Nearest Bars And Restaurants

,,,,}

Nearest General Shops

,,}

Nearest Grocery shops

,,}

Nearest Supermarkets

,,}

Nearest Religious buildings

,,}

Nearest Medical buildings

,,,}

Nearest Airports

,}

Nearest Leisure Facilities

,,,,}

Nearest Tourist attractions

,,}

Nearest Train stations

,,,,}

Nearest Bus stations and stops

,,,,}

Nearest Hotels

,,}

Tags

Local Market Stats

AirBnB Data

Similar Properties

Meta

High Res Images

Compatible Images

Low res Images

Thumbnails

Raw Images

High Res Floorplan Images

Compatible Floorplan Images

Low res Floorplan Images

FloorplanImages Thumbnail

Raw Floorplan Images