Four double bedrooms close to top-rated schools and fast transport links.
Four double bedrooms, one with en suite
Large double reception rooms and spacious entrance hall
Driveway for off-street parking and private garden
Close to North Wembley station and local amenities
Excellent mobile signal and fast broadband
1990s kitchen; general decor needs modernisation
Solid brick walls assumed without insulation; upgrade potential
Area classified as deprived; crime level average
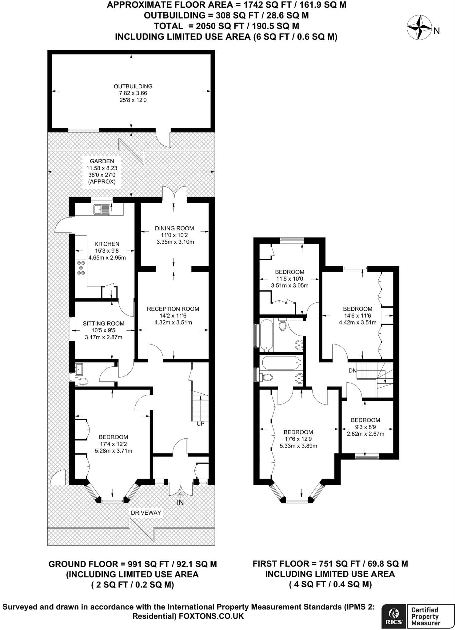
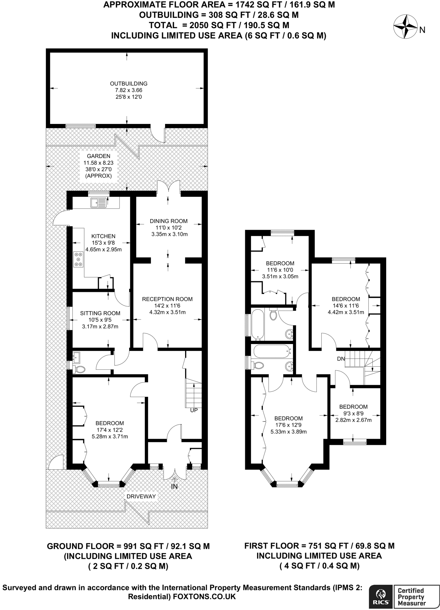
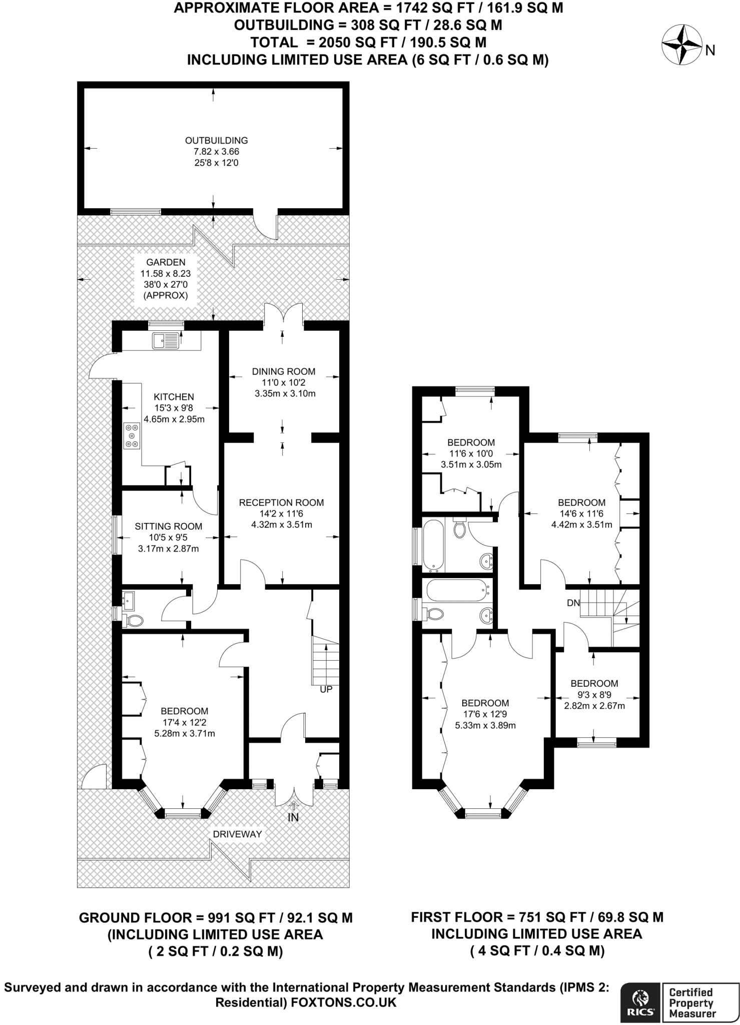
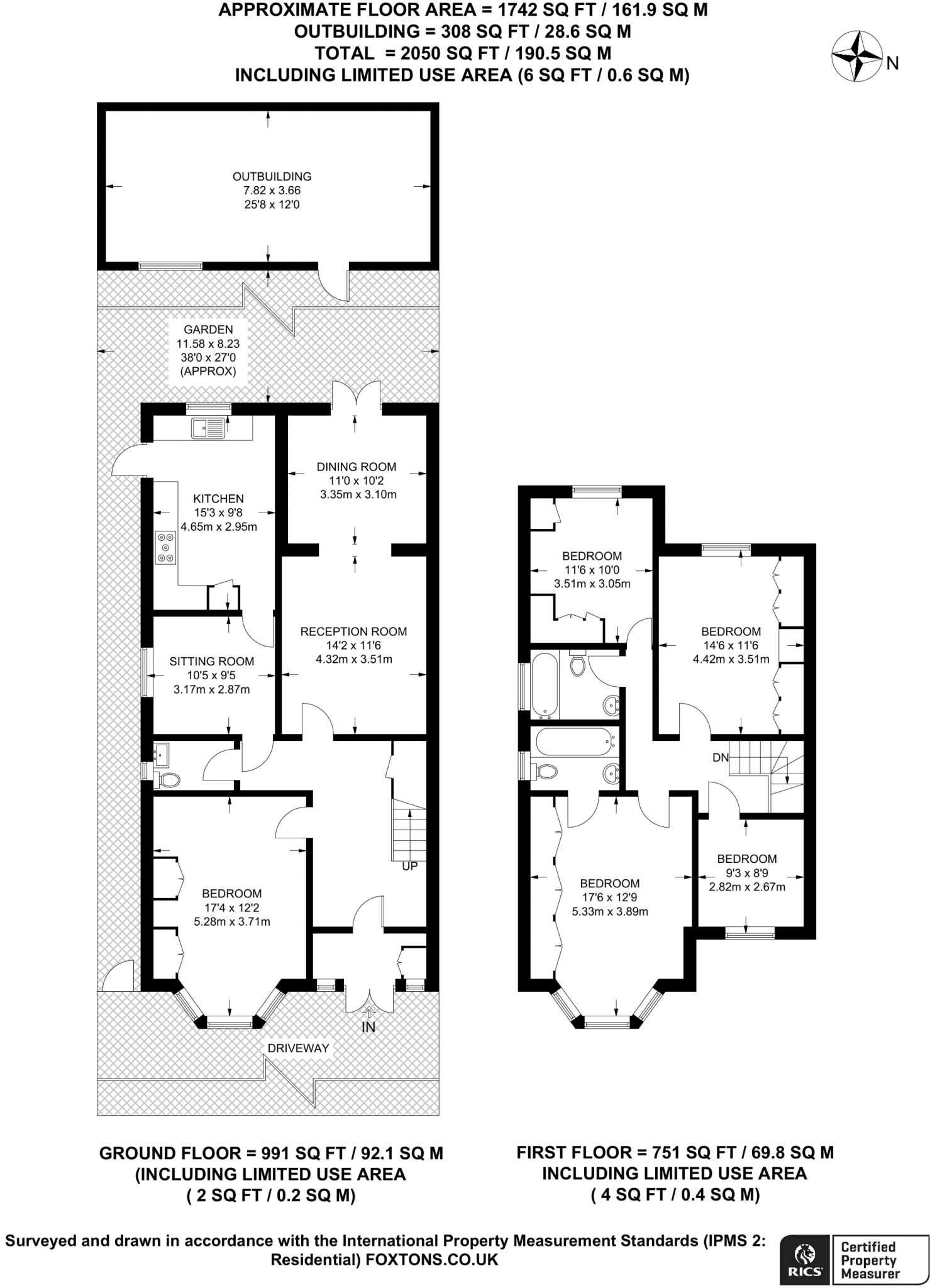
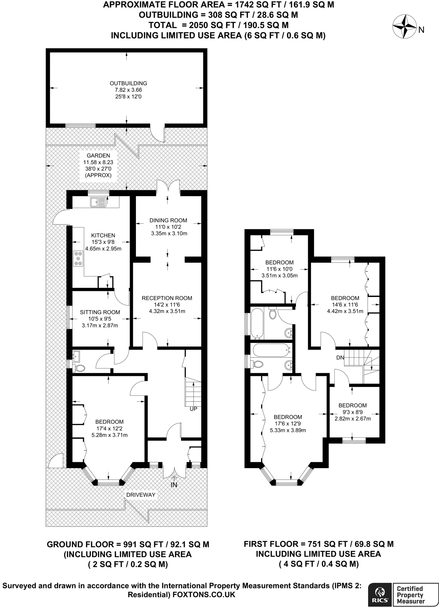
Set across two well-proportioned floors, this early 20th-century semi offers a generous 2,050 sq ft layout suited to a growing household. The property features four double bedrooms (one with en suite), two impressive reception rooms and a large entrance hall that retain period character and provide flexible family living.
Practical benefits include a driveway with off-street parking, private garden with an outbuilding and fast broadband and excellent mobile signal for working from home. North Wembley station is moments away and several highly rated primary and secondary schools are within easy reach—appealing for families prioritising commute and education links.
The house has been well maintained but requires some modernization: the kitchen reflects a 1990s fit-out and reception and bedroom decor is dated. Built with solid brick and no known wall insulation, there may be opportunities to improve energy efficiency. The property is freehold and located in an area with average crime levels and no flood risk.
4 bedroom semi-detached house for sale in The Fairway, North Wembley, Wembley, HA0 — £1,100,000 • 4 bed • 1 bath • 2430 ft²
4 bedroom detached house for sale in Gabrielle Close, Wembley Park, Wembley, HA9 — £675,000 • 4 bed • 2 bath • 1467 ft²
4 bedroom semi-detached house for sale in Chestnut Grove, Wembley, HA0 — £650,000 • 4 bed • 1 bath • 1062 ft²
4 bedroom semi-detached house for sale in Kingsway, Wembley, HA9 — £850,000 • 4 bed • 2 bath • 2286 ft²
5 bedroom semi-detached house for sale in Park View, Wembley, HA9 — £951,000 • 5 bed • 3 bath • 1431 ft²
4 bedroom semi-detached house for sale in Wembley, HA9 — £750,000 • 4 bed • 2 bath






























































































































































































































































































































































































































































































































