Approved plans for a sizable family home in Chinnor’s quiet, well-connected neighbourhood.
- Planning permission granted for a three-bedroom detached dwelling (P24/S0557/FUL)
- Approved internal size c.1800 sq ft
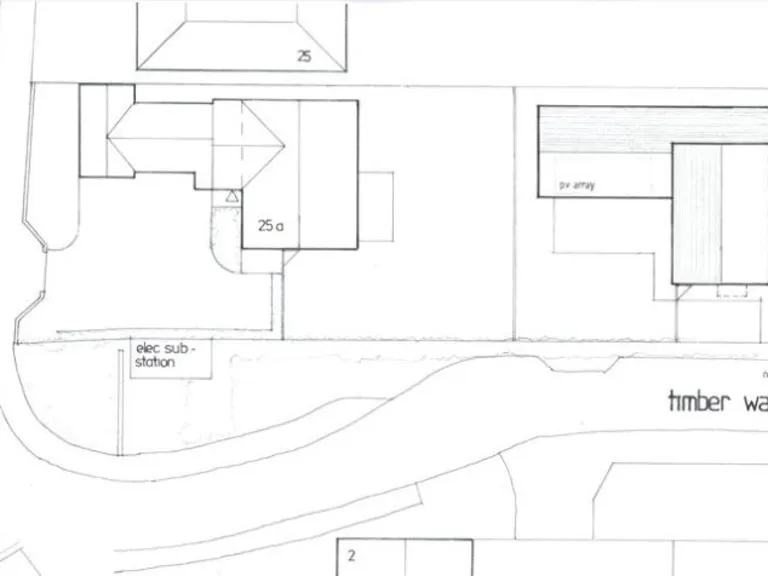
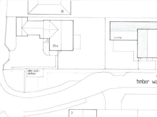
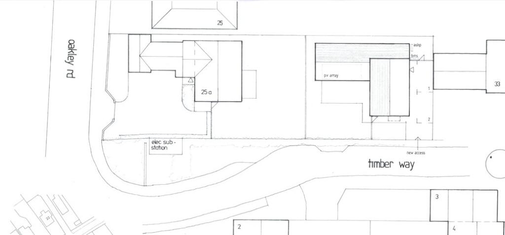
- Plot width approx 24m x depth approx 19m (c.456–524 sqm reported)
- Freehold with road access from quiet cul-de-sac, Timber Way
- Large private garden potential with garage parking provision
- No flood risk; very affluent area with low crime
- Excellent mobile signal and fast broadband
- Buyer responsible for all construction and connection costs; council tax unknown
A rare central-village plot in Chinnor with planning permission for a substantial three-bedroom detached house. Permission (P24/S0557/FUL) covers an 1800 sq ft home; the site sits on an unusually large residential plot with road access from quiet Timber Way and scope for a private garden and driveway with garage parking.
The setting is peaceful and affluent — low crime, excellent mobile reception and fast broadband make the site practical for modern family life or a resale investor. The land is relatively flat, fenced and bordered by mature planting; current use includes a children’s play area and the plot enjoys pleasant suburban outlooks and some distant hill views.
Important practical points are straightforward: the plot is freehold and there is no flood risk. Buyers should budget for all build costs (construction, utility connections and finishes) and check any planning conditions attached to P24/S0557/FUL. Council tax for a completed dwelling is not known and will depend on the finished property.
Land for sale in Elizabeth Road, Stokenchurch, HP14 — £375,000 • 1 bed • 1 bath • 1040 ft²
Land for sale in Thame Road, Great Milton, OX44 — £375,000 • 4 bed • 3 bath • 2659 ft²
5 bedroom detached house for sale in Cleavers, Chinnor, Oxfordshire, OX39 — £600,000 • 5 bed • 1 bath • 1367 ft²
Land for sale in Sydenham, OX39 — £499,995 • 4 bed • 3 bath • 2000 ft²
4 bedroom detached house for sale in Lower Icknield Way, Chinnor, Oxfordshire, OX39 — £820,000 • 4 bed • 2 bath • 2605 ft²
5 bedroom detached house for sale in Rumpenny, Chinnor, OX39 — £895,000 • 5 bed • 4 bath • 2000 ft²














