Design and build a large contemporary four-bedroom home in a peaceful Oxfordshire village.
Outline planning permission granted (Ref: P25/S1522/O, SODC)
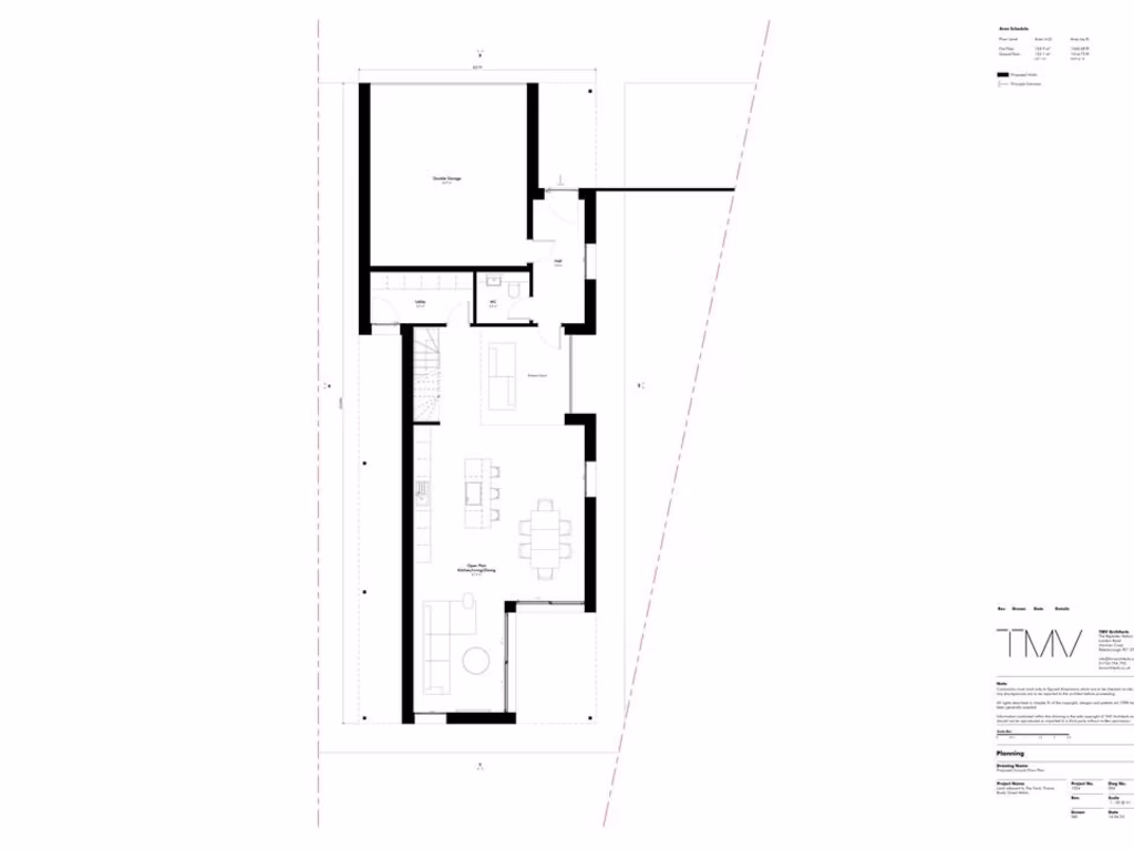
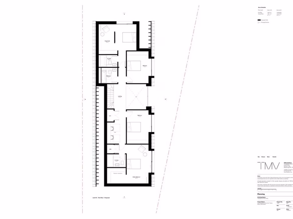
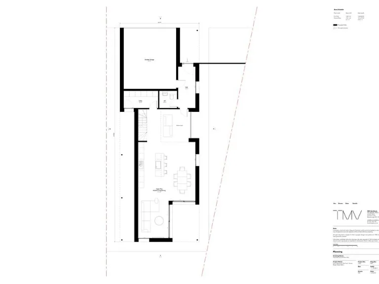
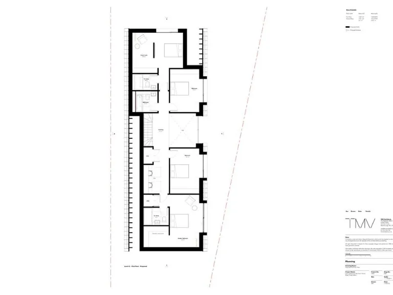
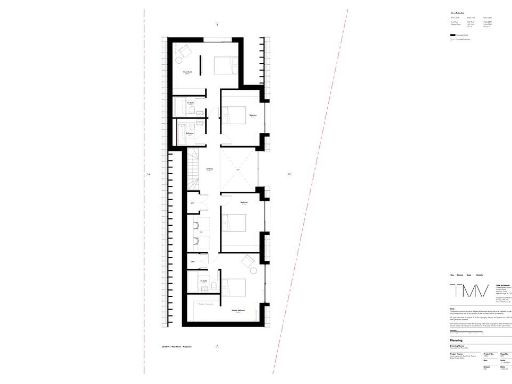
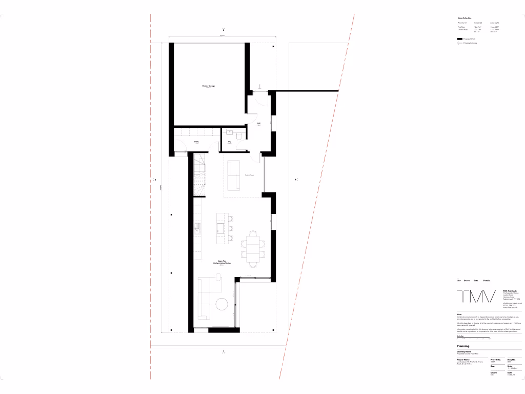
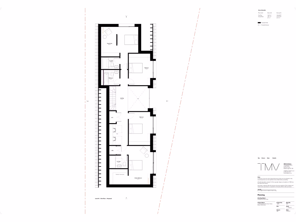
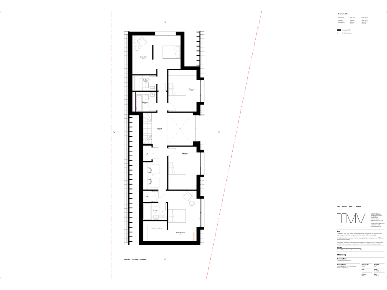
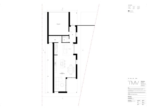
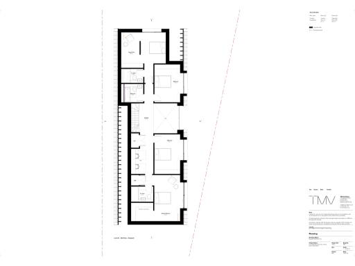
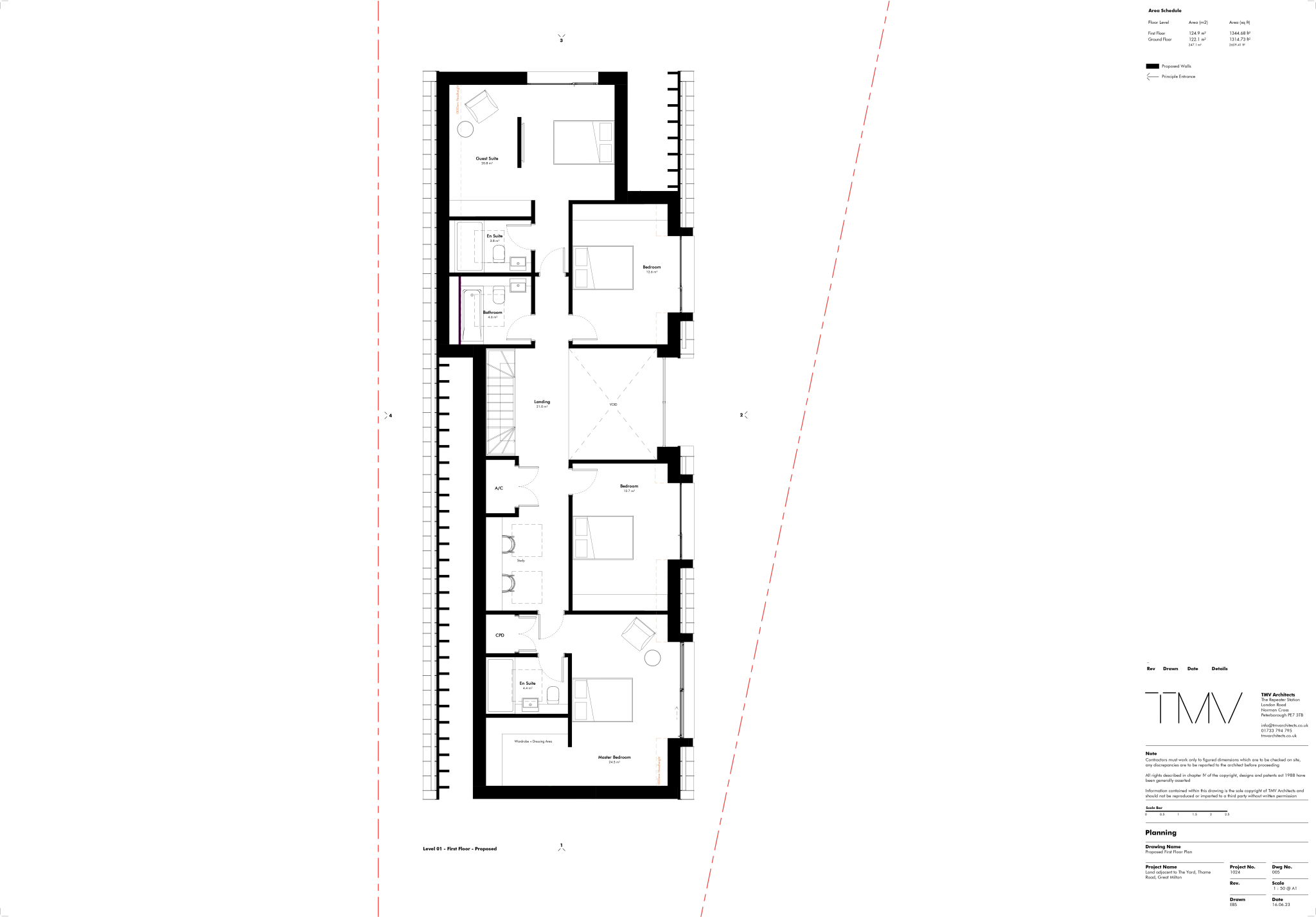
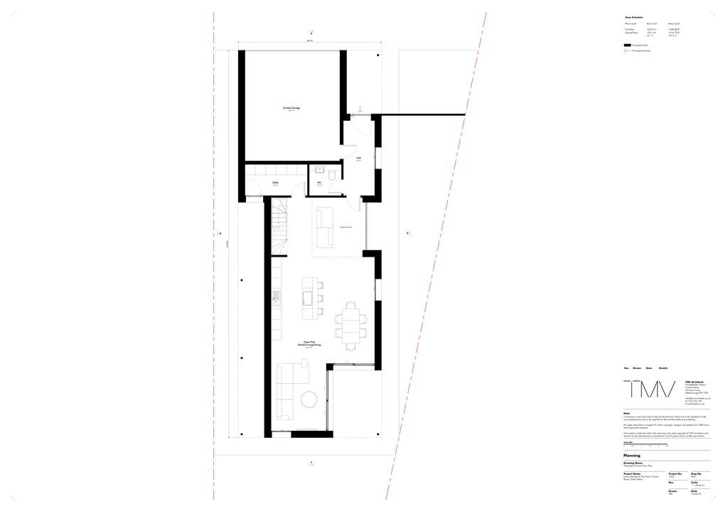
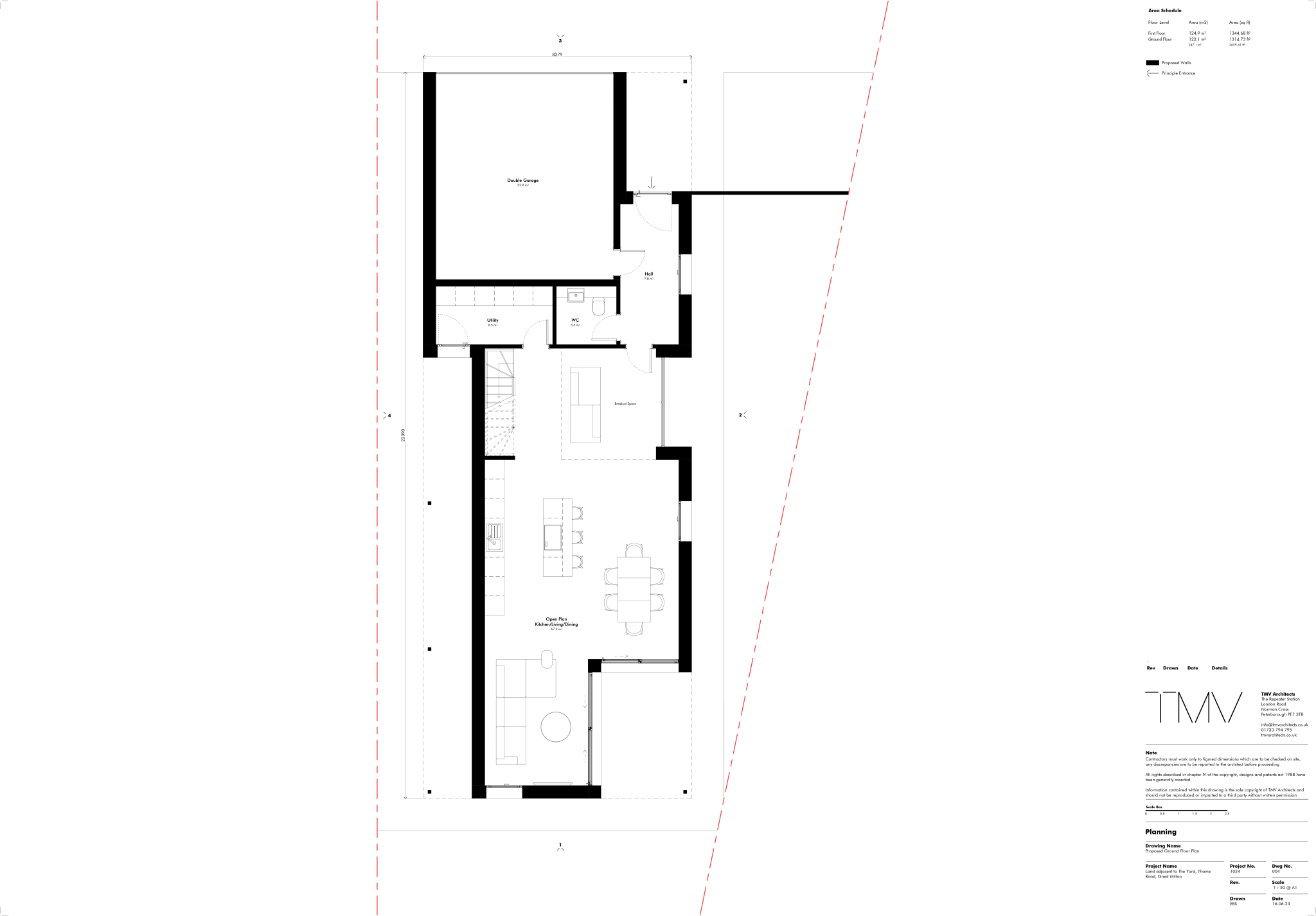
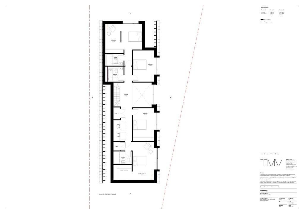
An uncommon self-build opportunity in the sought-after south Oxfordshire village of Great Milton. The 0.15-acre plot has outline planning permission (Ref: P25/S1522/O, SODC) for a contemporary four-bedroom detached home of 247 m² (2,659 sq ft) including a double garage, giving a clear starting point for a bespoke family house.
The setting is peaceful and established, within walking distance of the village primary school and pub, with excellent access to Oxford, the M40 and fast rail links to London. The proposed design shows generous open-plan living, large windows and double-height glazing that would maximise light and village views to the rear.
Practical considerations are straightforward: the plot is freehold, has driveway parking and is assessed as having no flood risk, very low crime and strong mobile and broadband connectivity. The site shape is long and tapered, with a narrower road frontage and a small-to-average garden area relative to the proposed house footprint, which may affect landscaping and external amenity layouts.
Buyers should note this is outline permission rather than full consent — reserved matters and detailed approval will be required before construction. As with any self-build, prospective purchasers should allow for build costs, professional fees and planning conditions when assessing budget and programme. This plot suits a buyer seeking to create a substantial contemporary family home in a well-connected village location.
Land for sale in Burcot, Oxfordshire, OX14 — £400,000 • 4 bed • 3 bath • 3520 ft²
Land for sale in Sydenham, OX39 — £499,995 • 4 bed • 3 bath • 2000 ft²
Land for sale in Gilberts Grove, Old Nursery Lane, Brightwell-cum-sotwell, OX10 — £750,000 • 5 bed • 4 bath • 3800 ft²
Land for sale in Chilswell Lane, Oxford, OX1 — £2,500,000 • 1 bed • 1 bath • 12000 ft²
Land for sale in Elizabeth Road, Stokenchurch, HP14 — £375,000 • 1 bed • 1 bath • 1040 ft²
Land for sale in Oakley Road, Chinnor, Oxfordshire, OX39 — £225,000 • 1 bed • 1 bath • 1800 ft²


















































