Cleared 0.71-acre plot with consent for a 3,982 sq ft barn home, close to Ongar..
Plot of 0.71 acres (STS) with full planning permission granted at appeal
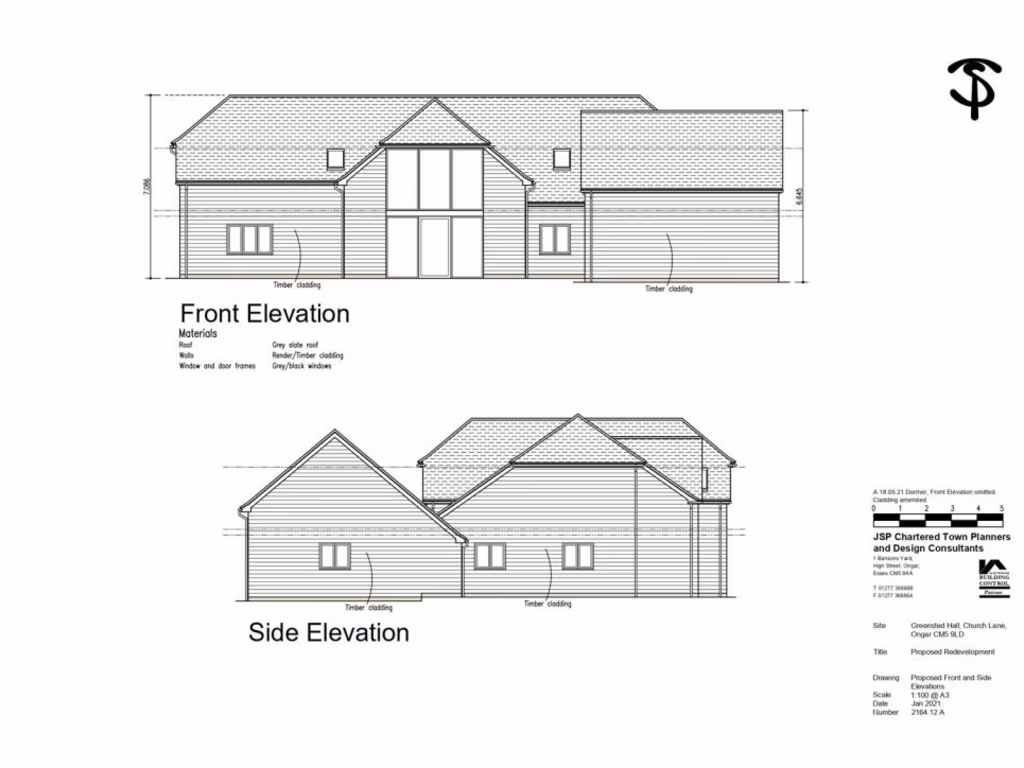
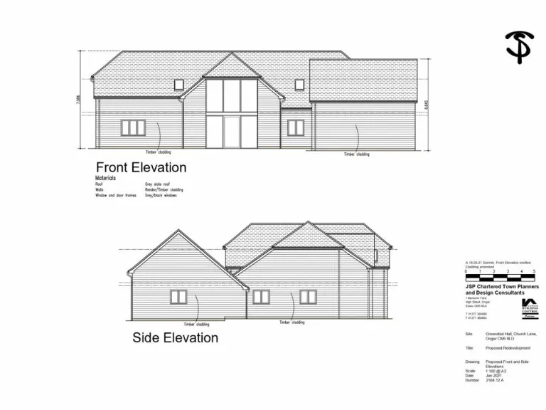
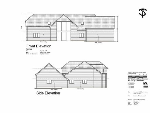
Consent for 3,982 sq ft barn-style house: 4 beds, office, gym, double garage
Site cleared and new vehicular access already formed
About 3 miles to Ongar; c.6 miles to Epping tube (direct Central London links)
Fast broadband and excellent mobile signal; large garden and parking provision
Freehold sale at guide price £690,000; new-build construction costs required
Crime levels above local average; purchasers should factor security considerations
Council tax band unknown; planning was granted at appeal (date 3 Apr 2023)
This 0.71-acre freehold plot in Greensted offers full planning permission for a striking 3,982 sq ft barn-style family home. The site has been cleared and new vehicular access formed, so a purchaser can progress construction without needing initial demolition or access works.
The approved design provides a substantial four-bedroom layout with office, gym and double garage, set within open fields and gardens of nearby Greensted Hall. The village setting is peaceful and private while remaining convenient: Ongar is about 3 miles away and Epping tube approximately 6 miles, providing direct links to Central London. Local state schools are rated Good, and select grammar and independent schools are within reasonable distance.
Practical strengths include fast broadband, excellent mobile signal and a generous plot suitable for extensive landscaping and outdoor amenities. Buyers should factor in the full costs and timeline of a new build — the consent was granted at appeal on 3 April 2023 — and building works will be required to realise the permission. Crime levels are recorded as above average for the area, and council tax banding is not yet known.
This opportunity suits a family or buyer seeking a bespoke country home with modern barn aesthetics and substantial internal space. The cleared site and established consent reduce early-stage risk, but budget and programme allowances for construction and landscaping will be essential.
Land for sale in Horseman Side, Brentwood, CM14 — £850,000 • 1 bed • 1 bath
Land for sale in Dunmow Road, Great Easton, CM6 — £250,000 • 1 bed • 1 bath • 7841 ft²
Land for sale in Mope Lane, Wickham Bishops, Witham, CM8 — £1,200,000 • 1 bed • 1 bath
Farm land for sale in Ongar, CM5 — £295,000 • 1 bed • 1 bath
Land for sale in Church End, Broxted, CM6 — £300,000 • 1 bed • 1 bath • 17424 ft²
Plot for sale in Chignal Smealey, Chelmsford CM1 — £280,000 • 1 bed • 1 bath • 581 ft²














































































