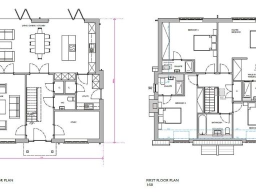
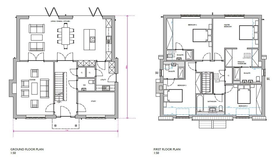
Full planning permission for a 4-bed detached house (ref: UTT/24/0889/FUL)
0.18-acre plot with mature boundary planting and countryside views
Proposed house size 2,175 sq ft; two off-street parking spaces
Access to be created from side of existing driveway; site prep required
Current structures: greenhouse and shed on plot to be removed
Fast broadband available but mobile signal reported as none
Within 2.5 miles of Great Dunmow; within 10 miles of M11 and Stansted
Freehold offered at guide price £250,000, sold unconditional
An attractive 0.18-acre plot adjoining The Old Post Office with full planning permission (ref: UTT/24/0889/FUL) for a single detached four-bedroom family home of 2,175 sq ft. The site sits in a quiet hamlet setting with mature boundary planting and uninterrupted countryside views to front and rear, offering a peaceful rural lifestyle while remaining within easy reach of Great Dunmow (2.5 miles), the M11 and Stansted Airport (within 10 miles).
The consented scheme provides two off-street parking spaces and a private garden; access will be formed from the side of the existing driveway. The land is currently cleared garden with a greenhouse and shed; buyers should allow for site preparation, drainage and utility connections. Mobile signal is reported as none, though fast broadband is available—suitable for buyers comfortable with limited mobile reception.
This plot is offered freehold at a guide price of £250,000 on an unconditional basis. It will suit a family looking to commission a bespoke rural home, or an investor/developer wanting a straightforward build-to-sell or build-to-let opportunity in an affluent, low-crime area with good local schools and amenities nearby.
Buyers should note site-specific matters: creation of a new access, removal of existing outbuildings, and the need to confirm service connections and any further planning conditions prior to build. No flood risk is recorded, and the location benefits from established neighbouring residential properties on both sides.



















































