Freehold 0.37-acre plot with appeal-approved consent for a four-bedroom home..
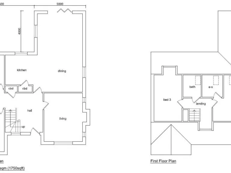
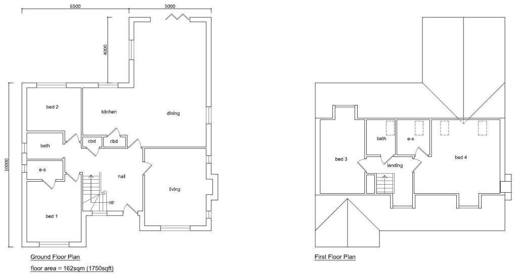
Planning consent granted at appeal for a 4-bed, 1,750 sq ft home
Freehold plot approximately 0.37 acres (STLS)
Quiet rural hamlet setting with established hedges and trees
Close to Stansted (3 miles); A120 and M11 within short drive
New access to be created; car parking and garden included
Small drainage ditch at road boundary requires consideration
Potential constraints from adjacent Grade II Listed cottage
Services connections and planning conditions to be verified
An appealing freehold development parcel of about 0.37 acres (STLS) on Church End Road, Broxted, with detailed planning consent granted at appeal in June 2025 (UTT/24/0323/FUL; APP/C1570/W/24/3356475) for a single four-bedroom dwelling of approximately 1,750 sq ft plus car port and amenity space. The site sits in a quiet, rural hamlet setting with established hedging and trees, offering privacy and countryside views while remaining highly accessible to Stansted (3 miles), the A120 and M11.
This plot is a straightforward opportunity for a developer or self-builder who wants to deliver a single family home with off‑street parking and garden. The parcel is roughly rectangular, bounded by existing properties, with fencing to all boundaries and a small drainage ditch between the site and the road. A new access point will be established as part of the approved development. The land is sold freehold with a guide price of £300,000.
Practical considerations are clear: planning was secured at appeal (check appeal conditions for pre-commencement requirements), and the parcel benefits from low flood risk and fast broadband. However, there are matters to resolve before build: confirm connections for mains services, verify any restrictions related to the neighbouring Grade II Listed Thatch Cottage and local conservation requirements, and allow for the drainage ditch and tree/hedge retention shown on site. Viewings are by appointment only; purchasers should review the full planning consent and site survey prior to exchange.
Land for sale in Church End, CM6 — £1,000,000 • 1 bed • 1 bath • 1532 ft²
Land for sale in Dunmow Road, Great Easton, CM6 — £250,000 • 1 bed • 1 bath • 7841 ft²
Plot for sale in Great Hallingbury, Bishop's Stortford, CM22 — £1,000,000 • 1 bed • 1 bath • 2218 ft²
Plot for sale in Church Lane, Debden, Saffron Walden, CB11 — £395,000 • 5 bed • 3 bath • 3800 ft²
Land for sale in North Hall Road, Ugley, Bishop's Stortford, Essex, CM22 — £250,000 • 1 bed • 1 bath • 1789 ft²
Land for sale in Chapel End, Broxted, CM6 — £300,000 • 1 bed • 1 bath






































