**Standout Features:**
- Sizeable plot with planning permission for a detached four-bedroom home.
- Stunning sea views and picturesque rural outlook.
- Mains drainage connection and existing service ducts in place.
- Located in a charming hamlet with proximity to St Just and Botallack.
- Chain-free, freehold property with exclusive development potential.
**Summary:**
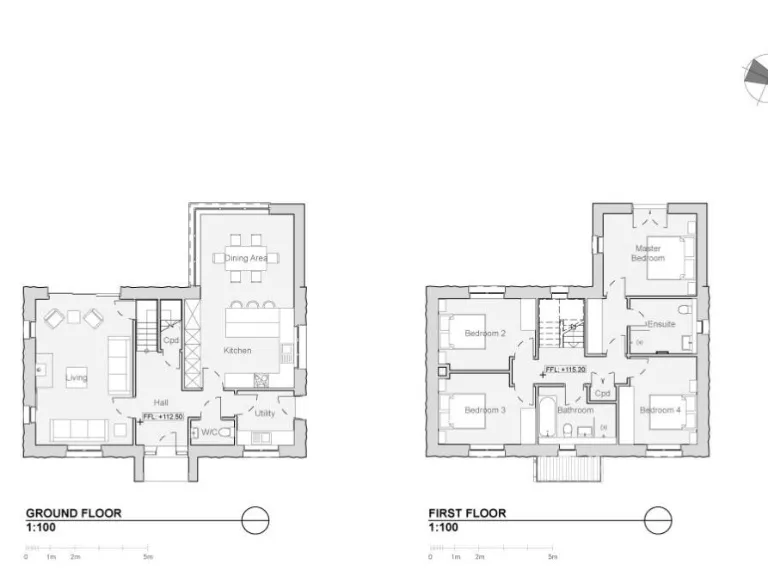
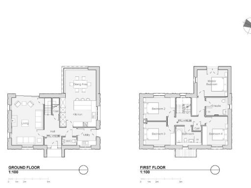
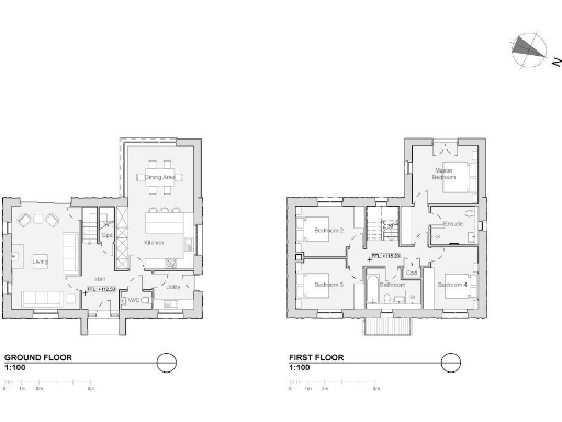
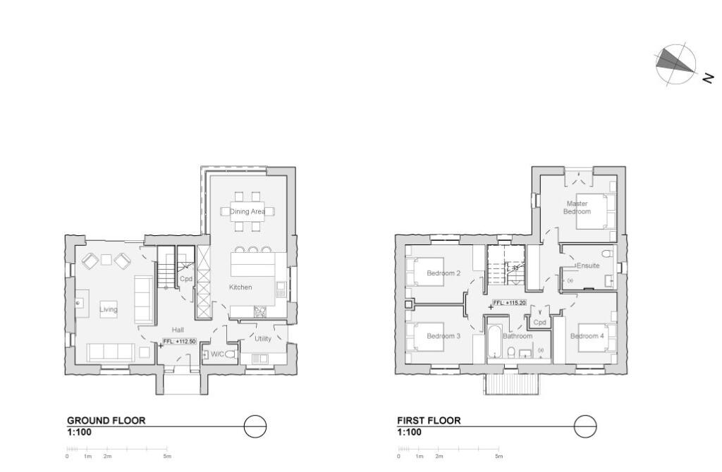
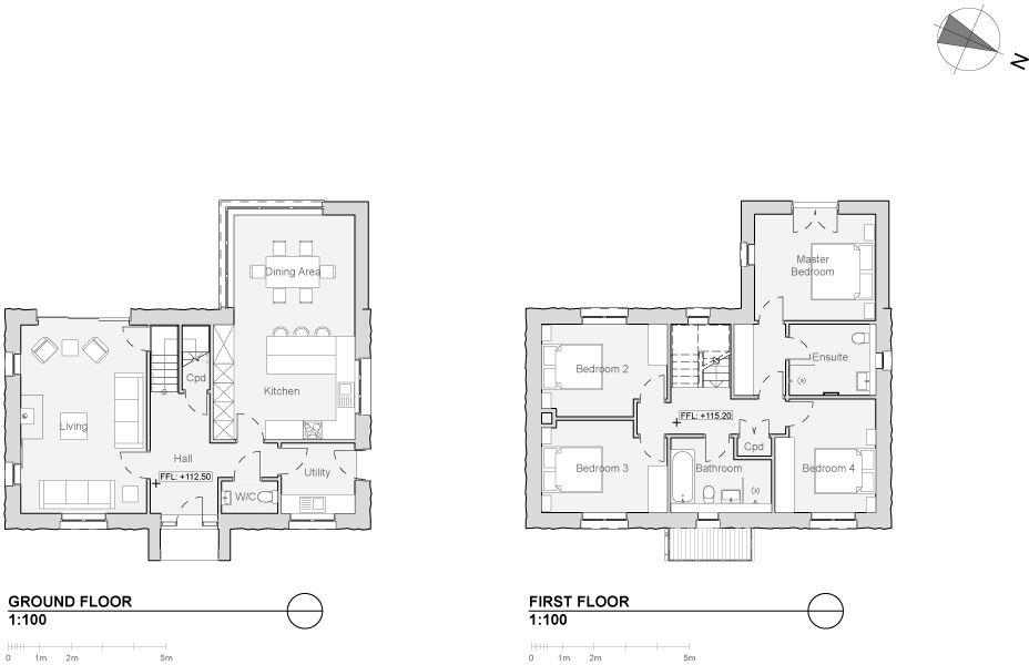
Embrace the opportunity to create your dream home on this expansive plot in Truthwall, West Cornwall, where planning permission is already granted for a four-bedroom detached residence. Imagine waking up to breathtaking sea vistas and enjoying the serene beauty of the surrounding countryside. This select development of five plots offers the perfect canvas for your architectural vision, complete with private parking, spacious gardens, and a thoughtfully designed home layout featuring a large kitchen/diner, living room, two bathrooms, and more.
Nestled in a tranquil hamlet, you’ll have direct access to coastal paths and moorland walks, embodying the character of this historically rich area, made famous by the Poldark series. With St Just’s thriving community just minutes away, you’ll find essential amenities including well-rated schools, grocery stores, and local pubs at your fingertips. Whether you’re a family, investor, or first-time buyer, this is a rare chance for creativity and peaceful living. Don’t miss out on securing this piece of Cornish paradise; inquire today for detailed plans and site visits!
Plot for sale in Plot 4 - Truthwall TR19 — £350,000 • 4 bed • 2 bath
Plot for sale in Plot 5 - Truthwall TR19 — £300,000 • 4 bed • 2 bath • 1240 ft²
Plot for sale in Plot 2 - Truthwall TR19 — £300,000 • 4 bed • 2 bath
Plot for sale in Plot 3 - Truthwall TR19 — £325,000 • 4 bed • 2 bath
Plot for sale in Building Plot at Levant, Trewellard, St Just, TR19 7SR, TR19 — £150,000 • 3 bed • 2 bath
Plot for sale in Botallack, St. Just, TR19 — £175,000 • 1 bed • 1 bath • 321 ft²


































