**Standout Features:**
- Individual building plot with *detailed planning permission* for a **substantial five-bedroom** detached house.
- Proposed accommodations include a master en suite, multiple receptions, and designated spaces for utility and cloakroom.
- **Excellent location** in the popular hamlet of Botallack, surrounded by stunning rural scenery.
- Off-street parking and a decent garden size for future outdoor enjoyment.
- Nearby amenities include a pub, leisure options, and nature-rich surroundings.
**Overview:**
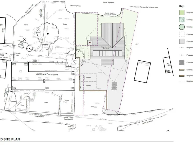
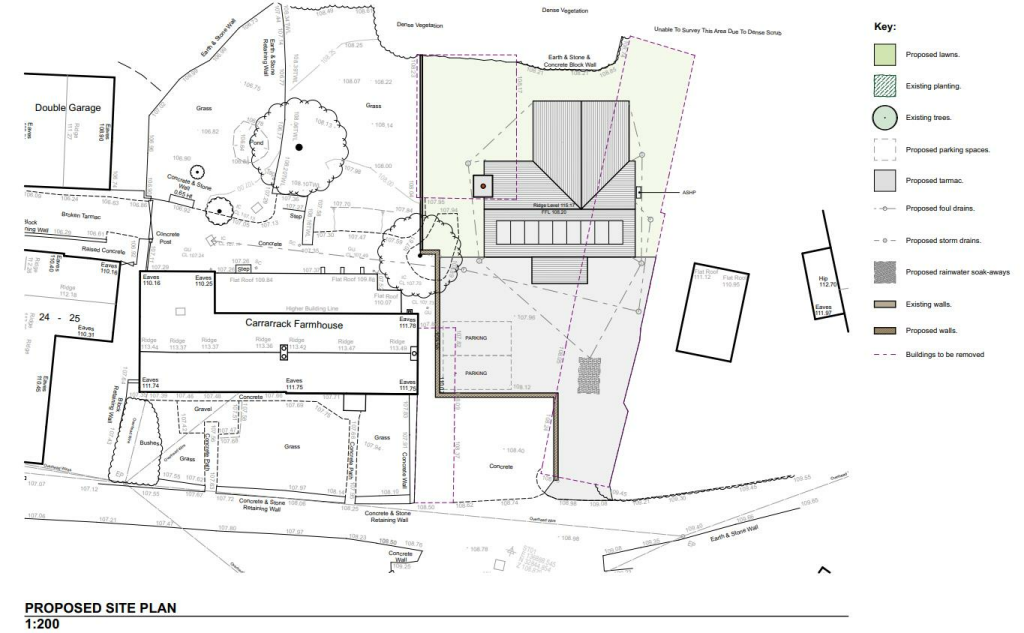
This exceptional building plot in Botallack, St. Just, offers a rare opportunity to create your dream home. With planning permission already granted for a five-bedroom detached house, the prospective layout promises comfort and modern living with a master suite, spacious living areas, a utility room, and both bathroom and shower room amenities. Attached gardens and off-street parking provide added convenience and give ample space for outdoor activities or future expansion.
While the current site does include a derelict outbuilding that may require demolition, the ultimate potential alongside the plot’s attractive features outweighs any initial concerns. Enjoy the serenity of rural life in a thriving community, with excellent school options nearby and the stunning landscapes of West Penwith at your doorstep. This opportunity is truly unique; act now and imagine the possibilities of crafting your space tailored to your lifestyle!
Plot for sale in Plot 5 - Truthwall TR19 — £300,000 • 4 bed • 2 bath • 1240 ft²
Plot for sale in Plot 2 - Truthwall TR19 — £300,000 • 4 bed • 2 bath
Plot for sale in Plot 1 - Truthwall TR19 — £300,000 • 4 bed • 2 bath
Plot for sale in Plot 4 - Truthwall TR19 — £350,000 • 4 bed • 2 bath
Plot for sale in Plot 3 - Truthwall TR19 — £325,000 • 4 bed • 2 bath
Plot for sale in Building Plot at Levant, Trewellard, St Just, TR19 7SR, TR19 — £150,000 • 3 bed • 2 bath


























