**Standout Features:**
- Planning permission granted for a four-bedroom detached home
- Stunning sea views and picturesque countryside location
- Serene hamlet setting near St Just and Botallack
- Mains drainage and services connections included
- Off-street parking and spacious front and rear gardens
- Chain-free and freehold tenure
**Concise Summary:**
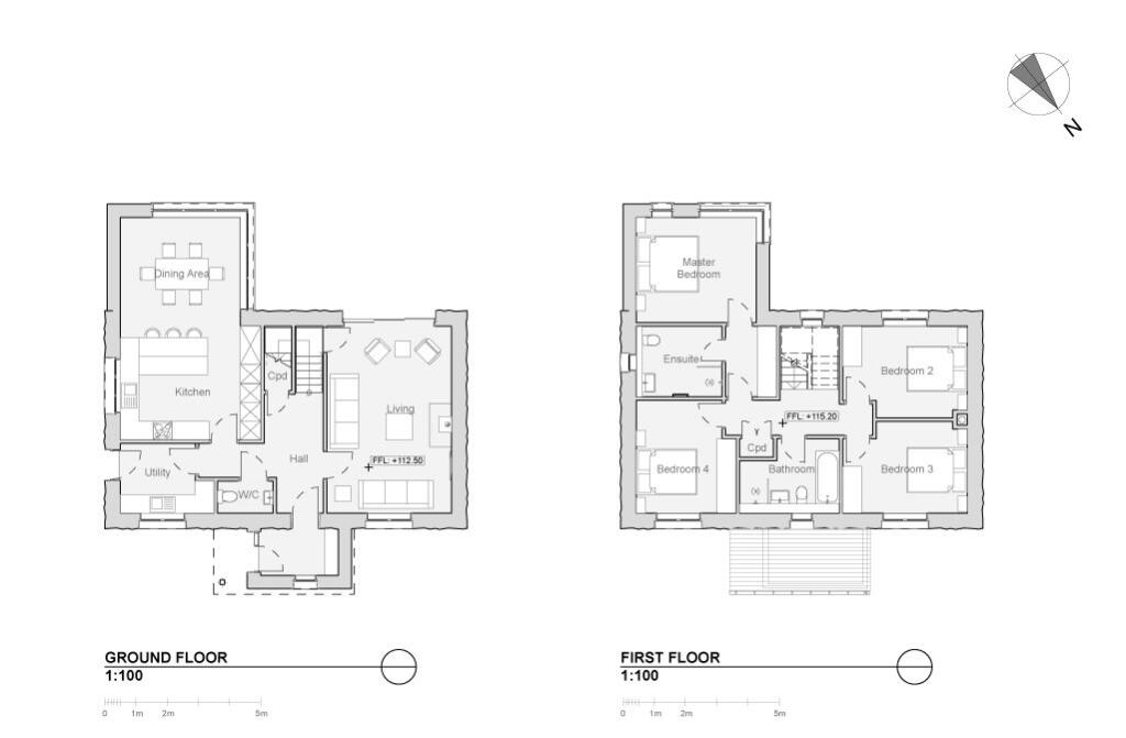
Discover an exceptional opportunity with Plot 3 in the charming hamlet of Truthwall, West Cornwall. This sizeable serviced plot already has planning permission for a modern four-bedroom detached home, designed to take full advantage of breathtaking sea views. The proposed layout includes two bathrooms, a large kitchen/diner, utility room, and generous living areas, providing ample space for family living or entertaining.
Nestled near the vibrant town of St Just and the historic Botallack, this location offers stunning coastal paths, rural walks, and community amenities including schools rated as 'Good’ by Ofsted. The plot is chain-free and boasts mains drainage connections, ensuring a smooth construction process. For those seeking a tranquil lifestyle with the potential for a bespoke coastal home, this opportunity won't last long—envision your inspired living space in this serene setting today!
Plot for sale in Plot 4 - Truthwall TR19 — £350,000 • 4 bed • 2 bath
Plot for sale in Plot 1 - Truthwall TR19 — £300,000 • 4 bed • 2 bath
Plot for sale in Plot 2 - Truthwall TR19 — £300,000 • 4 bed • 2 bath
Plot for sale in Plot 5 - Truthwall TR19 — £300,000 • 4 bed • 2 bath • 1240 ft²
Plot for sale in Building Plot at Levant, Trewellard, St Just, TR19 7SR, TR19 — £150,000 • 3 bed • 2 bath
Plot for sale in Botallack, St. Just, TR19 — £175,000 • 1 bed • 1 bath • 321 ft²


































