**Standout Features:**
- Large serviced building plot with planning permission for a four-bedroom detached home.
- Stunning sea views and private gardens included.
- Mains drainage and services connections planned for each plot.
- Located in a desirable hamlet near St Just and Botallack, with access to coastal paths and moorland walks.
- Very low crime rate, ideal for families or investors.
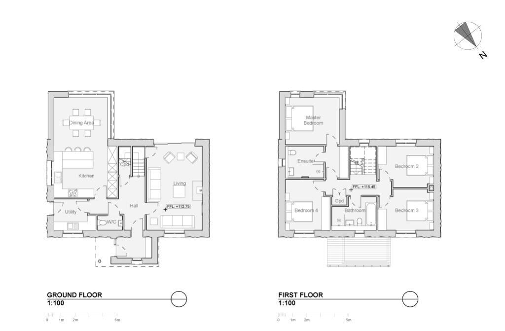
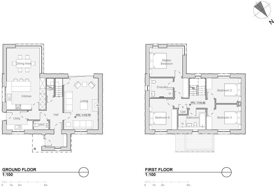
This **exciting opportunity** in the tranquil hamlet of Truthwall offers the chance to create your dream home with breathtaking sea views. With planning permission already in place, the plot is designed for a contemporary four-bedroom residence featuring a spacious layout, including two bathrooms, a living room, large kitchen/diner, and private parking. Enjoy **ample outdoor space** with sizable front and rear gardens, perfect for family gatherings or peaceful retreats.
Nestled close to St Just, this property is in a vibrant community known for its historic charm and essential amenities, including shops, schools, and eateries, all just a stone's throw away. Surrounded by picturesque landscapes, including rugged moors recognized by the National Trust, the locale invites you to explore the dramatic Cornish coastline and immerse yourself in the area's rich heritage. Although slow broadband speeds may be noted, the residential area boasts excellent mobile signal strength and offers a peaceful rural lifestyle away from urban hustle.
**Don't miss out on this unique opportunity**—with only a few plots available in this exclusive development, secure your future in this incredible location before it's gone! Plans and additional information can be requested for interested buyers eager to break ground on their new home in West Cornwall.
Plot for sale in Plot 1 - Truthwall TR19 — £300,000 • 4 bed • 2 bath
Plot for sale in Plot 4 - Truthwall TR19 — £350,000 • 4 bed • 2 bath
Plot for sale in Plot 5 - Truthwall TR19 — £300,000 • 4 bed • 2 bath • 1240 ft²
Plot for sale in Plot 3 - Truthwall TR19 — £325,000 • 4 bed • 2 bath
Plot for sale in Building Plot at Levant, Trewellard, St Just, TR19 7SR, TR19 — £150,000 • 3 bed • 2 bath
Plot for sale in Botallack, St. Just, TR19 — £175,000 • 1 bed • 1 bath • 321 ft²


































