DL3 8EJ - 5 bedroom detached house for sale in Plot 44, Havelock Park…

View on Property Piper

5 bedroom detached house for sale in Plot 44, Havelock Park, Blackwell, Darlington, DL3 8EJ, DL3

Summary - 44 Romanby Drive, Blackwell Grange, Darlington DL3 8EJ

5 bed 5 bath Detached

Large five-bedroom new build in tranquil Blackwell Grange, energy-efficient with double garage and EV charging.
Five double bedrooms including principal with dressing area and en-suite
Large open-plan kitchen/dining/family area with island and bi-fold doors
Separate lounge, study/games room, utility, boot room and wet room
Approx. 2,487 sqft of living space on a large plot
Double garage with EV charging point; air source heating and solar panels
Freehold tenure; estate management charge approx. £250+VAT per year
New-build show home images — specification may vary from photos
No flood risk; located in a very affluent, quiet suburban area
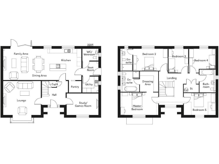
This spacious five-bedroom detached home at Plot 44, Havelock Park, sits within the sheltered grounds of Blackwell Grange and is designed for family life and flexible entertaining. The ground floor centres on an open-plan kitchen/dining/family area with an island, pantry and bi-fold doors that open onto a large rear garden, while a separate lounge, study/games room, utility, boot room and wet room add everyday practicality.

Upstairs the principal bedroom includes a dressing area and en-suite, and a second bedroom also benefits from an en-suite; three further double bedrooms and a family bathroom complete the first floor. At about 2,487 sqft this new-build home offers generous room sizes throughout, a double garage with EV charging point and energy-efficient systems including air source heating and solar panels.

This plot is freehold and sits in a very affluent, suburban setting close to good local schools and amenities. Note that the photos illustrate a show home and actual specification may vary; there is an estate management/service charge of approximately £250+VAT per year. Those seeking mature character or zero-running-in periods should factor in that this is a new build and some finishing adjustments may be needed after purchase.

Overall, the house will suit growing families who value space, energy efficiency and modern finishes, and buyers wanting a low-maintenance, contemporary home with strong environmental features and convenient EV provision.

Property Details

Brochure Descriptions

Image Descriptions

Floorplan Description

Rooms

Textual Property Features

Target Audience

AI Tags

Detected Visual Features

Nearby Schools

Nearest Bars And Restaurants

,,,,}

Nearest General Shops

,,}

Nearest Grocery shops

,,}

Nearest Supermarkets

,,}

Nearest Religious buildings

,,}

Nearest Medical buildings

,,,}

Nearest Leisure Facilities

,,,,}

Nearest Tourist attractions

,,}

Nearest Train stations

,,,,}

Nearest Bus stations and stops

,,,,}

Nearest Hotels

,,}

Tags

Local Market Stats

Similar Properties

Meta

High Res Images

Compatible Images

Low res Images

Thumbnails

Raw Images

High Res Floorplan Images

Compatible Floorplan Images

Low res Floorplan Images

FloorplanImages Thumbnail

Raw Floorplan Images