DL3 8EJ - 5 bedroom detached house for sale in Plot 31, Havelock Park…

View on Property Piper

5 bedroom detached house for sale in Plot 31, Havelock Park, Blackwell, Darlington, DL3 8EJ, DL3

Summary - 31 Romanby Drive, Blackwell Grange, Darlington DL3 8EJ

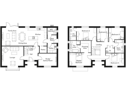
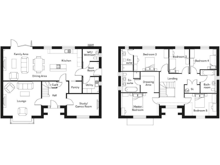
5 bed 5 bath Detached

**Standout Features:**
- Spacious five-bedroom detached home
- Large open-plan kitchen/dining/family area with bi-fold doors
- Study/games room
- Principal bedroom with en-suite & dressing area
- Double garage with EV charging point
- Air source heating
- Large, landscaped garden

**Potential Concerns:**
- Service charge of approximately £300 annually

Discover your dream home in the tranquil setting of Blackwell Grange! This beautifully designed new-build property boasts five generous bedrooms, including a luxurious principal suite with an en-suite and dressing area. The heart of the home is a stunning open-plan kitchen/dining/family space featuring modern appliances, a chic island, and bi-fold doors that seamlessly integrate with the landscaped rear garden, perfect for entertaining or quiet family time.

In addition to the spacious lounge and versatile study/games room, this residence also includes a double garage equipped with an EV charging point, catering to modern living. With air source heating and a variety of functional layouts, the property combines comfort with energy efficiency.

While the service charge is a minor consideration, the extensive space and amenities offer excellent long-term value, making this an ideal family home situated in a peaceful yet desirable location. Don’t miss out on this opportunity to own a slice of suburbia living; schedule your viewing today!

Property Details

Brochure Descriptions

Image Descriptions

Floorplan Description

Rooms

Textual Property Features

Detected Visual Features

Nearby Schools

Nearest Bars And Restaurants

,,,,}

Nearest General Shops

,,}

Nearest Grocery shops

,,}

Nearest Supermarkets

,,}

Nearest Religious buildings

,,}

Nearest Medical buildings

,,,}

Nearest Leisure Facilities

,,,,}

Nearest Tourist attractions

,,}

Nearest Train stations

,,,,}

Nearest Bus stations and stops

,,,,}

Nearest Hotels

,,}

Tags

Local Market Stats

Similar Properties

Meta

High Res Images

Compatible Images

Low res Images

Thumbnails

Raw Images

High Res Floorplan Images

Compatible Floorplan Images

Low res Floorplan Images

FloorplanImages Thumbnail

Raw Floorplan Images