DL3 8EJ - 5 bedroom detached house for sale in Plot 22, Havelock Park…

View on Property Piper

5 bedroom detached house for sale in Plot 22, Havelock Park, Blackwell, Darlington, DL3 8EJ, DL3

Summary - 22 Romanby Drive, Blackwell Grange, Darlington DL3 8EJ

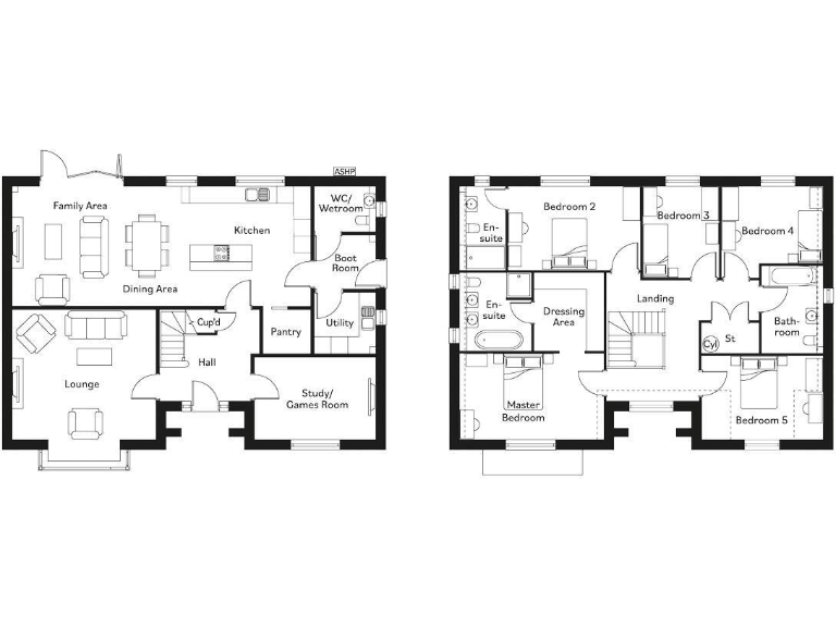
5 bed 5 bath Detached

**Standout Features:**
- Five spacious bedrooms with en-suite potential in two
- Expansive open-plan kitchen/dining/family area
- Dual-access bi-fold doors leading to the rear garden
- Versatile study/games room, enhancing living space flexibility
- Double garage equipped with EV charging point
- Eco-friendly features: air source heating and solar panels
- Chain free with freehold tenure

**Potential Concerns:**
- Average square footage for price range (2169 sq ft)
- Estate management charge of approximately £300 annually

Nestled in the serene and desirable community of Blackwell Grange, this newly built five-bedroom detached home offers a blend of modern comfort and family-friendly spaces. The heart of the home is a generous open-plan kitchen/dining/family area, perfect for gatherings and daily living, complete with bi-fold doors that provide seamless access to the rear garden. Each of the five bedrooms is thoughtfully designed, with the principal bedroom benefiting from a dressing area and en-suite, creating a private retreat.

The property sits in a plot sizes larger than average, ideal for outdoor activities and family enjoyment. Its convenient study/games room adds further appeal, catering to those who need a dedicated workspace or a playroom. With features like air source heating and an EV charging point, this home is not only stylish but also eco-conscious.

Located on the outskirts of Darlington, this well-connected residence is close to reputable schools and amenities, making it an excellent choice for families. Swift viewing is recommended to seize the opportunity to make this your family home in a tranquil setting.

Property Details

Brochure Descriptions

Image Descriptions

Floorplan Description

Rooms

Textual Property Features

Detected Visual Features

Nearby Schools

Nearest Bars And Restaurants

,,,,}

Nearest General Shops

,,}

Nearest Grocery shops

,,}

Nearest Supermarkets

,,}

Nearest Religious buildings

,,}

Nearest Medical buildings

,,,}

Nearest Leisure Facilities

,,,,}

Nearest Tourist attractions

,,}

Nearest Train stations

,,,,}

Nearest Bus stations and stops

,,,,}

Nearest Hotels

,,}

Tags

Local Market Stats

Similar Properties

Meta

High Res Images

Compatible Images

Low res Images

Thumbnails

Raw Images

High Res Floorplan Images

Compatible Floorplan Images

Low res Floorplan Images

FloorplanImages Thumbnail

Raw Floorplan Images