Characterful rural home with modern heating and parking.
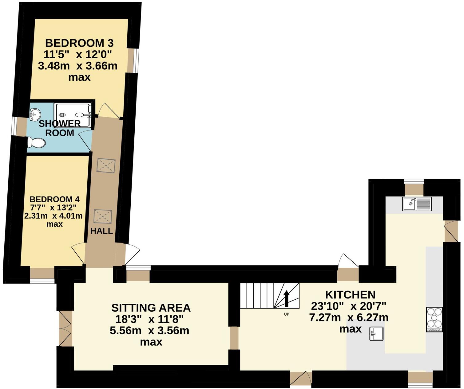
Four bedrooms over two floors, two ground-floor doubles
This converted stone cattle barn offers high-quality, free-flowing accommodation finished in 2023 and presented with strong rural character. Exposed stone walls, A‑frame roof trusses and acacia engineered flooring combine with contemporary fittings to create a comfortable family home or premium holiday let.
The layout is flexible, with two double bedrooms on the ground floor and two further bedrooms upstairs, plus a dual-aspect principal bedroom with a Juliet balcony and views toward Bodmin Moor. The sociable kitchen with integrated appliances, spacious lounge/diner and utility space support modern living, while superior fixtures appear through the bathrooms.
Practical running costs are reduced by multi‑zone air‑source underfloor heating and an EV charging point on the gravelled driveway. The property is offered chain free, has fast broadband and excellent mobile signal — useful for remote working — and sits within easy reach of Altarnun and Launceston.
Buyers should note the local area is classified as a remoter, ageing rural community with higher area deprivation metrics; services and amenities will be more limited than in urban locations. Garden size is modest to average for the site despite generous parking; purchasers seeking large amenity grounds should check the exact plot boundaries. No flood risk is recorded.
4 bedroom detached house for sale in Boyton, Launceston, Cornwall, PL15 — £550,000 • 4 bed • 2 bath • 2195 ft²
5 bedroom detached house for sale in North Petherwin, Launceston, PL15 — £825,000 • 5 bed • 2 bath • 3341 ft²
3 bedroom detached house for sale in Roydon Road, Launceston, PL15 — £275,000 • 3 bed • 1 bath • 987 ft²
4 bedroom semi-detached house for sale in Davidstow, Camelford, PL32 — £475,000 • 4 bed • 3 bath • 1236 ft²
5 bedroom semi-detached house for sale in Launceston, Devon, PL15 — £700,000 • 5 bed • 3 bath • 3081 ft²
3 bedroom detached house for sale in North Hill, Launceston, Cornwall, PL15 — £625,000 • 3 bed • 2 bath • 2052 ft²










































































