Rare large plot in tranquil village setting ideal for a renovation project.
- Approximately 2.32 acres including outbuildings and small paddock
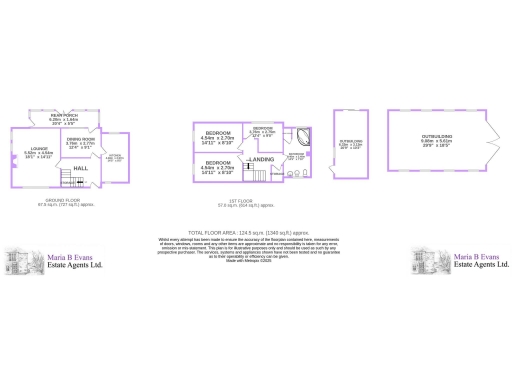
Set at the end of a quiet terrace and approached down a private track, this three-bedroom home sits within approximately 2.32 acres of land and outbuildings, including a small paddock suitable for a pony. The house was converted in 1977 and retains character features such as exposed beams, a briquette-faced fireplace and a dual-aspect reception. Large gardens and multiple timber outbuildings create immediate scope for hobby farming, storage or development subject to planning permission.
The interior offers a broad hallway, dual-aspect lounge, separate dining room and a breakfast kitchen with timber cabinets. Upstairs are three double bedrooms off a wide landing and a four-piece family bathroom. The property is heated by gas radiators and has three-phase electricity. A cobbled drive provides off-street parking for several cars; there is a right of way used by neighbouring properties.
Important — the house requires substantial renovation and refurbishment throughout; the EPC is F. Buyers should budget for modernisation works, potential replacement of services and full surveys before purchase. While the plot and setting are significant value drivers, any plans for conversion or additional buildings will need planning consent and statutory checks.
For buyers seeking rural space, this offers a rare combination of large private land, outbuildings and village facilities close by. The village is well served by good primary and secondary schools, countryside walks and nearby commuter links (A59 and local train routes). This property will suit someone wanting a project with strong long-term potential rather than a move-in-ready home.
4 bedroom detached house for sale in Bradshaw Lane, Parbold, WN8 7NQ, WN8 — £1,100,000 • 4 bed • 2 bath • 2882 ft²
4 bedroom house for sale in Doles Lane, Bretherton, Leyland, PR26 — £750,000 • 4 bed • 2 bath • 4210 ft²
5 bedroom detached house for sale in Longmeanygate, Midge Hall, Leyland, PR26 6TD, PR26 — £820,000 • 5 bed • 4 bath • 3099 ft²
3 bedroom detached house for sale in Greenacres, Dawbers Lane, Euxton PR7 6EF, PR7 — £800,000 • 3 bed • 2 bath • 1871 ft²
6 bedroom house for sale in The Barn Lower House Farm Runshaw Lane, Euxton PR7 6EY, PR7 — £795,000 • 6 bed • 4 bath • 2504 ft²
6 bedroom farm house for sale in Trigg Road, Heapey, Chorley, Lancashire, PR6 — £850,000 • 6 bed • 4 bath • 4037 ft²


































































































































