Large open-plan kitchen/dining/family room with French doors
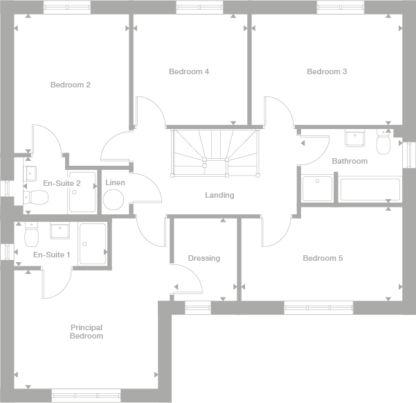
Principal bedroom with walk-in dressing area and en-suite
Second bedroom also has an en-suite; three further good bedrooms
Energy-efficient PV panels and 10-year NHBC warranty included
Integral garage, separate laundry room and downstairs WC
Around 1,640 sq ft on a decent-sized plot, garden included
Only two bathrooms for five bedrooms—potential morning congestion
Local crime reported above average; consider security and checks
This newly built five-bedroom detached home on Englemann Way is arranged for family life, with a large open-plan kitchen/dining/family room and a separate lounge featuring a bay window. The layout includes a principal bedroom with walk-in dressing area and en-suite, a second en-suite bedroom, three further good-sized bedrooms and a downstairs WC—practical for busy households. A separate laundry room and integral garage add useful everyday storage and parking.
The property benefits from energy-efficient PV panels and a 10-year NHBC warranty, reducing running costs and offering new-build reassurance. At around 1,640 sq ft on a decent plot, the home provides comfortable space for children, home working and entertaining. Broadband speeds are fast and mobile signal is excellent, supporting remote work and streaming.
Practical points to note: there are only two bathrooms for five bedrooms, which may require scheduling at busy times. Crime in the area is reported as above average; buyers should consider security measures. Tenure is listed as unknown—confirm tenure and any estate or community charges before exchange. Overall the house suits families seeking modern, low-maintenance living with good local schools and green spaces nearby.
4 bedroom detached house for sale in Chapelgarth,
Sunderland,
SR3 2NY, SR3 — £325,000 • 4 bed • 1 bath • 878 ft²
4 bedroom detached house for sale in Chapelgarth,
Sunderland,
SR3 2NY, SR3 — £367,000 • 4 bed • 1 bath • 959 ft²
4 bedroom detached house for sale in Chapelgarth,
Sunderland,
SR3 2NY, SR3 — £290,000 • 4 bed • 1 bath
4 bedroom detached house for sale in Chapelgarth,
Sunderland,
SR3 2NY, SR3 — £332,000 • 4 bed • 1 bath • 973 ft²
4 bedroom detached house for sale in Chapelgarth,
Sunderland,
SR3 2NY, SR3 — £312,000 • 4 bed • 1 bath • 816 ft²
5 bedroom detached house for sale in Silksworth Road,
Sunderland,
SR3 2PA, SR3 — £339,995 • 5 bed • 1 bath • 561 ft²






































































