Deposit of £16,600 already paid for buyer convenience
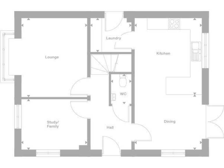
This four-bedroom detached new-build offers bright, family-focused living across a neatly planned plot in Chapelgarth. The ground floor centres on a generous open-plan kitchen/dining space with French doors to a private rear garden, plus a bay-windowed lounge and a useful study. Integrated appliances, spotlighting and energy-efficient features such as solar panels keep running costs lower than older stock.
Upstairs the principal bedroom includes an en suite, joined by three further double bedrooms and a main bathroom with separate shower — a practical layout for families or home-working. A single garage and driveway provide private parking and extra storage. Broadband speeds are fast and local schools include several highly rated primaries within easy reach.
Notable practical points: the development is new-build freehold with a modest annual service charge of £121 and reservation fee of £500. The property sits in an affluent, comfortable suburban neighbourhood with good road links to the A19. However, recorded local crime is above average, and the overall floor area is relatively small at about 973 sq ft, which may limit furniture layouts or extension potential.
This home will suit buyers seeking a modern, low-maintenance family house close to green spaces and good schools, who are comfortable with new-build finishes and a compact internal footprint. Council tax band is TBC.
4 bedroom detached house for sale in Chapelgarth,
Sunderland,
SR3 2NY, SR3 — £325,000 • 4 bed • 1 bath • 878 ft²
4 bedroom detached house for sale in Chapelgarth,
Sunderland,
SR3 2NY, SR3 — £290,000 • 4 bed • 1 bath
4 bedroom detached house for sale in Chapelgarth,
Sunderland,
SR3 2NY, SR3 — £367,000 • 4 bed • 1 bath • 959 ft²
5 bedroom detached house for sale in Chapelgarth,
Sunderland,
SR3 2NY, SR3 — £418,000 • 5 bed • 2 bath • 1640 ft²
4 bedroom detached house for sale in Chapelgarth,
Sunderland,
SR3 2NY, SR3 — £312,000 • 4 bed • 1 bath • 816 ft²
4 bedroom detached house for sale in Chapelgarth,
Sunderland,
SR3 2NY, SR3 — £340,000 • 4 bed • 1 bath • 927 ft²










































































